Snowshill, Broadway, Gloucestershire, WR12
- PROPERTY TYPE
Plot
- SIZE
Ask agent
Description
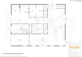
An outstanding opportunity to acquire a barn with planning permission granted to build a magnificent country home of c8500sq ft. Opportunities of this status and calibre rarely presents themselves, particularly as it offers 50 acres making this such a beautiful setting in the sought after village of Snowshill. Designed by the multi award winning Base Architects, who have created a blueprint for a prospective new owner to build a classic contemporary barn conversion, encapsulating some of the very best views that The Cotswold's has to offer.
There are two proposals for the build allowing a prospective purchaser to choose the design that suits their requirements. The two options allow for a similar design, both offering the most beautifully considered accommodation with a cinema room, sitting room, dining room, study, games room, gym and the most magnificent open plan dining, kitchen and living room. One design offers six bedrooms and a one-bedroom annex and the other, five bedrooms with a one-bedroom annex. Both the annexes are set on the ground floor to provide an independent space for an au pair or dependant relative.
Gardens and Grounds: The setting is fundamental to the overall feel of Oathill Farm, the views are exceptional and quite possibly some of the best within The Cotswolds. The grounds will comprise a curated formal area of lawn, with the most beautiful landscaped gardens that surround the house, flanking wide patios ideal for al fresco dining.
Situation: Arguably, Oathill Farm enjoys one of the most beautiful and unique settings in any of the Cotswold villages, nestled within its own grounds in this prime pocket where homes rarely come to the market. Snowshill is one of the most quintessential and sought after villages nestled just half a mile from the famed town of Broadway. Broadway itself is a cultural centre, one that is synonymous with Cotswold living and over the years has seen a real growth in amenities offering the discerning buyer a wonderful choice of coffee shops, boutiques and restaurants including a Michelin Star restaurant by chef James Martin. In addition to some beautiful Cotswold pubs, the famous Broadway Deli, a doctor's surgery, bakery butchers, well stocked shops and some high boutiques to name but a few. Within the town is the well reputed Lygon Arms Hotel, and to the edge, just over a mile is The Fish Hotel and Dormy House. The village has the huge benefit of being a midway point to some wonderful centres and some of the best in The Cotswolds, including Stow on The Wold and Bourton on The Water, it is also within a comfortable drive of some destination spots including Soho Farmhouse, Daylesford & Bamford Gym/Spa and Estelle Manor. Schooling is excellent within the area with Kitebrook Prep School in Moreton in the Marsh, Kingham Hill in Kingham and famed local boarding schools within Cheltenham, a mere 15 miles, including Cheltenham College, The Cheltenham Ladies College and Dean Close. For the commuter, the location is excellent for train access into London and other major cities including Kingham, Moreton in The Marsh and trains from Evesham, all within a comfortable drive from Oathill Farm
Tewkesbury Borough Council
Application Number – 23/00702/FUL
Snowshill, Broadway, Gloucestershire, WR12
NEAREST STATIONS
Distances are straight line measurements from the centre of the postcode- Honeybourne Station7.1 miles
Notes
Disclaimer - Property reference CHL260070. The information displayed about this property comprises a property advertisement. Rightmove.co.uk makes no warranty as to the accuracy or completeness of the advertisement or any linked or associated information, and Rightmove has no control over the content. This property advertisement does not constitute property particulars. The information is provided and maintained by Kingsley Evans, Cheltenham. Please contact the selling agent or developer directly to obtain any information which may be available under the terms of The Energy Performance of Buildings (Certificates and Inspections) (England and Wales) Regulations 2007 or the Home Report if in relation to a residential property in Scotland.
Map data ©OpenStreetMap contributors.







