
'Woodwax Stables', Binfield Heath, RG9
- PROPERTY TYPE
Land
- SIZE
Ask agent
Key features
- Woodwax Stables
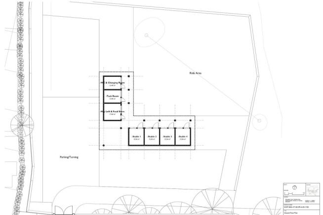
- Erection of a stable building designed to serve the equestrian use of the land.
- 1.5 Acres
Description
A rare and exciting opportunity to acquire a substantial 1.5-acre equestrian site with approved planning permission for a stable building and the use of the land for equestrian purposes. Known locally as part of Woodwax Field, this property occupies a peaceful position close to the heart of Binfield Heath yet benefits from convenient connections to surrounding towns and transport links. The planning consent (P24/S1900/FUL) was granted by South Oxfordshire District Council for a stable block and associated access improvements, providing a ready-made development prospect in one of Oxfordshire's most desirable rural communities.
Approved Planning
The planning permission under reference P24/S1900/FUL permits:
Erection of a stable building designed to serve the equestrian use of the land.
Use of the site for equestrian purposes, offering flexibility for private or commercial use.
Improvements to the access arrangement to the site to support the approved development.
This approval gives purchasers confidence and certainty, with groundwork and detailed proposals established through the planning process.
Location
Set on Shiplake Row in Binfield Heath, the plot enjoys a tranquil rural position fringed by open countryside and green fields - ideal for equestrian activities, leisure and amenity use. Binfield Heath itself lies south of Henley-on-Thames.
Call the agent for full details.
Purchasers should make their own enquiries regarding any alternative uses or development potential.
All dimensions/measurements are approximate.
These details are prepared as a general guide only, and should not be relied upon as a basis to enter into a legal contract, or commit expenditure. An interested party should consult their own surveyor, solicitor or other professionals before committing themselves to any expenditure or other legal commitments.
'Woodwax Stables', Binfield Heath, RG9
NEAREST STATIONS
Distances are straight line measurements from the centre of the postcode- Shiplake Station1.8 miles
- Wargrave Station1.9 miles
- Henley-on-Thames Station2.5 miles
Notes
Disclaimer - Property reference 502012_002182. The information displayed about this property comprises a property advertisement. Rightmove.co.uk makes no warranty as to the accuracy or completeness of the advertisement or any linked or associated information, and Rightmove has no control over the content. This property advertisement does not constitute property particulars. The information is provided and maintained by Barney Estates and Auctioneers, London. Please contact the selling agent or developer directly to obtain any information which may be available under the terms of The Energy Performance of Buildings (Certificates and Inspections) (England and Wales) Regulations 2007 or the Home Report if in relation to a residential property in Scotland.
Map data ©OpenStreetMap contributors.





