
107 West Argyle Street, Helensburgh, G84 8YQ

- PROPERTY TYPE
Semi-Detached
- BEDROOMS
2
- BATHROOMS
2
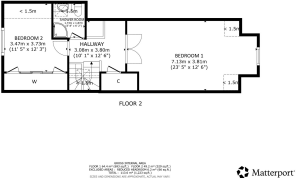
- SIZE
1,227 sq ft
114 sq m
- TENUREDescribes how you own a property. There are different types of tenure - freehold, leasehold, and commonhold.Read more about tenure in our glossary page.
Freehold
Key features
- Character filled Coach House style villa
- Welcoming entrance hallway
- Two generously proportioned public rooms
- Conservatory opening out to a quaint rear garden
- Kitchen with appliances included
- Two Well appointed double bedrooms
- Downstairs Bathroom, First Floor Shower Room
- Gas CH, D/Glazing, many interesting features within
- Double Garage with scope for conversion
- Dates back to the 1870's
Description
Nestled within a charming building dating back to around the 1870's, 'Willow Court' is a beautifully presented former coach house at 107 West Argyle Street which offers character-filled accommodation thoughtfully arranged over two levels. Blending period charm with modern convenience, this delightful home presents a rare opportunity to acquire a distinctive residence in a sought-after coastal town.
Accessed off West Argyle Street through a rustic style metal gate into a courtyard style walkway which also offers side access into the garage spaces, the property is then entered into a welcoming entrance hall.
This hall sets the tone, with staircase leading to the upper apartments and access to the principal living areas. The well-appointed kitchen faces the front as is both stylish and practical, offering generous storage and a full complement of integrated appliances, including: electric hob and oven, dishwasher, washing machine and an integrated fridge freezer. Beautiful stained glazed panels adorn three of the windows, infusing the space with sparks of colour and character while natural light pours in. The boiler is discreetly housed within the kitchen too for convenience.
Leading through to the rear, the attractive dining room flows effortlessly in a semi open-plan arrangement to a spacious lounge, creating an inviting environment for both relaxation and entertaining. The lounge benefits from freestanding yet well-positioned storage units, which can remain in situ should the new purchaser desire. From here, a substantial door with an inset, focal point stained glazed unit leads through to the rear conservatory — currently utilised as a bright home study/office — offering splendid views out over the enclosed mature gardens. There is a well appointed bathroom which is found off the entrance hall with large, feature free standing bath, heated towel rail and attractive tiling.
Upstairs, the property offers two well-proportioned bedrooms, including a particularly impressive principal bedroom of generous proportions, enjoying a pleasant outlook and is enhanced by dual-access doors. The second bedroom is equally comfortable and versatile, ideal as a guest room, nursery, or additional workspace. A compact additional shower room is also access off the landing along with an extensive over-stair storage cupboard too.
These private rear gardens are thoughtfully paved to create a charming terrace area, fully enclosed by established hedging for privacy. This tranquil outdoor setting is ideal for a perfect extension of the living space during warmer months.
Particular mention must be made to the double garage space to the side of the property - again accessed off West Argyle Street - with off street parking provided in front of the recently replaced doors - one of which is electrically powered. These two garage areas are well proportioned and with some creative flair and vision could surely be converted for use as solid extensive storage, a home gym area / home office or.... subject to positive planning consent.,...alternative and additional accommodation for residents use or, perhaps a commercial Air BnB style facility.
Combining period detailing, adaptable living space, and a highly desirable Helensburgh address, we believe this former coach house delivers charm, comfort, and character in equal measure. There is a system of gas central heating and certain, not all, windows are double glazed.
This is an exceptional home suited to a range of buyers seeking something truly distinctive.
EPC Rating: C
- COUNCIL TAXA payment made to your local authority in order to pay for local services like schools, libraries, and refuse collection. The amount you pay depends on the value of the property.Read more about council Tax in our glossary page.
- Band: E
- PARKINGDetails of how and where vehicles can be parked, and any associated costs.Read more about parking in our glossary page.
- Yes
- GARDENA property has access to an outdoor space, which could be private or shared.
- Yes
- ACCESSIBILITYHow a property has been adapted to meet the needs of vulnerable or disabled individuals.Read more about accessibility in our glossary page.
- Ask agent
107 West Argyle Street, Helensburgh, G84 8YQ
Add an important place to see how long it'd take to get there from our property listings.
__mins driving to your place
Get an instant, personalised result:
- Show sellers you’re serious
- Secure viewings faster with agents
- No impact on your credit score
Your mortgage
Notes
Staying secure when looking for property
Ensure you're up to date with our latest advice on how to avoid fraud or scams when looking for property online.
Visit our security centre to find out moreDisclaimer - Property reference bab87307-c355-41c5-97b0-2df06d449b50. The information displayed about this property comprises a property advertisement. Rightmove.co.uk makes no warranty as to the accuracy or completeness of the advertisement or any linked or associated information, and Rightmove has no control over the content. This property advertisement does not constitute property particulars. The information is provided and maintained by Clyde Property, Helensburgh. Please contact the selling agent or developer directly to obtain any information which may be available under the terms of The Energy Performance of Buildings (Certificates and Inspections) (England and Wales) Regulations 2007 or the Home Report if in relation to a residential property in Scotland.
*This is the average speed from the provider with the fastest broadband package available at this postcode. The average speed displayed is based on the download speeds of at least 50% of customers at peak time (8pm to 10pm). Fibre/cable services at the postcode are subject to availability and may differ between properties within a postcode. Speeds can be affected by a range of technical and environmental factors. The speed at the property may be lower than that listed above. You can check the estimated speed and confirm availability to a property prior to purchasing on the broadband provider's website. Providers may increase charges. The information is provided and maintained by Decision Technologies Limited. **This is indicative only and based on a 2-person household with multiple devices and simultaneous usage. Broadband performance is affected by multiple factors including number of occupants and devices, simultaneous usage, router range etc. For more information speak to your broadband provider.
Map data ©OpenStreetMap contributors.









