
Queensgate, Welsh Road, Deeside, Flintshire, CH5 2HJ

- PROPERTY TYPE
Detached
- BEDROOMS
3
- SIZE
Ask developer
- TENUREDescribes how you own a property. There are different types of tenure - freehold, leasehold, and commonhold.Read more about tenure in our glossary page.
Freehold
Key features
- Generously-proportioned detached family home
- Open plan kitchen/dining room
- Spacious dual-aspect living room
- French doors to the living room, leading into the garden
- Separate utility with outside access
- Downstairs WC
- Bedroom 1 with en suite
- Energy efficient
Description
This detached double-fronted new home gives you two lovely dual-aspect living spaces - an open-plan kitchen/dining room and a separate living room which opens out onto the garden. With three bedrooms and two bathrooms, the Charnwood suits all aspects of family life down to the ground and it’s a great place to call home for new and growing families.
Additional Information
- Tenure: Freehold
- Council tax band: Not made available by local authority until post-occupation
Parking - Single Garage
Room Dimensions
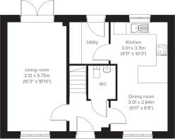
- Kitchen - 3.01 x 3.11 metre
- Dining room - 3.01 x 2.64 metre
- Living room - 3.12 x 5.75 metre
- Bedroom 1 - 2.88 x 3.75 metre
- Bedroom 2 - 4.19 x 2.96 metre
- Bedroom 3 - 3.14 x 2.96 metre
- COUNCIL TAXA payment made to your local authority in order to pay for local services like schools, libraries, and refuse collection. The amount you pay depends on the value of the property.Read more about council Tax in our glossary page.
- Ask developer
- PARKINGDetails of how and where vehicles can be parked, and any associated costs.Read more about parking in our glossary page.
- Yes
- GARDENA property has access to an outdoor space, which could be private or shared.
- Yes
- ACCESSIBILITYHow a property has been adapted to meet the needs of vulnerable or disabled individuals.Read more about accessibility in our glossary page.
- Ask developer
Energy performance certificate - ask developer
Queensgate, Welsh Road, Deeside, Flintshire, CH5 2HJ
Add an important place to see how long it'd take to get there from our property listings.
__mins driving to your place
Get an instant, personalised result:
- Show sellers you’re serious
- Secure viewings faster with agents
- No impact on your credit score
About Persimmon Homes
Looking for a well-connected, sustainable new home in North Wales? Queensgate is a modern development of energy-efficient 2, 3 and 4-bedroom homes for sale in Deeside, Flintshire. Perfectly positioned near the banks of the River Dee, Queensgate offers a lifestyle that blends town convenience with countryside calm and coastal charm.
Just a short walk from train stations, local schools, supermarkets and family-friendly facilities, you're also near the Wales Coast Path, and the surrounding green spaces provide extra scenic walking routes. When it comes to shopping and leisure, you?re just a 20-minute drive from Chester city centre, which is home to high-street stores, independent boutiques and dining for every occasion.
Liverpool is also just 40 minutes away, so you?ll have access to world-class museums, music, nightlife and cultural attractions.
Want to step onto the property ladder or upsize with confidence? With Help to Buy ? Wales, eligible buyers can purchase a new home with just a 5% deposit and a government-backed equity loan.
To explore our new houses for sale in Deeside and start your new build journey, speak to one of our sales advisors.
This development offers the following schemes:
- Deposit Unlock
- Part Exchange your Home
- Home Change
- Help to Buy in Wales Scheme, New Homes
- Own New Rate Reducer Scheme
Schemes are available on selected plots only, subject to status, terms and conditions apply. Contact the development for latest information.
Affordability
Notes
Staying secure when looking for property
Ensure you're up to date with our latest advice on how to avoid fraud or scams when looking for property online.
Visit our security centre to find out moreDisclaimer - Property reference 3_303. The information displayed about this property comprises a property advertisement. Rightmove.co.uk makes no warranty as to the accuracy or completeness of the advertisement or any linked or associated information, and Rightmove has no control over the content. This property advertisement does not constitute property particulars. The information is provided and maintained by Persimmon Homes. Please contact the selling agent or developer directly to obtain any information which may be available under the terms of The Energy Performance of Buildings (Certificates and Inspections) (England and Wales) Regulations 2007 or the Home Report if in relation to a residential property in Scotland.
*This is the average speed from the provider with the fastest broadband package available at this postcode. The average speed displayed is based on the download speeds of at least 50% of customers at peak time (8pm to 10pm). Fibre/cable services at the postcode are subject to availability and may differ between properties within a postcode. Speeds can be affected by a range of technical and environmental factors. The speed at the property may be lower than that listed above. You can check the estimated speed and confirm availability to a property prior to purchasing on the broadband provider's website. Providers may increase charges. The information is provided and maintained by Decision Technologies Limited. **This is indicative only and based on a 2-person household with multiple devices and simultaneous usage. Broadband performance is affected by multiple factors including number of occupants and devices, simultaneous usage, router range etc. For more information speak to your broadband provider.
Map data ©OpenStreetMap contributors.






