
Filey Road, Reading, Berkshire, RG1

- PROPERTY TYPE
Terraced
- BEDROOMS
4
- BATHROOMS
1
- SIZE
1,043 sq ft
97 sq m
- TENUREDescribes how you own a property. There are different types of tenure - freehold, leasehold, and commonhold.Read more about tenure in our glossary page.
Freehold
Key features
- Gable Fronted Victorian
- Refitted Kitchen & Shower Room
- Three/Four Bedrooms
- Potential For Improvement
- South Facing Garden
- No Onward Chain
- Easy Access To M4
- Ideal For First Time Buyers
Description
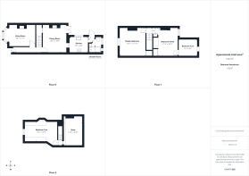
The accommodation is set over three floors and offers an entrance hall, bay fronted living room, dining room, refitted kitchen, and an attractive shower room. Striking fireplaces and open chimneys add to history of the property as well as eye catching French Windows, which offer additional access to the rear of the property.
To the first floor, there are three well-proportioned bedrooms, one of which is accessed via another.
The impressive top floor has a large double bedroom as well as a generous attic space for storage or conversion.
Externally, there is ample on street parking for residents and permit holders.
To the rear, the south-facing garden is accessed from two exit points and offers well-maintained borders and an attractive summer house.
As Newtown is situated by the River Kennet, there is a short walk along the river in to Reading town centre and the mainline railway station. The property has a host of amenities on its doorstep and is perfect for working professionals who commute into the city via Reading's unrivalled transport links. Additionally, this home would welcome families, thanks to great schools and it's proximity to Palmer Park which hosts events and recreational facilities.
Brochures
Particulars- COUNCIL TAXA payment made to your local authority in order to pay for local services like schools, libraries, and refuse collection. The amount you pay depends on the value of the property.Read more about council Tax in our glossary page.
- Band: B
- PARKINGDetails of how and where vehicles can be parked, and any associated costs.Read more about parking in our glossary page.
- Ask agent
- GARDENA property has access to an outdoor space, which could be private or shared.
- Yes
- ACCESSIBILITYHow a property has been adapted to meet the needs of vulnerable or disabled individuals.Read more about accessibility in our glossary page.
- No wheelchair access
Filey Road, Reading, Berkshire, RG1
Add an important place to see how long it'd take to get there from our property listings.
__mins driving to your place
Get an instant, personalised result:
- Show sellers you’re serious
- Secure viewings faster with agents
- No impact on your credit score
Your mortgage
Notes
Staying secure when looking for property
Ensure you're up to date with our latest advice on how to avoid fraud or scams when looking for property online.
Visit our security centre to find out moreDisclaimer - Property reference CPS260099. The information displayed about this property comprises a property advertisement. Rightmove.co.uk makes no warranty as to the accuracy or completeness of the advertisement or any linked or associated information, and Rightmove has no control over the content. This property advertisement does not constitute property particulars. The information is provided and maintained by Prospect, Reading. Please contact the selling agent or developer directly to obtain any information which may be available under the terms of The Energy Performance of Buildings (Certificates and Inspections) (England and Wales) Regulations 2007 or the Home Report if in relation to a residential property in Scotland.
*This is the average speed from the provider with the fastest broadband package available at this postcode. The average speed displayed is based on the download speeds of at least 50% of customers at peak time (8pm to 10pm). Fibre/cable services at the postcode are subject to availability and may differ between properties within a postcode. Speeds can be affected by a range of technical and environmental factors. The speed at the property may be lower than that listed above. You can check the estimated speed and confirm availability to a property prior to purchasing on the broadband provider's website. Providers may increase charges. The information is provided and maintained by Decision Technologies Limited. **This is indicative only and based on a 2-person household with multiple devices and simultaneous usage. Broadband performance is affected by multiple factors including number of occupants and devices, simultaneous usage, router range etc. For more information speak to your broadband provider.
Map data ©OpenStreetMap contributors.








