
Land to the rear of, 1 North road, Pinvin
- PROPERTY TYPE
Plot
- SIZE
1,507 sq ft
140 sq m
Key features
- Plot with outline planning permission
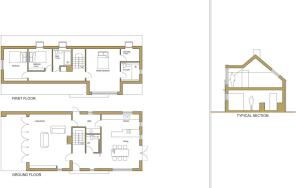
- Proposed permission & design for 1.5 storey 3 bedroom detached house
- Circa 140sqm GIA
- Application approved with all matters reserved except for access
- S106 already paid (approx.. £13,000)
- Services and connections in close proximity to the plot
- Pinvin in close proximity to Pershore, Evesham and Worcester.
- Rural location
- Plot size - 228 SQM
- Perfect opportunity to create your dream home
Description
Outline planning permission is granted for a dwelling approx. 140sqm in size, with all matters reserved accept access. This allows a buyer to put in their own design and create of home of their dreams. (Application for the approval of all reserved matters is required to be made to the Local Planning Authority before the expiration of the three years from the date of this permission).
For more information, please do not hesitate to contact Sheldon Bosley Knight Land and New Homes.
Planning Permission - Application Number: 21/01838/OUT
Council: Wychavon
Location Address: Land at North End Upton Snodsbury Road Pinvin
Proposal: Outline application for 1.5 storey 3 bedroom dwelling with all matters reserved except for access.
Status: Approved
Application Type: Outline Application
Decision Date: 25/06/2024
The S106 due on the plot on completion has been paid (circa £13k).
Location - Pinvin is a small village in Worcestershire, England, located near the town of Pershore. It’s known for its quiet, rural atmosphere and strong community feel.
Pinvin is about 1 mile north of Pershore, making it very accessible to amenities in town, including shops, schools, and healthcare. It is also around 9 miles from Worcester, offering access to larger shops, dining, cultural attractions, and employment opportunities, and approximately 8 miles from Evesham, another town that provides additional amenities and services.
Pinvin is close to the A44, which runs through the region and connects it to nearby towns and the M5 motorway. This makes it convenient for drivers to reach Worcester, Evesham, and further afield. The closest railway station is in Pershore, just a short drive or cycle away. From Pershore Station, you can access services to Worcester, Oxford, and London Paddington, making it practical for both local and longer-distance travel.
Services - The sellers suggest water is connected and all ducting is under the access road ready for the connection for electricity and gas.
Prospective purchasers should make their own enquiries with the appropriate utility companies for the verification as to the availability, or otherwise, of services.
Method Of Sale - The land is offered for sale by 'Private Treaty' as a whole.
Wayleaves, Easements And Right Of Way - The land is sold subject to and with the benefit of all rights and any other wayleaves or easements.
The vendors confirm the plot has a right of way over the access, however it is for the purchaser to satisfy their enquiries of the routes thereof.
Terms & Conditions - Sheldon Bosley Knight holds no liability over the construction or completion of the proposed development/ plot and all of the above information has been approved by the land owners/sellers. We recommend buyers to carry out their own due diligences prior to exchange and completion.
Brochures
Land to the rear of, 1 North road, PinvinLand to the rear of, 1 North road, Pinvin
NEAREST STATIONS
Distances are straight line measurements from the centre of the postcode- Pershore Station0.7 miles
- Worcestershire Parkway Station4.1 miles
Notes
Disclaimer - Property reference 34507302. The information displayed about this property comprises a property advertisement. Rightmove.co.uk makes no warranty as to the accuracy or completeness of the advertisement or any linked or associated information, and Rightmove has no control over the content. This property advertisement does not constitute property particulars. The information is provided and maintained by Sheldon Bosley Knight, Land & New Homes, Warwickshire. Please contact the selling agent or developer directly to obtain any information which may be available under the terms of The Energy Performance of Buildings (Certificates and Inspections) (England and Wales) Regulations 2007 or the Home Report if in relation to a residential property in Scotland.
Map data ©OpenStreetMap contributors.






