
Baker Street, Enfield, EN1
Letting details
- Let available date:
- 01/05/2026
- Let type:
- Long term
- Furnish type:
- Unfurnished
- PROPERTY TYPE
Retail Property (high street)
- SIZE
Ask agent
Key features
- AVAILABLE FROM MAY
- SEPERATE MEETING ROOM
- TWO OFFICE ROOMS
- KITCHENETTE AND WC
- INTERNAL STORAGE
- REAR GARDEN
- DETACHED REAR STORE ROOM
Description
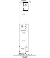
Ground floor commercial premises on Baker Street, EN1, extending to approximately 862 sq ft (80.1 sq m).
The property opens into a front reception area, with two office rooms further inside and a separate meeting room. There is also a WC and small kitchenette, along with some internal storage space.
To the rear is a private garden (approx. 37 ft x 15 ft) and a detached store room, providing additional storage.
Baker Street is a busy local road in Enfield, surrounded by a mix of shops, cafés, schools, and everyday amenities.
Enfield Town Station is a short walk away, with direct trains to London Liverpool Street. There are also several bus routes nearby connecting to Edmonton, Tottenham, and surrounding areas.
The property is also close to Palace Gardens Shopping Centre, Sainsbury’s, the Post Office, and a range of local independent businesses.
Flexible lease terms available
Business Rates:
The property is currently exempt from business rates, subject to the tenant qualifying for Small Business Rate Relief. Interested parties are advised to make their own enquiries with the local authority to confirm the rates payable.
VAT:
VAT is not applicable to the rent.
Baker Street, Enfield, EN1
NEAREST STATIONS
Distances are straight line measurements from the centre of the postcode- Gordon Hill Station0.8 miles
- Enfield Town Station0.9 miles
- Enfield Chase Station1.0 miles
Notes
Disclaimer - Property reference a73dfa4f-8b94-4cb2-bcfd-bb74e16c03ec. The information displayed about this property comprises a property advertisement. Rightmove.co.uk makes no warranty as to the accuracy or completeness of the advertisement or any linked or associated information, and Rightmove has no control over the content. This property advertisement does not constitute property particulars. The information is provided and maintained by Livco, Hackney. Please contact the selling agent or developer directly to obtain any information which may be available under the terms of The Energy Performance of Buildings (Certificates and Inspections) (England and Wales) Regulations 2007 or the Home Report if in relation to a residential property in Scotland.
Map data ©OpenStreetMap contributors.









