
Stroud Lane, Shamley Green Guildford, GU5 0ST

- PROPERTY TYPE
Detached
- BEDROOMS
4
- BATHROOMS
4
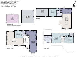
- SIZE
3,536 sq ft
328 sq m
- TENUREDescribes how you own a property. There are different types of tenure - freehold, leasehold, and commonhold.Read more about tenure in our glossary page.
Ask agent
Key features
- 1.7 acres of south-facing gardens with lawns, ornamental pond, greenhouse, large kitchen garden and paddock
- Planning permission granted to create a five-bedroom home, as a precursor to connecting both buildings, annexe and home study / studio and the additional bedroom
- Self-contained single-storey annexe with lantern roof, large study/studio space, fitted kitchen, double bedroom and shower room and single garage adjoined
- Generous kitchen with Corian surfaces, integrated appliances and large island with breakfast bar
- Located in the sought after Surrey village of Shamley Green
- Large double garage, overhead storage and ample parking within the grounds
- Large garden shed for gardening equipment and tools, with electricity and lighting
- Wraparound hardwood terrace and timber-framed outbuilding with electricity, currently used as a gym
- Tenure: Freehold | Council Tax Band: G | EPC Rated: C
Description
Planning permission is already in place to connect the two buildings and create a single five-bedroom home linked to the existing annexe and office, making this an exceptional opportunity to create something truly impressive without starting from scratch.
The main house is well-proportioned and designed for everyday living as much as entertaining. The kitchen sits at its centre, fitted with Corian surfaces, integrated appliances and a large island with breakfast bar. A generous dining space overlooks the south-facing gardens through French doors, and the reception room opens directly onto the wraparound hardwood terrace through a second set of French doors, making the connection between inside and outside a natural part of daily life.
There are currently three bedrooms in the main house. Two are on the first floor, both doubles, each with a walk-in wardrobe and en suite. A third bedroom on the ground floor has its own en suite and works equally well as a second reception room or as private accommodation for a family member who benefits from independent access. With planning permission granted to join the two buildings into a single five-bedroom home, the overall footprint and layout of the finished property will be considerable - please ask the agent for further details.
The single-storey annexe is self-contained and thoughtfully designed. A central lantern brings good natural light into the main reception space, which leads to a contemporary fitted kitchen with built-in appliances, a spacious double bedroom and a well-appointed shower room. Under the approved plans, this will be incorporated into the connected scheme alongside the existing home office, creating a flowing arrangement of accommodation that provides flexibility for how the finished home is used.
The grounds extend to approximately 1.7 acres and are well maintained throughout. Extensive south-facing lawns give the gardens a real sense of space, with an ornamental pond adding character to the wider landscape. The hardwood terrace wraps around the house and annexe and provides a natural space for outdoor dining and relaxing through the warmer months. Further into the grounds there is an established kitchen garden, greenhouse and a paddock, adaptable to a variety of uses. A timber-framed outbuilding, currently set up as a gym, offers straightforward use as a home office or studio. A large double garage with automatic door and overhead storage, plus ample parking, sits discreetly within the grounds.
Shamley Green sits within the Surrey Hills Area of Outstanding Natural Beauty and has retained the character of a working English village. There is a village green, a community-run shop, two pubs, a café, a church and a pond. Cranleigh provides day-to-day shopping, 3 supermarkets and a sports centre, while Guildford offers a more comprehensive range of retail, leisure and cultural options. The mainline station at Guildford runs a fast and frequent service into London, with journey times from around 35 minutes, and the A3 connects directly to the capital, the south coast and the M25 at Wisley.
The area is well served by schools at every level. Locally, Wonersh and Shamley Green Primary is highly-regarded, while the wider selection includes Longacre, Cranleigh School, St Catherine's, Glebelands, Broadwater, Tormead, Guildford High School, the Royal Grammar School and Charterhouse. For recreation, the surrounding countryside is well suited to walking, cycling and riding, with several golf clubs nearby, polo at Ewhurst and the Spectrum Sports and Leisure Centre in Guildford.
Fairfields offers a well-designed home in excellent condition with meaningful ancillary space, planning permission already secured for a significant extension, and all of this set within an established Surrey village with strong connections to London. The opportunity to create something truly spectacular is already there on paper. It simply needs someone to build it.
Tenure: Freehold | Council Tax Band: G | EPC Rated: C
Property Type - Detached
Tenure – Freehold.
Council Tax Band – G
Local Authority – Waverley Borough Council
EPC - C
Property Construction - Standard (brick and tile).
Electricity Supply – Mains.
Water Supply – Mains.
Drainage and Sewerage – Mains.
Broadband – FTTP ultrafast full fibre broadband connection available - we advise you to check with your provider.
Mobile Signal/Coverage - 4G/5G mobile signal is available in the area - we advise you to check with your provider.
Parking - Large double garage with automatic door and overhead storage, plus ample parking, sits discreetly within the grounds.
Disclaimer
All measurements are approximate and quoted in metric with imperial equivalents and for general guidance only and whilst every attempt has been made to ensure accuracy, they must not be relied on.
The fixtures, fittings and appliances referred to have not been tested and therefore no guarantee can be given and that they are in working order.
Internal photographs are reproduced for general information and it must not be inferred that any item shown is included with the property.
Whilst we carryout our due diligence on a property before it is launched to the market and we endeavour to provide accurate information, buyers are advised to conduct their own due diligence.
Our information is presented to the best of our knowledge and should not solely be relied upon when making purchasing decisions. The responsibility for verifying aspects such as flood risk, easements, covenants and other property related details rests with the buyer.
- COUNCIL TAXA payment made to your local authority in order to pay for local services like schools, libraries, and refuse collection. The amount you pay depends on the value of the property.Read more about council Tax in our glossary page.
- Ask agent
- PARKINGDetails of how and where vehicles can be parked, and any associated costs.Read more about parking in our glossary page.
- Yes
- GARDENA property has access to an outdoor space, which could be private or shared.
- Yes
- ACCESSIBILITYHow a property has been adapted to meet the needs of vulnerable or disabled individuals.Read more about accessibility in our glossary page.
- Ask agent
Stroud Lane, Shamley Green Guildford, GU5 0ST
Add an important place to see how long it'd take to get there from our property listings.
__mins driving to your place
Get an instant, personalised result:
- Show sellers you’re serious
- Secure viewings faster with agents
- No impact on your credit score

Your mortgage
Notes
Staying secure when looking for property
Ensure you're up to date with our latest advice on how to avoid fraud or scams when looking for property online.
Visit our security centre to find out moreDisclaimer - Property reference RX728105. The information displayed about this property comprises a property advertisement. Rightmove.co.uk makes no warranty as to the accuracy or completeness of the advertisement or any linked or associated information, and Rightmove has no control over the content. This property advertisement does not constitute property particulars. The information is provided and maintained by Fine & Country, South West London. Please contact the selling agent or developer directly to obtain any information which may be available under the terms of The Energy Performance of Buildings (Certificates and Inspections) (England and Wales) Regulations 2007 or the Home Report if in relation to a residential property in Scotland.
*This is the average speed from the provider with the fastest broadband package available at this postcode. The average speed displayed is based on the download speeds of at least 50% of customers at peak time (8pm to 10pm). Fibre/cable services at the postcode are subject to availability and may differ between properties within a postcode. Speeds can be affected by a range of technical and environmental factors. The speed at the property may be lower than that listed above. You can check the estimated speed and confirm availability to a property prior to purchasing on the broadband provider's website. Providers may increase charges. The information is provided and maintained by Decision Technologies Limited. **This is indicative only and based on a 2-person household with multiple devices and simultaneous usage. Broadband performance is affected by multiple factors including number of occupants and devices, simultaneous usage, router range etc. For more information speak to your broadband provider.
Map data ©OpenStreetMap contributors.






