
Ashover Road, Newhall, Swadlincote, Derbyshire, DE11

- PROPERTY TYPE
Semi-Detached
- BEDROOMS
3
- BATHROOMS
1
- SIZE
Ask agent
- TENUREDescribes how you own a property. There are different types of tenure - freehold, leasehold, and commonhold.Read more about tenure in our glossary page.
Freehold
Key features
- Semi Detached Home
- Three Bedrooms
- No Upward Chain
- Great Sized Low Maintenance Garden
- Upvc Double Glazing & Gas Central Heating
- Conservatory
- Off Road Parking & Garage
Description
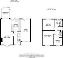
Newton Fallowell are pleased to be able to offer for sale this well proportioned three bedroomed semi detached home in a desirable road in Newhall. Benefitting from a great sized rear garden which is low maintenance and immaculately landscaped, the property is ideal for any family looking to buy in this area. In brief the accommodation comprises: - entrance hall, lounge/diner, kitchen, conservatory and on the first floor a landing leads to three bedrooms and high specification bathroom. The property also benefits from the larger than average which has plumbing for washing machine and tumble dryer and roller shutter doors, there is potential to extend the garage to a second floor subject to planning. Viewings are highly recommended.
Tenure: Freehold,Accommodation In Detail
Frosted Upvc double glazed door with frosted double glazed side panel leading to:
Entrance Hall
having staircase rising to first floor, feature wood panelling to walls, thermostat for central heating, understairs storage with consumer unit, laminate flooring and one central heating radiator with feature cover.
Lounge Diner
3.34m x 3.76m (10'11" x 12'4")
having gas fire with marble hearth and wooden surround, feature chimney breast, media points, wood effect laminate flooring, one central heating radiator and Upvc double glazed bay window to front elevation.
Dining Area
2.69m x 2.83m (8'10" x 9'3")
having wood effect laminate flooring, one central heating radiator and Upvc double glazed patio doors with Upvc double glazed side panels leading to:
Conservatory
2.02m x 2.96m (6'8" x 9'9")
having Upvc double glazed panels, feature wood roof with polycarbonate panels, wood effect vinyl flooring, one central heating radiator and Upvc double glazed door to rear elevation.
Kitchen
2.52m x 2.73m (8'3" x 8'11")
having range of base and wall mounted units, granite effect laminate work surface, sink and drainer with chrome mixer tap, space for oven with extractor over, space for under counter fridge and freezer, tiled splashback, tiling to floor, underfloor heating, Upvc double glazed window to rear elevation and frosted Upvc double glazed door to rear.
On The First Floor
Landing
having access to loft space, feature panelling to walls, carpet to floor and Upvc double glazed window to side elevation.
Master Bedroom
2.65m x 3.71m (8'8" x 12'2")
having fully integrated bedroom furniture, tv aerial point, carpet to floor, one central heating radiator and Upvc double glazed window to front elevation.
Bedroom Two
3.26m x 2.86m (10'8" x 9'5")
having fully integrated bedroom furniture, carpet to floor, one central heating radiator and Upvc double glazed window to rear elevation.
Bedroom Three
2.37m x 2.83m (7'9" x 9'3")
having BT point, media point, built-in overstairs storage, wood effect laminate flooring, one central heating radiator and two Upvc double glazed windows to front elevation.
Bathroom
2.01m x 1.83m (6'7" x 6'0")
having low level wc with hidden cistern, built-in vanity wash basin with chrome mixer tap, jacuzzi style corner bath with glass shower screen and jacuzzi style shower over, extractor fan, built-in storage, vinyl flooring, down lighters, chrome heated towel radiator, full tiling complement and frosted Upvc double glazed window to rear elevation.
Outside
To the rear of the property is an immaculately landscaped low maintenance garden with a large patio area ideal for entertaining, great sized artificial grassed area, further seating area, composite decked seating area and garden/sun room which has power and lighting. To the front is a printed concrete drive and frontage providing parking for one vehicle and leading to the garage.
Garage
2.38m x 5.72m (7'10" x 18'9")
having smart meters for gas and electric, plumbing for washing machine and tumble dryer, plenty of storage, roller shutter door and Upvc double glazed window and door to rear elevation.
Services
All mains services are believed to be connected to the property.
Measurement
The approximate room sizes are quoted in metric. The imperial equivalent is included in brackets.
Tenure
Freehold - with vacant possession upon completion. Newton Fallowell recommend that purchasers satisfy themselves as to the tenure of the property and we would recommend that they consult a legal representative such as a Solicitor appointed in their purchase.
Note
The services, systems and appliances listed in this specification have not been tested by Newton Fallowell and no guarantee as to their operating ability or their efficiency can be given.
Anti-Money Laundering Regulations – Intending purchasers will be required to provide identification documents via our compliance provider, Coadjute, at a cost of £45 plus VAT per transaction. This will need to be actioned at the offer stage and we would ask for your co-operation in order that there will be no delay in agreeing the sale.
Brochures
Brochure- COUNCIL TAXA payment made to your local authority in order to pay for local services like schools, libraries, and refuse collection. The amount you pay depends on the value of the property.Read more about council Tax in our glossary page.
- Band: B
- PARKINGDetails of how and where vehicles can be parked, and any associated costs.Read more about parking in our glossary page.
- Garage
- GARDENA property has access to an outdoor space, which could be private or shared.
- Private garden
- ACCESSIBILITYHow a property has been adapted to meet the needs of vulnerable or disabled individuals.Read more about accessibility in our glossary page.
- Ask agent
Energy performance certificate - ask agent
Ashover Road, Newhall, Swadlincote, Derbyshire, DE11
Add an important place to see how long it'd take to get there from our property listings.
__mins driving to your place
Get an instant, personalised result:
- Show sellers you’re serious
- Secure viewings faster with agents
- No impact on your credit score



Your mortgage
Notes
Staying secure when looking for property
Ensure you're up to date with our latest advice on how to avoid fraud or scams when looking for property online.
Visit our security centre to find out moreDisclaimer - Property reference P5837. The information displayed about this property comprises a property advertisement. Rightmove.co.uk makes no warranty as to the accuracy or completeness of the advertisement or any linked or associated information, and Rightmove has no control over the content. This property advertisement does not constitute property particulars. The information is provided and maintained by Newton Fallowell, Burton on Trent. Please contact the selling agent or developer directly to obtain any information which may be available under the terms of The Energy Performance of Buildings (Certificates and Inspections) (England and Wales) Regulations 2007 or the Home Report if in relation to a residential property in Scotland.
*This is the average speed from the provider with the fastest broadband package available at this postcode. The average speed displayed is based on the download speeds of at least 50% of customers at peak time (8pm to 10pm). Fibre/cable services at the postcode are subject to availability and may differ between properties within a postcode. Speeds can be affected by a range of technical and environmental factors. The speed at the property may be lower than that listed above. You can check the estimated speed and confirm availability to a property prior to purchasing on the broadband provider's website. Providers may increase charges. The information is provided and maintained by Decision Technologies Limited. **This is indicative only and based on a 2-person household with multiple devices and simultaneous usage. Broadband performance is affected by multiple factors including number of occupants and devices, simultaneous usage, router range etc. For more information speak to your broadband provider.
Map data ©OpenStreetMap contributors.





