St Marys House, Commercial Road, Penryn, Cornwall, TR10 8AG
- SIZE
Ask agent
- SECTOR
Office to lease
Lease details
- Lease available date:
- Ask agent
Key features
- Newly Refurbished Offices Over Three Floors
- Flexible Letting Options - Whole Building or Individual Floors
- River Views to the Front
- Allocated on-site parking
- Prominent Roadside Location in Penryn, Nr. Falmouth
Description
COMMERCIAL ROAD OFFICES - PENRYN, NR. FALMOUTH
ATTRACTIVE GROUND, FIRST & SECOND FLOOR OFFICES
NEWLY REFURBISHED, NEW HEATING, FULLY DECORATED & CARPETED
POPULAR PROMINENT ROADSIDE LOCATION
RIVER VIEWS TO THE FRONT
AVAILABLE AS A WHOLE, THREE FLOORS, OR IN PART
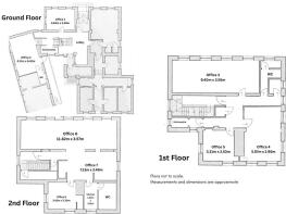
GROUND FLOOR - 2 OFFICES - 458 SQ FT - £7,250 P.A.X.
FIRST FLOOR - 3 OFFICES - 936 SQ FT - £10,500 P.A.X.
SECOND FLOOR - 3 OFFICES - 958 SQ FT - £10,000 P.A.X.
ALLOCATED ON-SITE PARKING
NEW LEASES AVAILABLE
Brochures
St Marys House, Commercial Road, Penryn, Cornwall, TR10 8AG
NEAREST STATIONS
Distances are straight line measurements from the centre of the postcode- Penryn Station0.5 miles
- Penmere Station1.5 miles
- Falmouth Town Station2.1 miles
Notes
Disclaimer - Property reference 4144LH. The information displayed about this property comprises a property advertisement. Rightmove.co.uk makes no warranty as to the accuracy or completeness of the advertisement or any linked or associated information, and Rightmove has no control over the content. This property advertisement does not constitute property particulars. The information is provided and maintained by SBC Property, Truro. Please contact the selling agent or developer directly to obtain any information which may be available under the terms of The Energy Performance of Buildings (Certificates and Inspections) (England and Wales) Regulations 2007 or the Home Report if in relation to a residential property in Scotland.
Map data ©OpenStreetMap contributors.





