
Langdon Road, Bath

- PROPERTY TYPE
Detached
- BEDROOMS
5
- BATHROOMS
2
- SIZE
1,730 sq ft
161 sq m
- TENUREDescribes how you own a property. There are different types of tenure - freehold, leasehold, and commonhold.Read more about tenure in our glossary page.
Freehold
Key features
- Vendors Found
- Impressive Family Home
- Five Bedroom Detached
- Extended Modern Kitchen/ Diner
- Off-Street Parking
- Views From Balcony
Description
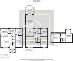
A exceptional detached family home spanning over three floors offering five generous bedrooms, an extended kitchen/diner/family room, utility room, storage room and further reception rooms.
Situated on the South side of Bath in a popular loaction with great access to Bath city centre, local high street and the country side.
Nestled on Langdon Road on the South side of Bath in a highly sought after area. This amazing, detached family townhouse spanning three levels, boasts an impressive layout which has been extended to offer a fantastic kitchen/diner/family room perfect for family life or socializing, further reception rooms and 5 good sized bedrooms.
You are welcomed into the home by a porch and hallway and then into the ground floor accommodation. The ground floor is set up perfectly for older children/relatives offering a large bedroom, master ensuite, and dressing room. Also, on this floor you have a utility room and converted garage offering amply storage or further dressing room.
To the rear of the first floor of the property offers a lovely light and airy modern extended kitchen dining room with patio doors leading to the rear garden. The dining room opens into a part stone built conservatory with heating and patio doors to the garden. Also on this floor, there is a good size lounge with lovely sunny balcony and 2 bedrooms.
On the second floor you will find a further 2 double bedrooms.
The rear of the property offers an enclosed rear garden which is divided into two parts, a generous lawned area plus patio area.
The front of the property has been blocked paved offering off street parking for 2 cars and lovely views across the city.
There is an assortment of local shops, cafés and restaurants nearby in Moorland Road. Extremely good position for access to the city centre or Linear Park Cycle Path offering you the best of both worlds.
Please note that some of these photos may have been enhanced using AI technology.
Brochures
Langdon Road, BathBrochure- COUNCIL TAXA payment made to your local authority in order to pay for local services like schools, libraries, and refuse collection. The amount you pay depends on the value of the property.Read more about council Tax in our glossary page.
- Band: D
- PARKINGDetails of how and where vehicles can be parked, and any associated costs.Read more about parking in our glossary page.
- Yes
- GARDENA property has access to an outdoor space, which could be private or shared.
- Yes
- ACCESSIBILITYHow a property has been adapted to meet the needs of vulnerable or disabled individuals.Read more about accessibility in our glossary page.
- Ask agent
Langdon Road, Bath
Add an important place to see how long it'd take to get there from our property listings.
__mins driving to your place
Get an instant, personalised result:
- Show sellers you’re serious
- Secure viewings faster with agents
- No impact on your credit score
Your mortgage
Notes
Staying secure when looking for property
Ensure you're up to date with our latest advice on how to avoid fraud or scams when looking for property online.
Visit our security centre to find out moreDisclaimer - Property reference 34508929. The information displayed about this property comprises a property advertisement. Rightmove.co.uk makes no warranty as to the accuracy or completeness of the advertisement or any linked or associated information, and Rightmove has no control over the content. This property advertisement does not constitute property particulars. The information is provided and maintained by Bath Stone Property, Bath. Please contact the selling agent or developer directly to obtain any information which may be available under the terms of The Energy Performance of Buildings (Certificates and Inspections) (England and Wales) Regulations 2007 or the Home Report if in relation to a residential property in Scotland.
*This is the average speed from the provider with the fastest broadband package available at this postcode. The average speed displayed is based on the download speeds of at least 50% of customers at peak time (8pm to 10pm). Fibre/cable services at the postcode are subject to availability and may differ between properties within a postcode. Speeds can be affected by a range of technical and environmental factors. The speed at the property may be lower than that listed above. You can check the estimated speed and confirm availability to a property prior to purchasing on the broadband provider's website. Providers may increase charges. The information is provided and maintained by Decision Technologies Limited. **This is indicative only and based on a 2-person household with multiple devices and simultaneous usage. Broadband performance is affected by multiple factors including number of occupants and devices, simultaneous usage, router range etc. For more information speak to your broadband provider.
Map data ©OpenStreetMap contributors.








