
Clodgey Lane, Helston

- PROPERTY TYPE
Detached
- BEDROOMS
4
- BATHROOMS
2
- SIZE
1,259 sq ft
117 sq m
- TENUREDescribes how you own a property. There are different types of tenure - freehold, leasehold, and commonhold.Read more about tenure in our glossary page.
Freehold
Key features
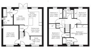
- 4 bedroom detached
- Open plan kitchen/dining room
- Separate living room
- Ensuite to bedroom 1
- Study
- Single garage
- 10 year warranty
- Freehold
- EPC TBC
- Council tax band TBC
Description
Situation - The energy-efficient two, three and four-bedroom homes in Helston offer the best of Cornwall living. Designed for modern life, each home includes clever, money-saving features as standard, so all you need to do is move in.
Helston is a welcoming community close to everyday essentials. From high-quality finishes to traditional-feel streets and wide-open green areas, Trehenlis Gardens is a thoughtfully designed development made for family living. This vibrant development will also include new cycle and foot paths perfect for staying active. Whether you’re looking for a first home, more space for a growing family or a peaceful Cornish base, you’ll find it here.
Description - Family life works really well in this easy-to-live-in detached four-bedroom new home. The Brampton has the flexibility of open-plan space as well as separate private space. The main living area, with kitchen, dining and relaxed family zones, is at the heart of this home, while the living room and study give you all the opportunity to take a break and have some quiet time when you need it.
Outside - This home benefits from a single garage, allocated parking and a private rear garden.
Agent Notes - Annual service charge will be payable.
Some images may be CGI. Internal photos are provided to illustrate the high-quality finish and are taken from a similar property.
Viewings - Strictly by prior appointment with Stags Truro office on .
Directions - Trehenlis Gardens can be located on the outskirts of Helston, on Clodgey Lane.
What3words: ///stiletto.hexes.bunks
Brochures
Clodgey Lane, Helston- COUNCIL TAXA payment made to your local authority in order to pay for local services like schools, libraries, and refuse collection. The amount you pay depends on the value of the property.Read more about council Tax in our glossary page.
- Band: TBC
- PARKINGDetails of how and where vehicles can be parked, and any associated costs.Read more about parking in our glossary page.
- Yes
- GARDENA property has access to an outdoor space, which could be private or shared.
- Yes
- ACCESSIBILITYHow a property has been adapted to meet the needs of vulnerable or disabled individuals.Read more about accessibility in our glossary page.
- Ask agent
Energy performance certificate - ask agent
Clodgey Lane, Helston
Add an important place to see how long it'd take to get there from our property listings.
__mins driving to your place
Get an instant, personalised result:
- Show sellers you’re serious
- Secure viewings faster with agents
- No impact on your credit score
Affordability
Notes
Staying secure when looking for property
Ensure you're up to date with our latest advice on how to avoid fraud or scams when looking for property online.
Visit our security centre to find out moreDisclaimer - Property reference 34509092. The information displayed about this property comprises a property advertisement. Rightmove.co.uk makes no warranty as to the accuracy or completeness of the advertisement or any linked or associated information, and Rightmove has no control over the content. This property advertisement does not constitute property particulars. The information is provided and maintained by Stags, Truro. Please contact the selling agent or developer directly to obtain any information which may be available under the terms of The Energy Performance of Buildings (Certificates and Inspections) (England and Wales) Regulations 2007 or the Home Report if in relation to a residential property in Scotland.
*This is the average speed from the provider with the fastest broadband package available at this postcode. The average speed displayed is based on the download speeds of at least 50% of customers at peak time (8pm to 10pm). Fibre/cable services at the postcode are subject to availability and may differ between properties within a postcode. Speeds can be affected by a range of technical and environmental factors. The speed at the property may be lower than that listed above. You can check the estimated speed and confirm availability to a property prior to purchasing on the broadband provider's website. Providers may increase charges. The information is provided and maintained by Decision Technologies Limited. **This is indicative only and based on a 2-person household with multiple devices and simultaneous usage. Broadband performance is affected by multiple factors including number of occupants and devices, simultaneous usage, router range etc. For more information speak to your broadband provider.
Map data ©OpenStreetMap contributors.









