SINGLE BUILDING PLOT, Brendon Road, Watchet, Somerset, TA23
- SIZE
Ask agent
- SECTOR
Plot for sale
Key features
- Detailed planning approval for a new dormer bungalow(ref. 3/37/23/010)
- Land extends to c. 0.22 acres
- Proposed three bedroom property extends to c. 117sqm (1259sqft)
- For sale by Auction on 26th March 2026 (Unless sold prior)
- Guide Price £35,000+ (plus fees)
Description
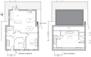
KLP, in conjunction with Clive Emson, are delighted to offer for sale by Auction (unless sold prior) this single building plot with detailed planning permission for the construction of a new detached dwelling. Planning approval was attained in June 2023, granting consent for the demolition of existing concrete greenhouse bases on the plot and the erection of a new dormer bungalow with associated landscaping and parking. The plot is described within the planning application documents to be c. 890sqm (0.22 acres) including the access drive, and the proposed three bedroom dormer bungalow to have a total floor area of c. 117sqm (1259sqft). The proposed accommodation includes an entrance hall, open plan living, kitchen and dining area, two double bedrooms and a bathroom on the ground floor. A further large double bedroom with en-suite is proposed on the first floor. Access to the property will be via an existing entrance on Brendon Road.
WATCHET
The plot is situated in the ancient harbour town of Watchet, between Exmoor National Park and the Quantock Hills. The town itself, with its significant maritime heritage offers a wide range of amenities including; a junior school, GP surgery, a post office, convenience stores and a range of independent antique, gift and art shops. In addition there are a range of pubs, hotels, restaurants and take-aways. The coastline and Watchet Harbour Marina, which opened in 2001, are notable attractions bringing in visitors to the area, along with the West Somerset Steam Railway which connects Bishops Lydeard and Minehead with Watchet.
PLANNING
Detailed planning permission ref. 3/37/23/010 was approved on 6th June 2023 for the construction of a new detached dormer bungalow. Copies of the planning approval notice, proposed plans and associated documents are available from the Agents upon request.
UTILITIES
Interested parties are advised to make all necessary enquiries with relevant utility companies as to the availability and capacity of services prior to making an offer.
VIEWING - STRICTLY BY APPOINTMENT ONLY
For an appointment please contact KLP or Clive Emson Auctioneers.
METHOD OF SALE
This freehold plot is offered for sale by Online Auction on the 26th March 2026 (unless sold prior) in conjunction with Clive Emson Auctioneers. For a copy of the individual auction details, the full auction catalogue, the legal pack for the property and of course how to bid, please go to or contact Clive Emson Auctioneers
GUIDE PRICE £35,000 + (plus fees) - LOT Number 8
WHAT3WORDS
///showcases.narrates.lavender
Brochures
SINGLE BUILDING PLOT, Brendon Road, Watchet, Somerset, TA23
NEAREST STATIONS
Distances are straight line measurements from the centre of the postcode- Rhoose Station14.6 miles
Notes
Disclaimer - Property reference 887KLP. The information displayed about this property comprises a property advertisement. Rightmove.co.uk makes no warranty as to the accuracy or completeness of the advertisement or any linked or associated information, and Rightmove has no control over the content. This property advertisement does not constitute property particulars. The information is provided and maintained by KLP, Exeter. Please contact the selling agent or developer directly to obtain any information which may be available under the terms of The Energy Performance of Buildings (Certificates and Inspections) (England and Wales) Regulations 2007 or the Home Report if in relation to a residential property in Scotland.
Auction Fees: The purchase of this property may include associated fees not listed here, as it is to be sold via auction. To find out more about the fees associated with this property please call KLP, Exeter on 01392 321980.
*Guide Price: An indication of a seller's minimum expectation at auction and given as a Guide Price or a range of Guide Prices. This is not necessarily the figure a property will sell for and is subject to change prior to the auction.
Reserve Price: Each auction property will be subject to a Reserve Price below which the property cannot be sold at auction. Normally the Reserve Price will be set within the range of Guide Prices or no more than 10% above a single Guide Price.
Map data ©OpenStreetMap contributors.





