LAKE VIEW, Wawensmere Road, Wootton Wawen, Henley-In-Arden, Warwickshire, B95 6BW

- PROPERTY TYPE
Link Detached House
- BEDROOMS
4
- BATHROOMS
3
- SIZE
Ask agent
- TENUREDescribes how you own a property. There are different types of tenure - freehold, leasehold, and commonhold.Read more about tenure in our glossary page.
Freehold
Key features
- HIGHEST QUALITY NEW BUILD
- ECONOMICAL AIR SOURCED HEATING
- TOP QUALITY SPECIFICATION THROUGHOUT
- 3 RECEPTION ROOMS
- 4 BEDROOMS
- 2 ENSUITE & BATHROOM
- SIEMATIC KITCHEN & APPLIANCES
- SOUTH FACING GARDEN & PADDOCK LAND
- DOUBLE GARAGE WITH ANCILLARY ACCOMMODATION ABOVE
- READY TO MOVE IN NOW
Description
Exclusive Luxury Homes. An exceptional collection of just three beautifully crafted, high-specification family homes, designed and finished to an outstanding standard throughout. Each property offers elegant, spacious interiors with premium finishes and meticulous attention to detail, seamlessly blending modern comfort with timeless style. To the rear, stunning open South facing views over the valley provide a wonderful sense of privacy and tranquility, creating a peaceful backdrop to everyday living.
Further enhancing their appeal, this home features generous double garaging along with an impressive hobbies room/workshop above — ideal for a home office, studio, gym or additional lifestyle space. Exclusive rights to walk over fields to the nearby private Lakes.
Discover Life in Wootton Wawen – Where History Meets Modern Living
A charming Warwickshire village offering the perfect blend of countryside tranquility and modern convenience. Nestled along the River Alne, this picturesque location is steeped in history and surrounded by beautiful rural landscapes – an idyllic setting for your new home.
At the heart of the village is the much-loved The Bulls Head, a traditional country Thai pub full of character. Whether you’re enjoying a relaxed Thai lunch, meeting friends for drinks, or unwinding after a long day, it’s a true community hub that captures the warm spirit of village life.
History enthusiasts will appreciate the presence of St Peter’s Church, one of the oldest churches in Warwickshire, reflecting the village’s rich heritage and timeless appeal.
Despite its peaceful setting, Wootton Wawen offers excellent connectivity. The vibrant cultural town of Stratford-upon-Avon – famous for its Shakespearean heritage – is just a short drive away, offering boutique shopping, theatres, riverside dining and outstanding schools. The charming market town of Henley-in-Arden is also nearby, known for its historic high street, independent shops and welcoming community atmosphere.
Commuters will benefit from easy access to the motorway network, making travel to Birmingham, the Midlands and beyond straightforward and convenient.
Why Choose Wootton Wawen?
Beautiful countryside surroundings
Strong sense of community
Historic character and charm
Excellent local pub and amenities
Easy access to Stratford-upon-Avon, Henley-in-Arden and major road links
If you’re searching for a new home that offers rural charm without sacrificing convenience, Wootton Wawen could be the perfect place to put down roots.
Experience village living at its finest — your new beginning starts here.
Discover Life in Wootton Wawen – Where History Meets Modern Living
A charming Warwickshire village offering the perfect blend of countryside tranquility and modern convenience. Nestled along the River Alne, this picturesque location is steeped in history and surrounded by beautiful rural landscapes – an idyllic setting for your new home.
At the heart of the village is the much-loved The Bulls Head, a traditional country Thai pub full of character. Whether you’re enjoying a relaxed Thai lunch, meeting friends for drinks, or unwinding after a long day, it’s a true community hub that captures the warm spirit of village life.
History enthusiasts will appreciate the presence of St Peter’s Church, one of the oldest churches in Warwickshire, reflecting the village’s rich heritage and timeless appeal.
Despite its peaceful setting, Wootton Wawen offers excellent connectivity. The vibrant cultural town of Stratford-upon-Avon – famous for its Shakespearean heritage – is just a short drive away, offering boutique shopping, theatres, riverside dining and outstanding schools. The charming market town of Henley-in-Arden is also nearby, known for its historic high street, independent shops and welcoming community atmosphere.
Commuters will benefit from easy access to the motorway network, making travel to Birmingham, the Midlands and beyond straightforward and convenient.
Why Choose Wootton Wawen?
Beautiful countryside surroundings
Strong sense of community
Historic character and charm
Excellent local pub and amenities
Easy access to Stratford-upon-Avon, Henley-in-Arden and major road links
If you’re searching for a new home that offers rural charm without sacrificing convenience, Wootton Wawen could be the perfect place to put down roots.
Experience village living at its finest — your new beginning starts here.
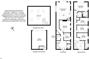
An impressive brick pillar entrance opens onto a generous gravelled forecourt with designated parking, setting the tone for this beautifully designed contemporary home.
A central front door with side glazing welcomes you into a wide reception hall, finished with Amtico flooring and underfloor heating throughout the ground floor. There is a stylish fully tiled guest WC, a useful cloaks cupboard, and a bright study with a full-height picture window.
The elegant sitting room is designed for modern living, featuring illuminated display shelving, integrated ceiling sound system and a striking glass-fronted feature fire. Large bi-fold doors open onto the patio and south-facing garden, creating a seamless indoor-outdoor flow.
Undoubtedly the heart of the home, the stunning kitchen/dining/day room is flooded with natural light and enjoys uninterrupted valley views. Expansive bi-fold doors bring the countryside in, while the bespoke Siematic kitchen in Agate Grey and Lincoln Walnut is complemented by Himalayan crystal stone worktops and premium Miele and Siemens appliances, including twin ovens, full-height fridge and freezer, dishwasher and Bora downdraft hob. Contemporary lighting and refined finishes complete this exceptional space.
Upstairs, a vaulted landing with Velux skylight leads to the impressive principal suite, offering garden and valley views and a luxurious en-suite with rainfall shower and twin basins. Three further double bedrooms include an additional en-suite, alongside a beautifully appointed family bathroom.
Outside, the south-facing garden features a full-width patio, landscaped lawn and fencing designed to maximise privacy and outlook. Vale View enjoying the adjoining large paddock to the side of the garden.
The double garage includes an electric door, EV charger, power, lighting and water supply, with stairs rising to superb ancillary accommodation above — a versatile, fully serviced space with light, power, water and drainage, ideal as a home office, studio, gym, workshop or hobby room.
A striking, high-specification home combining space, style and breathtaking views.
Brochures
Brochure 1- COUNCIL TAXA payment made to your local authority in order to pay for local services like schools, libraries, and refuse collection. The amount you pay depends on the value of the property.Read more about council Tax in our glossary page.
- Ask agent
- PARKINGDetails of how and where vehicles can be parked, and any associated costs.Read more about parking in our glossary page.
- Garage
- GARDENA property has access to an outdoor space, which could be private or shared.
- Private garden
- ACCESSIBILITYHow a property has been adapted to meet the needs of vulnerable or disabled individuals.Read more about accessibility in our glossary page.
- Ask agent
LAKE VIEW, Wawensmere Road, Wootton Wawen, Henley-In-Arden, Warwickshire, B95 6BW
Add an important place to see how long it'd take to get there from our property listings.
__mins driving to your place
Get an instant, personalised result:
- Show sellers you’re serious
- Secure viewings faster with agents
- No impact on your credit score

Your mortgage
Notes
Staying secure when looking for property
Ensure you're up to date with our latest advice on how to avoid fraud or scams when looking for property online.
Visit our security centre to find out moreDisclaimer - Property reference S1643515. The information displayed about this property comprises a property advertisement. Rightmove.co.uk makes no warranty as to the accuracy or completeness of the advertisement or any linked or associated information, and Rightmove has no control over the content. This property advertisement does not constitute property particulars. The information is provided and maintained by Hawkins & Patterson, Henley in Arden. Please contact the selling agent or developer directly to obtain any information which may be available under the terms of The Energy Performance of Buildings (Certificates and Inspections) (England and Wales) Regulations 2007 or the Home Report if in relation to a residential property in Scotland.
*This is the average speed from the provider with the fastest broadband package available at this postcode. The average speed displayed is based on the download speeds of at least 50% of customers at peak time (8pm to 10pm). Fibre/cable services at the postcode are subject to availability and may differ between properties within a postcode. Speeds can be affected by a range of technical and environmental factors. The speed at the property may be lower than that listed above. You can check the estimated speed and confirm availability to a property prior to purchasing on the broadband provider's website. Providers may increase charges. The information is provided and maintained by Decision Technologies Limited. **This is indicative only and based on a 2-person household with multiple devices and simultaneous usage. Broadband performance is affected by multiple factors including number of occupants and devices, simultaneous usage, router range etc. For more information speak to your broadband provider.
Map data ©OpenStreetMap contributors.




