Harvest Drive, Stockton, Stockton-on-Tees, Durham, TS19 8GQ

- PROPERTY TYPE
Detached
- BEDROOMS
4
- BATHROOMS
2
- SIZE
Ask agent
- TENUREDescribes how you own a property. There are different types of tenure - freehold, leasehold, and commonhold.Read more about tenure in our glossary page.
Freehold
Key features
- POPULAR LOCATION
- DETACHED FAMILY HOME
- DRIVEWAY AND GARAGE
- OPEN PLAN LIVING
- TWO RECEPTION ROOMS
- FOUR BEDROOMS
- TWO BATHROOMS
- GENEROUS REAR GARDEN
Description
The kerb appeal is immediate and assured, symmetrical elevations, crisp detailing and a smart block-paved approach set a confident tone before you even step inside. Once through the door, the sense of space unfolds beautifully. At the heart of the home lies a striking open-plan kitchen, living and dining space, thoughtfully designed for modern lifestyles, whether that’s casual family breakfasts, evening entertaining or hosting on a larger scale. A separate utility room keeps the practicalities discreetly tucked away, while a convenient ground floor cloakroom adds to the functionality.
Two well-proportioned reception rooms provide versatility in abundance. A formal lounge offers a calm retreat with a modern media wall, while the second reception lends itself perfectly to a home office, snug or playroom. Ideal for today’s flexible working demands.
Upstairs, four generously sized bedrooms create comfortable accommodation for growing families or visiting guests. The principal suite benefits from a sleek, contemporary en-suite and a fitted wardrobe, complemented by a stylish family bathroom finished with modern fittings and clean architectural lines.
Externally, the property occupies a notably generous plot. The rear garden is a true asset, expansive, private and designed for enjoyment. Two paved patio seating area invites al fresco dining in the warmer months, with ample lawn for children to play or for keen gardeners to personalise.
A triple-length block paved driveway leads to the garage, providing substantial off-street parking and additional storage options.
Positioned within easy reach of University Hospital of North Tees, the location is particularly convenient for healthcare professionals or anyone seeking swift access to major local amenities. A home of quality, space and modern comfort, ready to be enjoyed from day one. Call
Council Tax Band: D
Tenure: Freehold
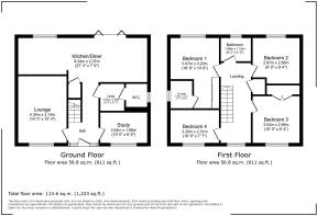
Accommodation
Living Room
4.34m x 3.14m
Second Reception Room
3.04m x 1.98m
Kitchen
8.34m x 2.37m
Dining Room
Seating area
Utility room
Cloak room
Bedroom 1
5.07m x 3.2m
En Suite
Bedroom 3
3.04m x 2.85m
Bedroom 2
2.97m x 2.85m
Bathroom
2.13m x 1.66m
Rear garden
Brochures
Brochure- COUNCIL TAXA payment made to your local authority in order to pay for local services like schools, libraries, and refuse collection. The amount you pay depends on the value of the property.Read more about council Tax in our glossary page.
- Band: D
- PARKINGDetails of how and where vehicles can be parked, and any associated costs.Read more about parking in our glossary page.
- Yes
- GARDENA property has access to an outdoor space, which could be private or shared.
- Yes
- ACCESSIBILITYHow a property has been adapted to meet the needs of vulnerable or disabled individuals.Read more about accessibility in our glossary page.
- Ask agent
Harvest Drive, Stockton, Stockton-on-Tees, Durham, TS19 8GQ
Add an important place to see how long it'd take to get there from our property listings.
__mins driving to your place
Get an instant, personalised result:
- Show sellers you’re serious
- Secure viewings faster with agents
- No impact on your credit score


Affordability
Notes
Staying secure when looking for property
Ensure you're up to date with our latest advice on how to avoid fraud or scams when looking for property online.
Visit our security centre to find out moreDisclaimer - Property reference 505411. The information displayed about this property comprises a property advertisement. Rightmove.co.uk makes no warranty as to the accuracy or completeness of the advertisement or any linked or associated information, and Rightmove has no control over the content. This property advertisement does not constitute property particulars. The information is provided and maintained by Pattinson Estate Agents, Stockton-On-Tees. Please contact the selling agent or developer directly to obtain any information which may be available under the terms of The Energy Performance of Buildings (Certificates and Inspections) (England and Wales) Regulations 2007 or the Home Report if in relation to a residential property in Scotland.
*This is the average speed from the provider with the fastest broadband package available at this postcode. The average speed displayed is based on the download speeds of at least 50% of customers at peak time (8pm to 10pm). Fibre/cable services at the postcode are subject to availability and may differ between properties within a postcode. Speeds can be affected by a range of technical and environmental factors. The speed at the property may be lower than that listed above. You can check the estimated speed and confirm availability to a property prior to purchasing on the broadband provider's website. Providers may increase charges. The information is provided and maintained by Decision Technologies Limited. **This is indicative only and based on a 2-person household with multiple devices and simultaneous usage. Broadband performance is affected by multiple factors including number of occupants and devices, simultaneous usage, router range etc. For more information speak to your broadband provider.
Map data ©OpenStreetMap contributors.




