194 Midfield, Talmine, Tongue, Sutherland IV27 4YT

- PROPERTY TYPE
Detached
- BEDROOMS
3
- BATHROOMS
2
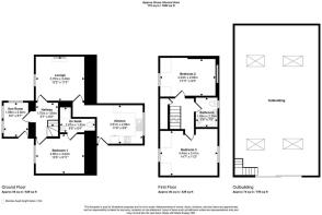
- SIZE
947 sq ft
88 sq m
- TENUREDescribes how you own a property. There are different types of tenure - freehold, leasehold, and commonhold.Read more about tenure in our glossary page.
Freehold
Key features
- 3 BEDROOM TRADITIONAL STONE BUILT COTTAGE
- SET IN A LARGE GARDEN
- OUTBUILDINGS (BARN & WORKSHOP)
- REMOTE LOCATION
- STUNNING VIEWS
- HOME REPORT UNDER EPC LINK
Description
Nestled on Scotland's picturesque north coast, this traditional stone-built cottage offers a rare opportunity to embrace a truly remote lifestyle with breathtaking views. Set within a generous garden plot, this three-bedroom property comes with invaluable outbuildings.
LOCATION:- Situated just off the renowned NC500 Tourist Route, 194 Midfield offers a serene escape. The local convenience store in Talmine is a mere 1.3 miles away, while the village of Tongue, approximately 7 miles south, provides additional amenities. For more extensive shopping, Thurso is 50 miles to the east and Tain 70 miles to the south. Educational provisions include primary schooling in Tongue and secondary education at Farr High School, around 20 miles east.
SUNROOM (2.62m x 1.88m):- A delightful and bright space, perfect for relaxing and soaking in the magnificent surrounding views. There is ample room for a table and chairs, offering an ideal spot for morning coffee or evening sunsets.
LOUNGE (3.7m x 3.4m):- The inviting lounge is the heart of the home, featuring an inset multi-fuel burner set upon a attractive slate hearth. This creates a warm and cosy atmosphere, perfect for unwinding.
KITCHEN (3.51m x 2.96m):- This functional kitchen is fitted with practical grey wall and base units arranged in a U-shape, complete with an integrated hob, cooker hood, eye-level oven, and microwave. Large windows allow natural light to flood the space and offer scenic views of the garden.
BEDROOM 1 WITH EN SUITE (3.8m x 3.02m):- Conveniently located on the ground floor, this comfortable double bedroom boasts an en-suite shower room. The en-suite is appointed with a white wash basin, W/C, and a shower enclosure with an electric shower, providing comfort and privacy.
HALL, STAIRS & LANDING:- The welcoming ground floor hall provides direct access to Bedroom 1 and the lounge. A staircase ascends to the first floor, leading to two further bedrooms and the family bathroom.
BEDROOM 2 (4.23m x 2.82m):- A well-proportioned double bedroom, offering a bright and airy feel and pleasant outlooks.
BEDROOM 3 (4.44m x 3.41m):- Another generously sized double bedroom, providing versatile space and ample natural light.
BATHROOM (2.26m x 1.65m):- The family bathroom features a classic white three-piece suite, including a bath, wash basin, and W/C.
GARDEN & OUTBUILDINGS:- The property sits centrally within its substantial, fenced garden plot, extending to approximately 0.45 acres. To the side, a large farm building currently functions as a stable/shelter, with its first floor cleverly converted into a workshop. A double garage further enhances parking and storage options. The expansive outdoor space offers immense potential for various uses.
Brochures
Brochure 1- COUNCIL TAXA payment made to your local authority in order to pay for local services like schools, libraries, and refuse collection. The amount you pay depends on the value of the property.Read more about council Tax in our glossary page.
- Band: C
- PARKINGDetails of how and where vehicles can be parked, and any associated costs.Read more about parking in our glossary page.
- Garage,Off street
- GARDENA property has access to an outdoor space, which could be private or shared.
- Private garden
- ACCESSIBILITYHow a property has been adapted to meet the needs of vulnerable or disabled individuals.Read more about accessibility in our glossary page.
- Ask agent
194 Midfield, Talmine, Tongue, Sutherland IV27 4YT
Add an important place to see how long it'd take to get there from our property listings.
__mins driving to your place
Get an instant, personalised result:
- Show sellers you’re serious
- Secure viewings faster with agents
- No impact on your credit score
Affordability
Notes
Staying secure when looking for property
Ensure you're up to date with our latest advice on how to avoid fraud or scams when looking for property online.
Visit our security centre to find out moreDisclaimer - Property reference S1421906. The information displayed about this property comprises a property advertisement. Rightmove.co.uk makes no warranty as to the accuracy or completeness of the advertisement or any linked or associated information, and Rightmove has no control over the content. This property advertisement does not constitute property particulars. The information is provided and maintained by Paul Coutts Estate Agency, Inverness. Please contact the selling agent or developer directly to obtain any information which may be available under the terms of The Energy Performance of Buildings (Certificates and Inspections) (England and Wales) Regulations 2007 or the Home Report if in relation to a residential property in Scotland.
*This is the average speed from the provider with the fastest broadband package available at this postcode. The average speed displayed is based on the download speeds of at least 50% of customers at peak time (8pm to 10pm). Fibre/cable services at the postcode are subject to availability and may differ between properties within a postcode. Speeds can be affected by a range of technical and environmental factors. The speed at the property may be lower than that listed above. You can check the estimated speed and confirm availability to a property prior to purchasing on the broadband provider's website. Providers may increase charges. The information is provided and maintained by Decision Technologies Limited. **This is indicative only and based on a 2-person household with multiple devices and simultaneous usage. Broadband performance is affected by multiple factors including number of occupants and devices, simultaneous usage, router range etc. For more information speak to your broadband provider.
Map data ©OpenStreetMap contributors.




