
East Street, Selsey, PO20

- PROPERTY TYPE
Detached Bungalow
- BEDROOMS
2
- BATHROOMS
1
- SIZE
609 sq ft
57 sq m
- TENUREDescribes how you own a property. There are different types of tenure - freehold, leasehold, and commonhold.Read more about tenure in our glossary page.
Freehold
Key features
- Detached bungalow in close proximity to the high street
- Two double bedrooms
- Living room & kitchen
- Conservatory
- South Facing Garden
- Driveway And Garage
- No onward chain
- On a bus route for ease of transport links
- Primary & secondary schools within close proximity
Description
Offered to the market for the 1st time in around 20yrs is this detached bungalow, offering an excellent opportunity for buyers seeking convenience in a highly accessible location, situated just a short distance from the high street with its range of shops, cafes, and amenities. The property features two double bedrooms, both of which provide space for furnishings and storage.
The living room is perfect for relaxing or entertaining, benefitting from natural light that creates a warm and cosy atmosphere. Adjacent to the living room, there is a kitchen offering a range of fitted units and worktop space suitable for every-day meal preparation. A conservatory to the rear of the kitchen provides a versatile area that can be enjoyed, whether as a reading nook, or utility space. The bungalow also boasts a south-facing garden which wraps around onto the wester side ensuring plenty of sunlight and offering an outlook from the main living areas and conservatory. Practicality is further enhanced by the inclusion of a private driveway and a garage, which together provide off-street parking and valuable storage options. The property is offered with no onward chain, streamlining the purchase process and making it an appealing choice for those looking to move quickly. For added convenience, the bungalow is situated in close proximity to both primary & secondary schools along with being on a bus route, providing excellent transport links to surrounding areas and making it particularly suitable for those who value easy access to public transport. This property represents an ideal opportunity for downsizers, professionals, or anyone seeking single-level living close to local amenities.
EPC Rating: D
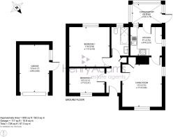
Entrance Hall
Double glazed front door opening to the entrance hall
Living room (3.46m x 3.72m)
Door into the kitchen
Kitchen (2.53m x 2.76m)
Door into the conservatory
Conservatory (1.73m x 2.63m)
Door into the garden
Bedroom One (3.43m x 3.56m)
Bedroom Two (2.21m x 3.11m)
Bathroom
Bath with shower above, w/c and wash hand basin
Front Garden
Laid to lawn
Rear Garden
Mainly laid to lawn with hardstanding area for seating, side access to the driveway.
Parking - Driveway
Providing off road parking for several cars and side access to the rear garden
Parking - Garage
Up & over door, personal door into the garden
Brochures
Property Brochure- COUNCIL TAXA payment made to your local authority in order to pay for local services like schools, libraries, and refuse collection. The amount you pay depends on the value of the property.Read more about council Tax in our glossary page.
- Band: C
- PARKINGDetails of how and where vehicles can be parked, and any associated costs.Read more about parking in our glossary page.
- Garage,Driveway
- GARDENA property has access to an outdoor space, which could be private or shared.
- Front garden,Rear garden
- ACCESSIBILITYHow a property has been adapted to meet the needs of vulnerable or disabled individuals.Read more about accessibility in our glossary page.
- Ask agent
East Street, Selsey, PO20
Add an important place to see how long it'd take to get there from our property listings.
__mins driving to your place
Get an instant, personalised result:
- Show sellers you’re serious
- Secure viewings faster with agents
- No impact on your credit score
Your mortgage
Notes
Staying secure when looking for property
Ensure you're up to date with our latest advice on how to avoid fraud or scams when looking for property online.
Visit our security centre to find out moreDisclaimer - Property reference 2961edd5-5130-468b-b6ef-5cbc8ef81b9a. The information displayed about this property comprises a property advertisement. Rightmove.co.uk makes no warranty as to the accuracy or completeness of the advertisement or any linked or associated information, and Rightmove has no control over the content. This property advertisement does not constitute property particulars. The information is provided and maintained by Henry Adams, Selsey. Please contact the selling agent or developer directly to obtain any information which may be available under the terms of The Energy Performance of Buildings (Certificates and Inspections) (England and Wales) Regulations 2007 or the Home Report if in relation to a residential property in Scotland.
*This is the average speed from the provider with the fastest broadband package available at this postcode. The average speed displayed is based on the download speeds of at least 50% of customers at peak time (8pm to 10pm). Fibre/cable services at the postcode are subject to availability and may differ between properties within a postcode. Speeds can be affected by a range of technical and environmental factors. The speed at the property may be lower than that listed above. You can check the estimated speed and confirm availability to a property prior to purchasing on the broadband provider's website. Providers may increase charges. The information is provided and maintained by Decision Technologies Limited. **This is indicative only and based on a 2-person household with multiple devices and simultaneous usage. Broadband performance is affected by multiple factors including number of occupants and devices, simultaneous usage, router range etc. For more information speak to your broadband provider.
Map data ©OpenStreetMap contributors.








