
Market Street, Hailsham

- PROPERTY TYPE
Apartment
- BEDROOMS
7
- BATHROOMS
6
- SIZE
2,624 sq ft
244 sq m
- TENUREDescribes how you own a property. There are different types of tenure - freehold, leasehold, and commonhold.Read more about tenure in our glossary page.
Freehold
Key features
- Fantastic Development Opportunity
- Land Mark Property - Ideal Conversion
- Plans Passed for Conversion into Four Apartments
- One and Two Bed Apartments
- Parking and Gardens to the Ground Floor Apartments
- Fairly Straightforward Conversion
- Prime Position in this Bustling High Street
- Former Lloyds Bank Building
- Offered Chain Free
- Rarely Available
Description
An amazing opportunity to acquire a detached property with plans passed to convert into FOUR impressive residential apartments with associated parking and amenity space. Flats will equate to roughly 2624 SQ FT in total.
This wonderful property probably dating from the 19th Century and formally the Lloyds Bank premises is now offered with VACANT POSSESSION with planning passed to convert into four residential apartments.
The conversion should be relatively straight forward and also offers the benefit of associated car parking, cycle storage and gardens.
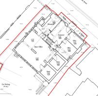
Following the plans passed the property will comprise :
Ground floor
Flat A - One bedroom, bathroom, sitting room incorporating the kitchen and amenity space. Parking. Approx 51 sq m
Flat B - Two bedrooms the master with en - suite, separate kitchen, sitting room and bathroom together private garden area. This will be a super Gounod floor apartment. Parking. Approx 73 sq m
First Floor
Flat C - One bedroom, kitchen, bathroom and sitting room. Parking. Approx 41 sq m
Flat D - An impressive penthouse apartment consisting of three bedrooms the master with en-suite, sitting room, kitchen and a bathroom with access to the potential roof terrace. Parking. Approx 79 sq m
Offered freehold with vacant possession.
THE PERMISSION CONVERSION OF BUILDING FROM A BANK (USE CLASS E) TO FOUR APARTMENTS (USE CLASS C3) INCLUDING FIRST FLOOR REAR EXTENSION AND OTHER ASSOCIATED EXTERNAL WORKS.
LLOYDS TSB BANK PLC, MARKET STREET, HAILSHAM, BN27 2AE
Full details and conditions can be found at :
search planning :
WD/2025/2365/F
THE LOCATION The market town of Hailsham offers extensive independent and High Street shopping, a shopping centre, supermarkets including Waitrose, restaurants, bars and cafés, GP and dental surgeries and primary and secondary schooling. Local leisure amenities including a 22-acre country park with fishing lake, a playing field, leisure centre, the Cuckoo Trail walking and cycling route and numerous woodland, riverside and field walks. Comprehensive facilities are also available in the seaside town of Eastbourne and the county town of Lewes. The beaches at Eastbourne and on the south coast provide a wide range of watersports.
Transportation links are excellent: the A22 links to the A27 and motorway network and to London airports, buses connect Hailsham to Eastbourne, Lewes and Brighton, and Polegate station (3.8 miles) offers regular services to Haywards Heath and central London.The area offers a wide range of state primary and secondary schooling together with independent schools including Bede's, Eastbourne College and St Andrew's Prep.
- COUNCIL TAXA payment made to your local authority in order to pay for local services like schools, libraries, and refuse collection. The amount you pay depends on the value of the property.Read more about council Tax in our glossary page.
- Ask agent
- PARKINGDetails of how and where vehicles can be parked, and any associated costs.Read more about parking in our glossary page.
- Off street,Allocated
- GARDENA property has access to an outdoor space, which could be private or shared.
- Yes
- ACCESSIBILITYHow a property has been adapted to meet the needs of vulnerable or disabled individuals.Read more about accessibility in our glossary page.
- Ask agent
Energy performance certificate - ask agent
Market Street, Hailsham
Add an important place to see how long it'd take to get there from our property listings.
__mins driving to your place
Get an instant, personalised result:
- Show sellers you’re serious
- Secure viewings faster with agents
- No impact on your credit score
Affordability
Notes
Staying secure when looking for property
Ensure you're up to date with our latest advice on how to avoid fraud or scams when looking for property online.
Visit our security centre to find out moreDisclaimer - Property reference 102651004067. The information displayed about this property comprises a property advertisement. Rightmove.co.uk makes no warranty as to the accuracy or completeness of the advertisement or any linked or associated information, and Rightmove has no control over the content. This property advertisement does not constitute property particulars. The information is provided and maintained by James & Co, Great Dunmow. Please contact the selling agent or developer directly to obtain any information which may be available under the terms of The Energy Performance of Buildings (Certificates and Inspections) (England and Wales) Regulations 2007 or the Home Report if in relation to a residential property in Scotland.
*This is the average speed from the provider with the fastest broadband package available at this postcode. The average speed displayed is based on the download speeds of at least 50% of customers at peak time (8pm to 10pm). Fibre/cable services at the postcode are subject to availability and may differ between properties within a postcode. Speeds can be affected by a range of technical and environmental factors. The speed at the property may be lower than that listed above. You can check the estimated speed and confirm availability to a property prior to purchasing on the broadband provider's website. Providers may increase charges. The information is provided and maintained by Decision Technologies Limited. **This is indicative only and based on a 2-person household with multiple devices and simultaneous usage. Broadband performance is affected by multiple factors including number of occupants and devices, simultaneous usage, router range etc. For more information speak to your broadband provider.
Map data ©OpenStreetMap contributors.






