
Curzon Street, Mayfair, W1J

Letting details
- Let available date:
- Ask agent
- Deposit:
- £12,600A deposit provides security for a landlord against damage, or unpaid rent by a tenant.Read more about deposit in our glossary page.
- Min. Tenancy:
- 12 months How long the landlord offers to let the property for.Read more about tenancy length in our glossary page.
- Let type:
- Long term
- Furnish type:
- Furnished
- Council Tax:
- Ask agent
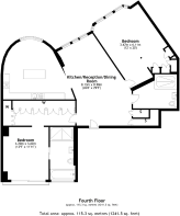
- PROPERTY TYPE
Apartment
- BEDROOMS
2
- BATHROOMS
2
- SIZE
1,150 sq ft
107 sq m
Key features
- Concierge
- Air Conditioning
- 4th Floor with Lift
- Mayfair
- Luxury Finish
- Two Large Bedrooms
- Two Bathrooms
- Furnished
Description
This exceptional two-bedroom apartment is situated on the fourth floor of a prestigious building in the heart of Mayfair, accessible via lift and offering a dedicated concierge service for residents’ convenience. Finished to a luxurious standard throughout, the property features a spacious open-plan living and dining area, complemented by elegant furnishings and high-quality fixtures. Both bedrooms are generously proportioned, providing ample space for relaxation. The principal bedroom includes an en suite bathroom, while a second, beautifully appointed bathroom serves guests or the additional bedroom. Air conditioning ensures comfort throughout the seasons, and the apartment’s thoughtful layout maximises both light and space. Offered fully furnished, this stylish home is ready for immediate occupation, making it ideal for those seeking a sophisticated residence in one of London’s most prestigious neighbourhoods. With its combination of contemporary design, premium finishes and outstanding location, this apartment presents a rare opportunity to experience luxury living in the heart of the West End.
Brochures
Property Brochure- COUNCIL TAXA payment made to your local authority in order to pay for local services like schools, libraries, and refuse collection. The amount you pay depends on the value of the property.Read more about council Tax in our glossary page.
- Ask agent
- PARKINGDetails of how and where vehicles can be parked, and any associated costs.Read more about parking in our glossary page.
- Ask agent
- GARDENA property has access to an outdoor space, which could be private or shared.
- Ask agent
- ACCESSIBILITYHow a property has been adapted to meet the needs of vulnerable or disabled individuals.Read more about accessibility in our glossary page.
- Ask agent
Energy performance certificate - ask agent
Curzon Street, Mayfair, W1J
Add an important place to see how long it'd take to get there from our property listings.
__mins driving to your place
Notes
Staying secure when looking for property
Ensure you're up to date with our latest advice on how to avoid fraud or scams when looking for property online.
Visit our security centre to find out moreDisclaimer - Property reference f925c93e-3ebc-4a57-9f19-42c7a22277e4. The information displayed about this property comprises a property advertisement. Rightmove.co.uk makes no warranty as to the accuracy or completeness of the advertisement or any linked or associated information, and Rightmove has no control over the content. This property advertisement does not constitute property particulars. The information is provided and maintained by Prime Collection, London. Please contact the selling agent or developer directly to obtain any information which may be available under the terms of The Energy Performance of Buildings (Certificates and Inspections) (England and Wales) Regulations 2007 or the Home Report if in relation to a residential property in Scotland.
*This is the average speed from the provider with the fastest broadband package available at this postcode. The average speed displayed is based on the download speeds of at least 50% of customers at peak time (8pm to 10pm). Fibre/cable services at the postcode are subject to availability and may differ between properties within a postcode. Speeds can be affected by a range of technical and environmental factors. The speed at the property may be lower than that listed above. You can check the estimated speed and confirm availability to a property prior to purchasing on the broadband provider's website. Providers may increase charges. The information is provided and maintained by Decision Technologies Limited. **This is indicative only and based on a 2-person household with multiple devices and simultaneous usage. Broadband performance is affected by multiple factors including number of occupants and devices, simultaneous usage, router range etc. For more information speak to your broadband provider.
Map data ©OpenStreetMap contributors.





