
Building Plot | Kingswood
- PROPERTY TYPE
Plot
- BEDROOMS
2
- BATHROOMS
2
- SIZE
Ask agent
Key features
- FOR SALE BY ONLINE AUCTION
- WEDNESDAY 22ND APRIL 2026
- VIRTUAL TOUR NOW ONLINE
- VIEWINGS – REFER TO DETAILS
- DOWNLOAD FREE LEGAL PACK
- *** POSTPONED FROM AUCTION ***
- CLIENT SEEKING SUPPORTING DOCS
- PLANNING GRANTED + EXTANT
- DETACHED 2 BED DETACHED HOUSE
- EXTENDED 8 WEEK COMPLETION
Description
For Sale By Live Online Auction - *** UPDATE 13/04/2026 - The sale of this plot has been postponed as the sellers need to obtain a certificate of lawfulness and amend the planning ***
ADDRESS | Building Plot @ 61 Alma Road, Kingswood, Bristol BS15 4EQ
Lot Number 9
The Live Online Auction is on Wednesday 22nd April 2026 @ 12:00 Noon
Registration Deadline is on Friday 17th April 2026 @ 16:00
The Auction will be streamed LIVE ONLINE via the Hollis Morgan website & you can choose to bid by telephone, proxy or via your computer.
Registration is a simple online process – please visit the Hollis Morgan auction website and click “REGISTER TO BID”
The Land - A Freehold parcel of land 0.04 acres in size with detailed planning consent for a single dwelling adjacent to a new build property.
Sold with vacant possession
Tenure - Freehold
The Opportunity - PLANNING GRANTED | 2 BED HOUSE
Planning has been granted ( P22/06097/F ) to erect a detached 2 bedroom house ( 961 Sq ft ) with parking and garden in this popular residential location.
Please refer to independent rental appraisal.
We understand the planning is extant due to a material start on site in 2025.
CIL
We understand the vendor has part paid the Community Infrastructure Levy, with receipts available on request.
The total amount of CIL payable is £11,368.14, however the vendor has paid £2273.62 recently.
The outstanding amount for the purchaser to pay is £9094.52.
SERVICES
New electric supply which is currently live and connected and is isolated at the front left post on the corner of the plot.
The drainage has been installed in the front driveway and at the rear of the plot.
Interested parties to make their own investigations
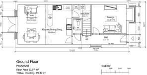
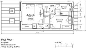
PROPOSED SCHEDULE OF ACCOMMODATION
Ground Floor - Lounge | Kitchen Diner | WC
First Floor - Bedroom 1 | En-suite Shower Room | Bedroom 2 | Bathroom
Planning Granted - ReferenceP22/06097/F
Alternative ReferencePP-11640212
Application ReceivedSun 23 Oct 2022
Application ValidatedFri 28 Oct 2022
Address61 Alma Road Kingswood South Gloucestershire BS15 4EQ
ProposalErection of 1 no. detached dwelling with associated works.
StatusDecided
DecisionApprove with Conditions
Decision Issued DateThu 29 Dec 2022
Appeal StatusUnknown
Appeal DecisionNot Available
Planning Information - P22/06097/F | Erection of 1 no. detached dwelling with associated works. | 61 Alma Road Kingswood South Gloucestershire BS15 4EQ
Full details of the proposed scheme and drawings can be downloaded with the online legal pack.
Rental Appraisal - What rent can we achieve for you?
The Bristol Residential Letting Co. are confident this property would make a good rental investment if brought to a standard suitable for the professional rental market. Danny Dean of The Bristol Residential Letting Co suggests a rent in the region of;
Building ) for a no obligation discussion. I am always happy to advise investors on maximising their investment.
Location - Alma Road is in the popular Bristol suburb of Kingswood just a few miles East of Bristol city centre, providing easy access to the city's shops, restaurants, and cultural attractions. The area has excellent transport links, with regular buses and easy access to the M4 and M5 motorways, making it an ideal location for commuters. The housing stock in Two Mile Hill is diverse, with a range of property types, including Victorian terraces, 1930s semis, and modern apartments, there are several parks and green spaces nearby, including the popular Kingswood Park. The area is served by several primary and secondary schools including the highly regarded Two Mile Hill Primary School. There are also plenty of amenities in the area, including supermarkets, shops, and restaurants.
Solicitors & Completion - Navead Yousaf
Burgh Thorpe Solicitors
navead.
EXTENDED COMPLETION
Completion is set for 8 weeks or earlier subject to mutual consent.
Important Auction Information - VIEWINGS
Please submit a viewing request online and we will contact you to organise an appointment.
We will send you an email and text to confirm the appointment time and the full property address.
Viewings are supervised by a member of the Hollis Morgan Auction team who will meet you at the property.
MATERIAL INFORMATION
Information including utilities, Electricity supply, Water supply, Sewerage, Heating, Broadband, Mobile signal / coverage, Parking, Building safety, Restrictions and rights, Rights and easements, Flood risk, Erosion risk, Coastal erosion risk, Planning permission for proposal for development, Property accessibility / adaptations, Coalfield or mining area all of which will be supplied within the legal pack that can be accessed for free via the Hollis Morgan website or via your EIG account.
ONLINE LEGAL PACKS
Digital Copies of the Online legal pack can be downloaded Free of Charge.
Please visit the Hollis Morgan Website and select the chosen lot from our Current Auction List.
Press the GREEN button to "Download Legal Packs" For the first visit you will be required to register simply with your email and a password.
Having set up your account you can download legal packs or if they are not yet available, they will automatically be sent to you when they are uploaded.
You will be automatically updated by email if any new information is added.
There will be a note added to the list to confirm AUCTION PACK NOW COMPLETE when no further information is due to be added.
*** STAY UPDATED *** By registering for the legal pack we can ensure you are kept updated on any changes to this Lot in the build up to the sale.
BUYER’S PREMIUM
Please be aware all purchasers are subject to a £1,500 + VAT (£1,800 inc VAT) buyer's premium which is ALWAYS payable upon exchange of contracts whether the sale is concluded before, during or after the auction date.
GUIDE PRICE
An indication of the seller's current minimum acceptable price at auction. The guide price or range of guide prices is given to assist consumers in deciding whether to pursue a purchase. It is usual, but not always the case, that a provisional reserve range is agreed between the seller and the auctioneer at the start of marketing. As the reserve is not fixed at this stage and can be adjusted by the seller at any time up to the day of the auction in the light of interest shown during the marketing period, a guide price is issued. This guide price can be shown in the form of a minimum and maximum price range within which an acceptable sale price (reserve) would fall, or as a single price figure within 10% of which the minimum acceptable price (reserve) would fall. A guide price is different to a reserve price (see separate definition). Both the guide price and the reserve price can be subject to change up to and including the day of the auction.
RESERVE PRICE
The seller's minimum acceptable price at auction and the figure below which the auctioneer cannot sell. The reserve price is not disclosed and remains confidential between the seller and the auctioneer. Both the guide price and the reserve price can be subject to change up to and including the day of the auction.
PRE AUCTION OFFERS
Some vendors are willing to consider offers prior to the auction.
Pre auction offers can ONLY be submitted by completing the online PRE AUCTION OFFER FORM
The form can be found on the Hollis Morgan website on the individual auction property listing.
Please note offers will not be considered until you have inspected the COMPLETE LEGAL PACK once it has been released.
There will be a note added to the list to confirm AUCTION PACK NOW COMPLETE when our client’s solicitor informs us no further information is due to be added.
In the event of an offer being accepted the property will only be removed from the online auction and viewings stopped once contracts have successfully EXCHANGED subject to the standard auction terms and payment of the buyer’s premium (£1,800 Inclusive of VAT) to Hollis Morgan.
Contracts can be exchanged via the solicitors or at the Hollis Morgan offices by appointment only.
REGISTRATION PROCESS
The registration process is extremely simple – visit the Hollis Morgan auction website and click on the “Register to Bid” button.
The “Register to Bid” button can be found on the auction home page or on the individual lot listings.
Please note this function is not available on Rightmove or Zoopla.
Stage 1 – Complete the Online Bidding Form
Stage 2 – Upload your certified ID
Stage 3 – Invitation to bid
Stage 4 – Pay your security deposit (£6,800)
You are now ready to bid – Good luck!
If your bid is successful, the balance of the deposit monies must be transferred to our client account within 24 hours of the auction sale.
If you are unsuccessful at the auction your holding deposit will be returned within 48 hours.
SURVEYS AND VALUATIONS
If you would like to arrange a survey or mortgage valuation of this Lot BEFORE the auction, please instruct your appointed surveyor to contact Hollis Morgan and we will arrange access for them to inspect the property. Please note that buyers CANNOT attend the surveys and the surveyors are responsible for collecting and returning keys to the Hollis Morgan offices in Clifton.
AUCTION FINANCE & BRIDGING LOANS
Some properties may require specialist auction finance- please contact Hollis Morgan for access to expert advice and whole of market rates from our independent brokers.
Hollis Morgan may receive introductory fees for this service from the broker.
AUCTION BUYER’S GUIDE VIDEO
We have short video guides for both buying and selling by Public Auction on the Hollis Morgan Website. If you have any further questions regarding the process, please don’t hesitate to contact Auction HQ.
2026 CHARITY OF THE YEAR
Hollis Morgan are proud to be supporting Bristol Schools Rugby Union as our 2026 Charity of the Year. BSRU ( working in association with Bristol Bears ) oversee and support rugby in all schools, State and Independent , in the Greater Bristol area. Bristol Schools provide School Rugby Development opportunities and County level fixtures for secondary boys and girls. Including playing fixtures at U18s against the leading Independent Schools in our region, schools such as Clifton College, BGS, QEH, Collegiate and Millfield. For more information and details of the fixture list please follow them on Instagram.
AUCTION PROPERTY DETAILS DISCLAIMER
Hollis Morgan endeavour to make our sales details clear, accurate and reliable in line with the Consumer Protection from Unfair Trading Regulations 2008 but they should not be relied on as statements or representations of fact, and they do not constitute any part of an offer or contract. All Hollis Morgan references to planning, tenants, boundaries, potential development, tenure etc is to be superseded by the information contained in the legal pack. It should not be assumed that this property has all the necessary Planning, Building Regulation, or other consents. Any services, appliances and heating system(s) listed have not been checked or tested. Please note that in some instances the photographs may have been taken using a wide-angle lens. The seller does not make any representation or give any warranty in relation to the property, and we have no authority to do so on behalf of the seller.
Brochures
BUILDING PLOT | KINGSWOOD BrochureBuilding Plot | Kingswood
NEAREST STATIONS
Distances are straight line measurements from the centre of the postcode- Lawrence Hill Station2.8 miles
- Stapleton Road Station2.9 miles
- Keynsham Station3.2 miles
Notes
Disclaimer - Property reference 34515341. The information displayed about this property comprises a property advertisement. Rightmove.co.uk makes no warranty as to the accuracy or completeness of the advertisement or any linked or associated information, and Rightmove has no control over the content. This property advertisement does not constitute property particulars. The information is provided and maintained by Hollis Morgan Auctions Bristol & West Country, Bristol. Please contact the selling agent or developer directly to obtain any information which may be available under the terms of The Energy Performance of Buildings (Certificates and Inspections) (England and Wales) Regulations 2007 or the Home Report if in relation to a residential property in Scotland.
Auction Fees: The purchase of this property may include associated fees not listed here, as it is to be sold via auction. To find out more about the fees associated with this property please call Hollis Morgan Auctions Bristol & West Country, Bristol on 0117 463 0219.
*Guide Price: An indication of a seller's minimum expectation at auction and given as a Guide Price or a range of Guide Prices. This is not necessarily the figure a property will sell for and is subject to change prior to the auction.
Reserve Price: Each auction property will be subject to a Reserve Price below which the property cannot be sold at auction. Normally the Reserve Price will be set within the range of Guide Prices or no more than 10% above a single Guide Price.
Map data ©OpenStreetMap contributors.







