
Turnstone Drive, Lakeside, Doncaster, DN4

- PROPERTY TYPE
Semi-Detached
- BEDROOMS
3
- BATHROOMS
3
- SIZE
Ask agent
Key features
- 3D Virtual Tour Available
- Currently Shared Ownership - Buyers can purchase from 60% up to 100% ownership
- Three Bedroom Semi Detached Family Home
- Three Storeys
- Modern Kitchen Diner
- Ground Floor W/C
- En Suite to Master and a Family Bathroom
- Rear Enclosed Garden
- Driveway for Two Cars to the Rear and EV Charging
- Great Location with Amenities and Transport Links
Description
Situated on the popular Turnstone Drive in Lakeside, Doncaster, this modern three-storey three-bedroom semi-detached home offers stylish and well-planned accommodation ideal for growing families. The ground floor features a welcoming lounge, a modern kitchen diner with space for dining and entertaining, and a convenient downstairs W/C. To the first floor are two well-proportioned bedrooms and a family bathroom, while the top floor is dedicated to the spacious master suite, complete with its own en suite shower room. Externally, the property benefits from a rear enclosed garden, two allocated parking spaces to the rear, and the added advantage of an EV charging point. Located within the sought-after Lakeside development, the home is close to local amenities, shops, leisure facilities and excellent transport links.
Construction Type
Standard (Brick)
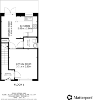
Floor Plan 1
Kitchen Diner
Lounge
W/C
Floor Plan 2
Bedroom 1
Bedroom 2
Family Bathroom
Floor Plan 3
Master Bedroom & En Suite
Front Aspect
Rear Garden
Parking
Property Information
Council Tax Band - C
Utilities - Mains Gas, Mains Electricity, Mains Water
Water Meter - Yes
Tenure - Shared Ownership
Solar Panels - No
Space Heating System - Gas Boiler with radiators
Approximate Heating System Installation Date -
Water Heating System - Gas boiler (Combi)
Approximate Water Heating Installation Date -
Boiler Location - Kitchen cupboard
Approximate Electrical System Installation Date -
Permanent Loft Ladder - No
Loft Insulation - Yes
Loft Boarded out – No
Whilst every effort is made to ensure that the information contained in these particulars is reliable, they do not constitute or form part of an offer or any contract. The Property Hive accept no liability for the accuracy of the contents, and therefore they should be independently verified by prospective buyers or tenants before agreeing an offer. All measurements provided are approximate and should be verified before exchange of con...
Brochures
Brochure 1- COUNCIL TAXA payment made to your local authority in order to pay for local services like schools, libraries, and refuse collection. The amount you pay depends on the value of the property.Read more about council Tax in our glossary page.
- Band: C
- PARKINGDetails of how and where vehicles can be parked, and any associated costs.Read more about parking in our glossary page.
- EV charging,Allocated
- GARDENA property has access to an outdoor space, which could be private or shared.
- Yes
- ACCESSIBILITYHow a property has been adapted to meet the needs of vulnerable or disabled individuals.Read more about accessibility in our glossary page.
- Ask agent
Turnstone Drive, Lakeside, Doncaster, DN4
Add an important place to see how long it'd take to get there from our property listings.
__mins driving to your place
Get an instant, personalised result:
- Show sellers you’re serious
- Secure viewings faster with agents
- No impact on your credit score
Your mortgage
Notes
Staying secure when looking for property
Ensure you're up to date with our latest advice on how to avoid fraud or scams when looking for property online.
Visit our security centre to find out moreDisclaimer - Property reference 30047354. The information displayed about this property comprises a property advertisement. Rightmove.co.uk makes no warranty as to the accuracy or completeness of the advertisement or any linked or associated information, and Rightmove has no control over the content. This property advertisement does not constitute property particulars. The information is provided and maintained by The Property Hive, Bessacarr. Please contact the selling agent or developer directly to obtain any information which may be available under the terms of The Energy Performance of Buildings (Certificates and Inspections) (England and Wales) Regulations 2007 or the Home Report if in relation to a residential property in Scotland.
*This is the average speed from the provider with the fastest broadband package available at this postcode. The average speed displayed is based on the download speeds of at least 50% of customers at peak time (8pm to 10pm). Fibre/cable services at the postcode are subject to availability and may differ between properties within a postcode. Speeds can be affected by a range of technical and environmental factors. The speed at the property may be lower than that listed above. You can check the estimated speed and confirm availability to a property prior to purchasing on the broadband provider's website. Providers may increase charges. The information is provided and maintained by Decision Technologies Limited. **This is indicative only and based on a 2-person household with multiple devices and simultaneous usage. Broadband performance is affected by multiple factors including number of occupants and devices, simultaneous usage, router range etc. For more information speak to your broadband provider.
Map data ©OpenStreetMap contributors.






