The Foundry 22A, Hammerton Street, Burnley, BB11

- PROPERTY TYPE
Apartment
- BEDROOMS
2
- BATHROOMS
1
- SIZE
Ask agent
Key features
- Alarm
- Parking
- Double glazed
- Cable/Satellite
- Broadband/ADSL
- Central heating
Description
Apartment at The Foundry is a beautiful and substantial two bedroomed apartment on the second floor of this renovated Grade II listed building in the centre of Burnley.Benefitting from over £6.4m investment, including £5m of English Heritage Restoration UK and EU Grants, this is a high quality and long lasting home.This individually designed apartment sits on the corner of the building and features a large lounge with feature stonework, large sash windows, fully fitted kitchen with integrated appliances, two double bedrooms, spacious shower room with large walk in shower, central heating and views of mature trees from the main living area.
The second floor is accessible by lift or imposing stone staircase and has just five fully sound proofed apartments making for a tranquil and spacious environment for the ultimate luxury living, this apartment block is full capacity and this apartment is one of its own spec, with a compeltly unique and different layout to all of the other apartments.
The Foundry is an imposing and iconic building in Burnley sitting on the River Calder. Previously a cotton factory, iron foundry and nightclub, the building has a rich history. It is located in the new Heritage Action Zone area which is undergoing multi-million pound investment to create pedestrianised access to shops, bars and restaurants nearby.Just a few minutes walk from the train station and with onsite secure parking, this is a perfect location for easy commuting. ( Investors this apartment would be renting at £925 pcm )
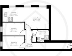
Living Room
14' 4'' x 12' 8'' (4.37m x 3.87m)
Kitchen
12' 10'' x 8' 4'' (3.94m x 2.55m)
Bedroom One
12' 9'' x 7' 8'' (3.89m x 2.36m)
Bedroom Two
12' 8'' x 7' 8'' (3.88m x 2.35m)
Shower Room
10' 3'' x 7' 0'' (3.14m x 2.15m)
- COUNCIL TAXA payment made to your local authority in order to pay for local services like schools, libraries, and refuse collection. The amount you pay depends on the value of the property.Read more about council Tax in our glossary page.
- Ask agent
- PARKINGDetails of how and where vehicles can be parked, and any associated costs.Read more about parking in our glossary page.
- Yes
- GARDENA property has access to an outdoor space, which could be private or shared.
- Ask agent
- ACCESSIBILITYHow a property has been adapted to meet the needs of vulnerable or disabled individuals.Read more about accessibility in our glossary page.
- Ask agent
The Foundry 22A, Hammerton Street, Burnley, BB11
Add an important place to see how long it'd take to get there from our property listings.
__mins driving to your place
Get an instant, personalised result:
- Show sellers you’re serious
- Secure viewings faster with agents
- No impact on your credit score
Your mortgage
Notes
Staying secure when looking for property
Ensure you're up to date with our latest advice on how to avoid fraud or scams when looking for property online.
Visit our security centre to find out moreDisclaimer - Property reference 51491. The information displayed about this property comprises a property advertisement. Rightmove.co.uk makes no warranty as to the accuracy or completeness of the advertisement or any linked or associated information, and Rightmove has no control over the content. This property advertisement does not constitute property particulars. The information is provided and maintained by Visum, Nationwide. Please contact the selling agent or developer directly to obtain any information which may be available under the terms of The Energy Performance of Buildings (Certificates and Inspections) (England and Wales) Regulations 2007 or the Home Report if in relation to a residential property in Scotland.
*This is the average speed from the provider with the fastest broadband package available at this postcode. The average speed displayed is based on the download speeds of at least 50% of customers at peak time (8pm to 10pm). Fibre/cable services at the postcode are subject to availability and may differ between properties within a postcode. Speeds can be affected by a range of technical and environmental factors. The speed at the property may be lower than that listed above. You can check the estimated speed and confirm availability to a property prior to purchasing on the broadband provider's website. Providers may increase charges. The information is provided and maintained by Decision Technologies Limited. **This is indicative only and based on a 2-person household with multiple devices and simultaneous usage. Broadband performance is affected by multiple factors including number of occupants and devices, simultaneous usage, router range etc. For more information speak to your broadband provider.
Map data ©OpenStreetMap contributors.





