Jorvik Close, Acomb, York YO26 5HD

- PROPERTY TYPE
Terraced
- BEDROOMS
2
- BATHROOMS
1
- SIZE
Ask agent
- TENUREDescribes how you own a property. There are different types of tenure - freehold, leasehold, and commonhold.Read more about tenure in our glossary page.
Freehold
Key features
- EXCELLENT TWO BEDROOM MODERN MID TERRACE
- VERY POPULAR ACOMB LOCATION TO THE SOUTH WEST OF YORK
- IMPRESSIVE SPACIOUS LIVING ROOM, WITH BI FOLDING DOORS LEADING OUT TO THE GARDEN
- SUPERB CONTEMPORARY KITCHEN WITH A RANGE OF INTEGRATED APPLIANCES
- PERFECT FOR PROFESSIONAL COUPLES, SINGLES OR THOSE LOOKING TO RETIRE!
- IN THE CATCHMENT OF POPULAR SCHOOLS INCLUDING MANOR C OF E SCHOOL
- GARDEN WITH BOTH A PAVED PATIO AND SUMMER HOUSE, PERFECT FOR OUTSIDE ENTERTAINING
- WALK TO LOCAL SHOPS, SCHOOLS AND BUS STOPS
- EASY ACCESS TO THE YORK CITY CENTRE AND RING ROAD, VIEW ASAP NOT TO MISS OUT!
- EPC RATING D
Description
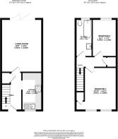
Entrance Hall
Covered porch leading to the front door an outside storage cupboard. Upvc door leading into the property. Stairs to the first floor, under stairs storage and radiator*. Doors leading to...
Kitchen
11' 4'' x 5' 11'' (3.45m x 1.80m)
Fitted with a range of modern wall and floor units with matching work surfaces over, under counter lighting*, drainer sink with mixer tap, electric cooker*, induction hob*, extractor hood*, integral fridge/freezer, washing machine*, down lighting and double glazed windows to the front aspect.
Living Room
16' 5'' x 12' 1'' (5.00m x 3.68m)
Double glazed Bi folding doors to the rear aspect, feature wall with wall mounted television point*, oak flooring, down lighting and upright radiator*.
First Floor Landing
Airing cupboard and loft hatch. Doors leading to...
Bedroom 1
12' 10'' x 12' 1'' (3.91m x 3.68m)
Double glazed windows to the front aspect, alcove cupboard, wall mounted tv point*, down lighting and radiator*.
Bedroom 2
11' 1'' x 7' 2'' (3.38m x 2.18m)
Double glazed windows to rear aspect, wall mounted tv point*, down lighting and radiator*.
Bathroom
11' 1'' x 4' 7'' (3.38m x 1.40m)
Bathroom in white: Suite comprising bath with a mains shower over and mixer tap, wash hand basin with mixer tap, low level wc, double glazed window to rear aspect, down lighting and radiator*.
Outside
To the front of the property there is a paved driveway providing ample off street parking, leading to the house. To the rear of the property, we find a fenced garden, with an astro turf lawn, paved patio area and a fire pit area perfect for outside entertaining, raised flower beds and a summer house.
Agents Note
EPC Rating D. Council tax band B.
Broadband supplier: Vodafone fibre broadband. Broadband speed: 500Mb.
Water supplier: Yorkshire Water.
Gas supplier: British Gas. Hive system.
Electricity supplier: British Gas.
Brochures
Property BrochureFull Details- COUNCIL TAXA payment made to your local authority in order to pay for local services like schools, libraries, and refuse collection. The amount you pay depends on the value of the property.Read more about council Tax in our glossary page.
- Band: B
- PARKINGDetails of how and where vehicles can be parked, and any associated costs.Read more about parking in our glossary page.
- Yes
- GARDENA property has access to an outdoor space, which could be private or shared.
- Yes
- ACCESSIBILITYHow a property has been adapted to meet the needs of vulnerable or disabled individuals.Read more about accessibility in our glossary page.
- Ask agent
Jorvik Close, Acomb, York YO26 5HD
Add an important place to see how long it'd take to get there from our property listings.
__mins driving to your place
Get an instant, personalised result:
- Show sellers you’re serious
- Secure viewings faster with agents
- No impact on your credit score
Your mortgage
Notes
Staying secure when looking for property
Ensure you're up to date with our latest advice on how to avoid fraud or scams when looking for property online.
Visit our security centre to find out moreDisclaimer - Property reference 12826104. The information displayed about this property comprises a property advertisement. Rightmove.co.uk makes no warranty as to the accuracy or completeness of the advertisement or any linked or associated information, and Rightmove has no control over the content. This property advertisement does not constitute property particulars. The information is provided and maintained by Bishops Personal Agents, York. Please contact the selling agent or developer directly to obtain any information which may be available under the terms of The Energy Performance of Buildings (Certificates and Inspections) (England and Wales) Regulations 2007 or the Home Report if in relation to a residential property in Scotland.
*This is the average speed from the provider with the fastest broadband package available at this postcode. The average speed displayed is based on the download speeds of at least 50% of customers at peak time (8pm to 10pm). Fibre/cable services at the postcode are subject to availability and may differ between properties within a postcode. Speeds can be affected by a range of technical and environmental factors. The speed at the property may be lower than that listed above. You can check the estimated speed and confirm availability to a property prior to purchasing on the broadband provider's website. Providers may increase charges. The information is provided and maintained by Decision Technologies Limited. **This is indicative only and based on a 2-person household with multiple devices and simultaneous usage. Broadband performance is affected by multiple factors including number of occupants and devices, simultaneous usage, router range etc. For more information speak to your broadband provider.
Map data ©OpenStreetMap contributors.






