Victoria Street, Clitheroe, BB7

- PROPERTY TYPE
Terraced
- BEDROOMS
2
- BATHROOMS
1
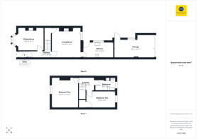
- SIZE
997 sq ft
93 sq m
- TENUREDescribes how you own a property. There are different types of tenure - freehold, leasehold, and commonhold.Read more about tenure in our glossary page.
Freehold
Key features
- Impressive Spacious Garden Fronted Terrace
- Superb Renovated Interior & Exterior
- 2 Double Bedrooms & Modern Family Bathroom
- Private Stone Flagged Rear Patio & Large Garage
- Excellent Favoured Location
- Lounge With Feature Fireplace & Wood Burning Stove
- Dining Room With Bay Window & Bright Kitchen
- Hassle Free Purchase & No Chain
- Walking Distance To Town & Amenities
Description
Externally, the property is set behind an attractive stone flagged forecourt garden, bordered by classic wrought iron railings, offering a pleasant approach.To the rear, a recently laid stone flagged private patio provides an ideal spot for relaxing. The standout feature is the large attached garage, equipped with an up and over door, side personal door, power and lighting, offering secure parking or valuable storage space. This well appointed outside area combines practicality with low maintenance. The property’s excellent location, generous living spaces and quality finishes throughout make it a fantastic opportunity for those seeking a move-in ready home in a sought after area. Early viewing is highly recommended.
EPC Rating: D
Vestibule
Composite double glazed front door.
Hallway
Internal wood glazed door, panel radiator, staircase to first floor with feature archway and coving.
Dining Room
Light and airy room with feature uPVC double glazed bay window, panel radiator, wall light points, coving, feature stone flagged inset fireplace surround with wood beam over.
Lounge
Spacious living room with uPVC double glazed window, panel radiator, attractive feature stone flagged inset fireplace with cast iron multi fuel stove and wood beam over, understairs storage cupboard.
Kitchen
Cream wall and base units with contrasting laminate worktops, sink drainer unit with mixer tap, gas cooker point, plumbing for washing machine, vented for tumble dryer, tiled splashback, wall mounted combination gas central heating boiler, roof access, panel radiator, uPVC double glazed window, karndean tiled flooring, composite double glazed rear door.
Bedroom One
Double bedroom with carpet flooring, uPVC double glazed window, panel radiator.
Bedroom Two
Smaller double room with carpet flooring, uPVC double glazed window, panel radiator, built in storage cupboard also housing loft access.
Bathroom
Modern recently installed 3-pce white suite with panelled bath with mixer tap and electric shower over, vanity sink unit and mixer tap with cupboard under, low-level w.c., fully tiled walls and flooring, uPVC double glazed window, recess spotlighting, chrome ladder style radiator, extractor fan, cupboard housing shelving and hot water cylinder.
Garage
Large attached garage with up and over door, power and lighting, timber framed window, side external wood door.
Garden
Attractive stone flagged front garden forecourt with wrought iron railings. To the rear is a well appointed recently laid stone flagged private rear yard area with boundary wall and rear gate access. A large attached garage is at the rear with up and over door, side personal door, power and lighting within.
Parking - Garage
Disclaimer
Stones Young Sales and Lettings provides these particulars as a general guide and does not guarantee their accuracy. They do not constitute an offer, contract, or warranty. While reasonable efforts have been made to ensure the information is correct, buyers or tenants must independently verify all details through inspections, surveys, and enquiries. Statements are not representations of fact, and no warranties or guarantees are provided by Stones Young, its employees, or agents.
Photographs depict parts of the property as they were when taken and may not reflect current conditions. Measurements, distances, and areas are approximate and should not be relied upon. References to alterations or uses do not confirm that necessary planning, building regulations, or other permissions have been obtained. Any assumptions about the property’s condition or suitability should be independently verified.
Brochures
Property Brochure- COUNCIL TAXA payment made to your local authority in order to pay for local services like schools, libraries, and refuse collection. The amount you pay depends on the value of the property.Read more about council Tax in our glossary page.
- Band: B
- PARKINGDetails of how and where vehicles can be parked, and any associated costs.Read more about parking in our glossary page.
- Garage
- GARDENA property has access to an outdoor space, which could be private or shared.
- Private garden
- ACCESSIBILITYHow a property has been adapted to meet the needs of vulnerable or disabled individuals.Read more about accessibility in our glossary page.
- Ask agent
Victoria Street, Clitheroe, BB7
Add an important place to see how long it'd take to get there from our property listings.
__mins driving to your place
Get an instant, personalised result:
- Show sellers you’re serious
- Secure viewings faster with agents
- No impact on your credit score
Your mortgage
Notes
Staying secure when looking for property
Ensure you're up to date with our latest advice on how to avoid fraud or scams when looking for property online.
Visit our security centre to find out moreDisclaimer - Property reference 092a48d8-79b1-4821-ba29-fc57f5257a07. The information displayed about this property comprises a property advertisement. Rightmove.co.uk makes no warranty as to the accuracy or completeness of the advertisement or any linked or associated information, and Rightmove has no control over the content. This property advertisement does not constitute property particulars. The information is provided and maintained by Stones Young Estate and Letting Agents, Clitheroe. Please contact the selling agent or developer directly to obtain any information which may be available under the terms of The Energy Performance of Buildings (Certificates and Inspections) (England and Wales) Regulations 2007 or the Home Report if in relation to a residential property in Scotland.
*This is the average speed from the provider with the fastest broadband package available at this postcode. The average speed displayed is based on the download speeds of at least 50% of customers at peak time (8pm to 10pm). Fibre/cable services at the postcode are subject to availability and may differ between properties within a postcode. Speeds can be affected by a range of technical and environmental factors. The speed at the property may be lower than that listed above. You can check the estimated speed and confirm availability to a property prior to purchasing on the broadband provider's website. Providers may increase charges. The information is provided and maintained by Decision Technologies Limited. **This is indicative only and based on a 2-person household with multiple devices and simultaneous usage. Broadband performance is affected by multiple factors including number of occupants and devices, simultaneous usage, router range etc. For more information speak to your broadband provider.
Map data ©OpenStreetMap contributors.




