Lea Lane, Cookley, Kidderminster

- PROPERTY TYPE
Semi-Detached
- BEDROOMS
4
- BATHROOMS
2
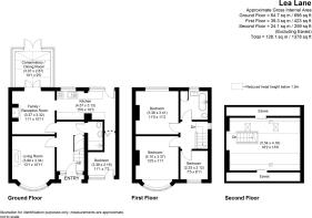
- SIZE
1,378 sq ft
128 sq m
- TENUREDescribes how you own a property. There are different types of tenure - freehold, leasehold, and commonhold.Read more about tenure in our glossary page.
Freehold
Key features
- Four bedroom semi detached home
- Flexible accommodation over three floors
- Generous rear garden with bar
- Private driveway off road parking
- Sought after Cookley village setting
- Loft room with further potential
Description
This characterful four bedroom home offers well balanced accommodation arranged over three floors, combining flexible living space with practical everyday layout. The ground floor includes multiple reception areas that connect naturally through to the kitchen and conservatory, while the first floor provides three bedrooms and a family bathroom. A further loft room adds valuable additional space, with potential to extend over the garage to create additional first floor accommodation and link with the loft room, subject to the necessary planning permissions. Outside, the generous rear garden is arranged into distinct areas including seating, lawn and entertaining spaces, while a private driveway to the front provides off road parking.
- A well proportioned four bedroom home arranged over three floors with adaptable accommodation.
- Flexible living areas including multiple reception spaces and a useful loft room.
- A generous rear garden with defined seating areas, lawn and a covered bar and garden room.
- Private driveway providing off road parking for several vehicles.
- Beautifully situated on a tranquil country lane close to Cookley village centre and surrounding countryside.
The kitchen
The kitchen is arranged in a practical galley layout that makes excellent use of the full length of the room, creating a strong sense of flow between the front and rear of the house. Generous worktop space runs along both sides, supporting everyday cooking as well as larger scale preparation, while a wide range of base and wall units provides extensive storage. The room connects directly through to the dining and conservatory areas, making it well suited to both daily family life and entertaining.
The family room
Positioned between the kitchen and conservatory, the family room provides a comfortable and versatile space that naturally draws people together. Its proportions work well for relaxed seating while still allowing clear access through to the adjoining rooms. A central fireplace creates a clear focal point and adds character to the room, while the direct connection to the conservatory enhances how the space is used throughout the day.
The living room
Located at the front of the house, the living room offers a well proportioned and welcoming space designed for more formal relaxation. A bay window defines the front elevation and gives the room an elegant shape, while the overall layout comfortably accommodates seating arranged around the fireplace. The room feels distinct from the busier areas of the house, providing a calm retreat that works equally well for quiet evenings or hosting guests.
The conservatory
The conservatory sits to the rear of the house and provides an inviting space that works naturally as a dining area with a clear outlook onto the garden. Its footprint comfortably accommodates a table and seating while maintaining a strong connection back through to the family room, allowing the two spaces to function together when entertaining. Double doors open directly outside, reinforcing its role as a flexible room that extends everyday living into the garden during warmer months.
The shower room
The ground floor shower room provides practical facilities that support the flexible layout of the house. Its arrangement allows for straightforward daily use, with a walk in shower, wash basin and WC. This room is particularly useful for guests or for those using the ground floor bedroom, adding to the overall practicality of the accommodation without impacting on the main living areas.
The entrance hall
The entrance hall creates a welcoming first impression and provides a clear sense of arrival into the house. It offers direct access to the principal ground floor rooms and the staircase, making movement through the property straightforward and well organised. Its proportions allow the space to function comfortably as a central hub, linking the more formal living areas with the family spaces to the rear while maintaining a defined separation between them.
The primary bedroom
The primary bedroom is positioned at the front of the house and offers generous proportions that comfortably accommodate a full range of bedroom requirements. A bay window gives the room an elegant shape and increases the sense of space, while built in storage helps keep the room well organised.
The second and third bedrooms
The second and third bedrooms are located on the first floor and offer flexible accommodation to suit a range of needs. The larger of the two works comfortably as a double bedroom, while the third bedroom provides a well balanced single room that could also serve as a home office or nursery.
The fourth bedroom
Located on the ground floor, the fourth bedroom benefits from its own independent access, making it a highly flexible addition to the accommodation. Its proportions suit use as a family bedroom, guest room or dedicated workspace. This room works particularly well for those seeking ground floor living options or a more private arrangement within the home.
The bathroom
The main bathroom is located on the first floor and features a full size bath, a wash basin and WC, creating a practical layout that serves the first floor bedrooms with ease. Built-in storage enhances its practicality and a window provides ample light and ventilation.
The loft room
The loft room provides a valuable additional space that broadens the overall flexibility of the house. Accessed from the first floor, it offers a generous open area that can adapt to a variety of uses depending on individual needs. Its separation from the main living and sleeping accommodation makes it well suited to activities that benefit from privacy while still feeling connected to the rest of the property.
The rear garden
The rear garden extends to a generous length and has been thoughtfully arranged to create a series of defined outdoor spaces that suit both everyday use and social occasions. A paved terrace sits immediately behind the house, providing a natural place for outdoor dining and seating, with steps leading up to a central lawn that forms the main body of the garden.
Mature planting, established borders and fencing combine to create a sense of privacy and enclosure, while a covered bar area introduces a distinctive entertaining space, complemented by a garden room at the far end that offers further flexibility for hobbies, storage or retreat, ensuring the garden works as an extension of the living accommodation throughout the seasons.
The driveway and parking
To the front of the property there is a private driveway providing off road parking for several vehicles, creating a practical and highly desirable feature for a home in this location. The driveway sits comfortably in front of the house without dominating the frontage, with planting and boundary details softening the approach and giving a clear sense of separation from the road.
The property is beautifully situated on a tranquil country lane just yards away from the village centre and wonderful neighbouring countryside which surrounds Cookley on all sides. The property enjoys lovely rural views from the upper floors looking out towards Wolverley and Shatterford.
Cookley is a thriving village with a real sense of community and represents an extremely sought-after place to live. For a relatively small village there are a surprising number of amenities on offer here, including three pubs, a Tesco Express and village stores, a tearoom and a primary school conveniently placed further along Lea Lane. There is also a fabulous village hall and playing fields which has so much to offer the local community, with many events held here throughout the year and lots of facilities including a BMX track, a skateboard park, a children's play area and a community garden.
The village is a fantastic place for those who love the countryside and outdoors, with wonderful beauty spots close by including the renowned Kinver Edge. The Staffordshire Worcestershire Canal also runs through the heart of the village and provides lovely waterside walks to nearby Wolverley and Kinver.
A unique aspect of Cookley is how well positioned it is for accessing nearby towns, with both Kidderminster and Stourbridge nearby providing a wealth of shops and amenities between them.
The property benefits from mains gas, electricity, water and drainage.
Broadband: Ultrafast broadband available. Download speeds up to 2300 Mbps and upload speeds up to 2300 Mbps (source: Ofcom checker).
Mobile coverage likely available from EE, Vodafone, Three and O2 (source: Ofcom).
Flood Risk (Long-term forecast)
According to the Environment Agency’s long-term flood risk data, the property is currently at very low risk for river and surface water flooding.
Council tax band C
Reservation Fee - refundable on exchange
A reservation fee, refundable on exchange, is payable prior to the issue of the Memorandum of Sale and after which the property may be marked as Sold Subject to Contract. The fee will be reimbursed upon the successful Exchange of Contracts.
The fee will be retained by Andrew Grant in the event that you the Buyer withdraws from the purchase or does not Exchange within 6 months of the fee being received other than for one or more of the following reasons:
1. Any significant material issues which individually are more than 1% of the agreed purchase price and are highlighted in a survey and were not evident or drawn to the attention of you, the Buyer, prior to the Memorandum of Sale being issued.
2. Serious and material defect in the seller’s legal title.
3. Local search revealing a matter that has a material adverse effect on the market value of the property that was previously undeclared and not in the public domain.
4. The vendor withdrawing the property from sale.
The reservation fee will be 0.5% of the accepted offer price for offers below £800,000 and 1% for offers of £800,000 or over. This fee, unless specified otherwise, is payable upon acceptance by the vendor of an offer from a buyer and completion of an assessment of the buyer’s financial status and ability to proceed.
Should a buyer’s financial position regarding the funding of the property prove to be fundamentally different from that declared by the buyer when the Memorandum of Sale was completed, then the Vendor has the right to withdraw from the sale and/or the reservation fee retained. For example, where the buyer declares themselves as a cash buyer but are in fact relying on an unsecured sale of their property. The reservation fee will not be refunded where there is an inability on the part of the Buyer to raise any required mortgage after the Memorandum of Sale is completed.
Once the reservation fee has been paid, any renegotiation of the price stated in the memorandum of sale for any reason other than those covered in points 1 to 3 above will lead to the reservation fee being retained. A further fee will be levied on any subsequent reduced offer that is accepted by the vendor. This further fee will be subject to the same conditions that prevail for all reservation fees outlined above.
Brochures
Brochure 1- COUNCIL TAXA payment made to your local authority in order to pay for local services like schools, libraries, and refuse collection. The amount you pay depends on the value of the property.Read more about council Tax in our glossary page.
- Ask agent
- PARKINGDetails of how and where vehicles can be parked, and any associated costs.Read more about parking in our glossary page.
- Off street
- GARDENA property has access to an outdoor space, which could be private or shared.
- Private garden,Patio
- ACCESSIBILITYHow a property has been adapted to meet the needs of vulnerable or disabled individuals.Read more about accessibility in our glossary page.
- Ask agent
Lea Lane, Cookley, Kidderminster
Add an important place to see how long it'd take to get there from our property listings.
__mins driving to your place
Get an instant, personalised result:
- Show sellers you’re serious
- Secure viewings faster with agents
- No impact on your credit score
Affordability
Notes
Staying secure when looking for property
Ensure you're up to date with our latest advice on how to avoid fraud or scams when looking for property online.
Visit our security centre to find out moreDisclaimer - Property reference JHE250395. The information displayed about this property comprises a property advertisement. Rightmove.co.uk makes no warranty as to the accuracy or completeness of the advertisement or any linked or associated information, and Rightmove has no control over the content. This property advertisement does not constitute property particulars. The information is provided and maintained by Andrew Grant, Covering the West Midlands. Please contact the selling agent or developer directly to obtain any information which may be available under the terms of The Energy Performance of Buildings (Certificates and Inspections) (England and Wales) Regulations 2007 or the Home Report if in relation to a residential property in Scotland.
*This is the average speed from the provider with the fastest broadband package available at this postcode. The average speed displayed is based on the download speeds of at least 50% of customers at peak time (8pm to 10pm). Fibre/cable services at the postcode are subject to availability and may differ between properties within a postcode. Speeds can be affected by a range of technical and environmental factors. The speed at the property may be lower than that listed above. You can check the estimated speed and confirm availability to a property prior to purchasing on the broadband provider's website. Providers may increase charges. The information is provided and maintained by Decision Technologies Limited. **This is indicative only and based on a 2-person household with multiple devices and simultaneous usage. Broadband performance is affected by multiple factors including number of occupants and devices, simultaneous usage, router range etc. For more information speak to your broadband provider.
Map data ©OpenStreetMap contributors.




