
Epsom Avenue, Towcester, Northamptonshire, NN12 7LD

- PROPERTY TYPE
Detached
- BEDROOMS
3
- SIZE
Ask developer
- TENUREDescribes how you own a property. There are different types of tenure - freehold, leasehold, and commonhold.Read more about tenure in our glossary page.
Freehold
Key features
- Triple aspect living room with garden access
- Downstairs storage to the hall
- Utility room with garden access
- Triple aspect kitchen/dining room and family room with garden access
- Bedroom 1 with en suite
- Family bathroom with modern fixtures and fittings
Description
The Hartwell is a cheerful three-bedroom, two-bathroom home that will suit a young family. A lovely family room/dining/kitchen area enjoys French doors to the garden. The separate living room also has French doors to the garden, and there's a utility room – with outside access – as well as a downstairs WC. Up on the first floor, the master bedroom is en-suite and the other two bedrooms have use of the family bathroom. Built-in storage on the landing is a real plus.
Additional Information
- Tenure: Freehold
- Council tax band: Not made available by local authority until post-occupation
Parking - Single Garage
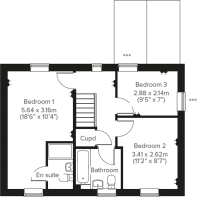
Room Dimensions
- Living room - 3.12 x 5.64 metre
- Kitchen/Dining room - 2.86 x 5.64 metre
- Bedroom One - 3.16 x 5.64 metre
- Bedroom Two - 2.62 x 3.41 metre
- Bedroom Three - 2.88 x 2.14 metre
- COUNCIL TAXA payment made to your local authority in order to pay for local services like schools, libraries, and refuse collection. The amount you pay depends on the value of the property.Read more about council Tax in our glossary page.
- Ask developer
- PARKINGDetails of how and where vehicles can be parked, and any associated costs.Read more about parking in our glossary page.
- Yes
- GARDENA property has access to an outdoor space, which could be private or shared.
- Yes
- ACCESSIBILITYHow a property has been adapted to meet the needs of vulnerable or disabled individuals.Read more about accessibility in our glossary page.
- Ask developer
Energy performance certificate - ask developer
- Choice of 2, 3, 4 and 5 bedroom homes<
- An abundance of green spaces close by
- Close to the vibrant market town of Towcester
- Excellent transport links<
Epsom Avenue, Towcester, Northamptonshire, NN12 7LD
Add an important place to see how long it'd take to get there from our property listings.
__mins driving to your place
Get an instant, personalised result:
- Show sellers you’re serious
- Secure viewings faster with agents
- No impact on your credit score
About the development
About Persimmon Homes
Discover The Furlongs, where you can explore a choice of energy-efficient one, two, three and four-bedroom new homes in Towcester, a popular market town near the county town of Northampton. With EV charging, solar panels and waste water heat recovery included, these sustainable homes are designed to save you money – so you have more freedom to enjoy Northamptonshire.
A family-friendly location
Every home at The Furlongs offers integrated green open spaces, play areas and tree-lined streets, making it a welcoming place to put down roots. Living here means you get the best of both worlds – good local amenities on your doorstep, nearby country villages and great road and rail links when you need to travel.
Things to do in Towcester
Towcester is known for its friendly atmosphere and historic charm. You’ll find everything you need day-to-day with Waitrose, Tesco and Aldi all in town, plus Towcester Leisure Centre for fitness and family activities.
There are beautiful country walks nearby, as well as local highlights like Towcester Racecourse and Easton Neston Park. For outdoor adventures, Salcey Forest is just a short drive away, and motorsport fans will love being only 5 miles from Silverstone Circuit.
Easy travel
With the A43 bypass linking directly to both the M40 and the M1, commuting is simple whether you’re heading to London, Birmingham or other key cities. Milton Keynes and Northampton train stations are close by for smooth rail travel. Plus, the new Towcester bypass, currently under construction, will make journeys even easier.
This development offers the following schemes:
- New Build Boost
- Deposit Boost: 5% Deposit Contribution Scheme
- Part Exchange your home
- Own New Rate Reducer Scheme
- Home Change
- Armed Forces, Key Workers & NHS Discount Scheme
- Bank of Mum and Dad
- Early Bird Scheme
Schemes are available on selected plots only, subject to status, terms and conditions apply. Contact the development for latest information.
Affordability
Notes
Staying secure when looking for property
Ensure you're up to date with our latest advice on how to avoid fraud or scams when looking for property online.
Visit our security centre to find out moreDisclaimer - Property reference 3_1107. The information displayed about this property comprises a property advertisement. Rightmove.co.uk makes no warranty as to the accuracy or completeness of the advertisement or any linked or associated information, and Rightmove has no control over the content. This property advertisement does not constitute property particulars. The information is provided and maintained by Persimmon Homes. Please contact the selling agent or developer directly to obtain any information which may be available under the terms of The Energy Performance of Buildings (Certificates and Inspections) (England and Wales) Regulations 2007 or the Home Report if in relation to a residential property in Scotland.
*This is the average speed from the provider with the fastest broadband package available at this postcode. The average speed displayed is based on the download speeds of at least 50% of customers at peak time (8pm to 10pm). Fibre/cable services at the postcode are subject to availability and may differ between properties within a postcode. Speeds can be affected by a range of technical and environmental factors. The speed at the property may be lower than that listed above. You can check the estimated speed and confirm availability to a property prior to purchasing on the broadband provider's website. Providers may increase charges. The information is provided and maintained by Decision Technologies Limited. **This is indicative only and based on a 2-person household with multiple devices and simultaneous usage. Broadband performance is affected by multiple factors including number of occupants and devices, simultaneous usage, router range etc. For more information speak to your broadband provider.
Map data ©OpenStreetMap contributors.






