32 Bayview Close, Kilcoole, Co Wicklow, A63 EW94, Ireland
- PROPERTY TYPE
Semi-Detached
- BEDROOMS
3
- SIZE
Ask agent
Key features
- Well-appointed three-bedroom semi-detached home
- Ideally positioned in a quiet cul-de-sac overlooking a communal green with glimpses out to sea
- Rear extension offering versatile accommodation
- Spacious side passage
- Block-built storage shed
- Off-street parking
- OFCH
Description
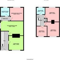
The well-proportioned accommodation briefly comprises a welcoming entrance hallway, which leads to a bright living room overlooking a communal green through a picture window. Towards the rear of the house is the kitchen / dining room, which is fitted with a range of eye and floor level kitchen cabinetry. The ground floor extension incorporates a fully tiled WC and a second reception room which could serve as a playroom / home office, while also offering excellent potential for single storey living or a fourth bedroom if required. Upstairs comprises a spacious double bedroom to the rear of the home, as well as an additional double room and single room to the front, which both enjoy views overlooking the communal green and glimpses out to sea and Wicklow Town. A family bathroom completes the first-floor accommodation. Outside, the rear garden is bordered by a concrete wall with a spacious side passage. Laid mainly in lawn, there is access to a block-built storage shed which offers another opportunity to further enhance into a potential home office space if desired by hybrid workers.
Bayview Close is mature residential development just off Lott Lane in Kilcoole, within walking distance of local shops, cafés, primary & secondary schools, sporting facilities, and most importantly, the rail platform and beach. The neighbouring town of Greystones offers an array of restaurants, a marina, and extensive leisure & sporting facilities. Outdoor enthusiasts will appreciate nearby coastal walks, golf clubs, GAA, rugby and tennis clubs, as well as the Shoreline Leisure Centre and swimming pool. The N11/M50 is easily accessible, while excellent public transport links including regular bus services and the DART from Greystones.
Early viewing is advised to avail of this excellent opportunity to purchase a family home in Kilcoole.
32 Bayview Close, Kilcoole, Co Wicklow, A63 EW94, Ireland
NEAREST AIRPORTS
Distances are straight line measurements- Dublin(International)23.5 miles
- Waterford(International)77.6 miles
Advice on buying Irish property
Learn everything you need to know to successfully find and buy a property in Ireland.
Notes
This is a property advertisement provided and maintained by Sherry FitzGerald, Greystones (reference 127060_GRY250223) and does not constitute property particulars. Whilst we require advertisers to act with best practice and provide accurate information, we can only publish advertisements in good faith and have not verified any claims or statements or inspected any of the properties, locations or opportunities promoted. Rightmove does not own or control and is not responsible for the properties, opportunities, website content, products or services provided or promoted by third parties and makes no warranties or representations as to the accuracy, completeness, legality, performance or suitability of any of the foregoing. We therefore accept no liability arising from any reliance made by any reader or person to whom this information is made available to. You must perform your own research and seek independent professional advice before making any decision to purchase or invest in overseas property.





