Heathwood Road, Weymouth

- PROPERTY TYPE
House
- BEDROOMS
3
- BATHROOMS
2
- SIZE
Ask agent
- TENUREDescribes how you own a property. There are different types of tenure - freehold, leasehold, and commonhold.Read more about tenure in our glossary page.
Freehold
Key features
- Extended Detached Family Home
- Immaculately Presented Throughout
- Three Well Proportioned Bedrooms plus Loft Room
- Front Aspect Lounge
- Stunning Kitchen / Dining Room with Separate Utility Room
- Ground Floor Shower Room & First Floor Bathroom
- Spacious Conservatory
- Double Glazing & Gas Central Heating
- Front Driveway & Landscaped Rear Garden
- Sought After Residential Area
Description
On the ground floor an entrance porch, with space for outdoor garments, leads through to an inviting hallway with doors to the lounge, kitchen / diner and understairs cupboard with stairs ascending to the first floor. The front aspect lounge boasts a feature TV / fireplace with a large bay window offering excellent natural light. The heart of this fabulous home is the kitchen / diner, which spans the whole width of the property. Contemporary kitchen units with integral appliances including gas hob, double oven, fridge freezer and dishwasher are topped with quartz worktops. A bespoke dining table provides additional storage and continues the sleek presentation. A large conservatory provides a secondary reception room whilst providing French doors leading to the rear garden. The separate utility room and ground floor shower room are accessed from here.
On the first floor, the landing area has stairs leading to the second floor loft and hosts doors to the three well proportioned bedrooms, with bedrooms one and three situated to the front and bedroom two (currently utilised as a large dressing room) at the rear. The family bathroom is ultra modern in design with an elegant freestanding bath, vanity wash hand basin and WC, complementary tiling to the walls and floor and a heated towel rail. Completing the internal accommodation is the loft room on the second floor, which is used as a bedroom by the current owners with access to plentiful eaves storage. A Velux window gives natural light.
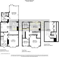
Ground Floor -
Entrance Porch -
Entrance Hallway -
Lounge - 11' max x 12'4" max -
Kitchen / Diner - 18'3" max x 12'10" max -
Conservatory - 9'8" x 16'1" -
Utility Room - 6'6" x 5'5" -
Shower Room - 6'6" x 2'10" -
First Floor -
First Floor Landing -
Bedroom One - 11'4" max x 12'11" max -
Bedroom Two - 10'11" x 9'10" -
Bedroom Three - 6'8" x 7'9" -
Bathroom - 7'1" x 6'4" -
Second Floor -
Loft Room - 9'7" max x 20'4" max some head restriction -
Outside -
Front Driveway -
Rear Garden -
Externally, to the front is a block paved driveway, suitable for off road parking for multiple vehicles. To the rear, the fully enclosed garden is easy to maintain, being predominately laid to lawn with patio areas adjacent to the property and at the end of the garden, perfect for alfresco entertaining, or simply to enjoy the garden at different times of the day.
Heathwood Road is located just off Goldcroft Road, a highly sought after residential area of Westham. It is a short drive to local shops and amenities as well as the Inner Harbour and Radipole Lake. The relief road is also within easy reach allowing access to Dorchester and surrounding areas.
We strongly believe a viewing is essential to fully appreciate all of the accommodation on offer in this stunning home. For further information, please contact Austin Estate Agents.
Brochures
Heathwood Road, Weymouth- COUNCIL TAXA payment made to your local authority in order to pay for local services like schools, libraries, and refuse collection. The amount you pay depends on the value of the property.Read more about council Tax in our glossary page.
- Band: D
- PARKINGDetails of how and where vehicles can be parked, and any associated costs.Read more about parking in our glossary page.
- Yes
- GARDENA property has access to an outdoor space, which could be private or shared.
- Yes
- ACCESSIBILITYHow a property has been adapted to meet the needs of vulnerable or disabled individuals.Read more about accessibility in our glossary page.
- Ask agent
Energy performance certificate - ask agent
Heathwood Road, Weymouth
Add an important place to see how long it'd take to get there from our property listings.
__mins driving to your place
Get an instant, personalised result:
- Show sellers you’re serious
- Secure viewings faster with agents
- No impact on your credit score
Your mortgage
Notes
Staying secure when looking for property
Ensure you're up to date with our latest advice on how to avoid fraud or scams when looking for property online.
Visit our security centre to find out moreDisclaimer - Property reference 34526405. The information displayed about this property comprises a property advertisement. Rightmove.co.uk makes no warranty as to the accuracy or completeness of the advertisement or any linked or associated information, and Rightmove has no control over the content. This property advertisement does not constitute property particulars. The information is provided and maintained by Austin Estate Agents, Weymouth. Please contact the selling agent or developer directly to obtain any information which may be available under the terms of The Energy Performance of Buildings (Certificates and Inspections) (England and Wales) Regulations 2007 or the Home Report if in relation to a residential property in Scotland.
*This is the average speed from the provider with the fastest broadband package available at this postcode. The average speed displayed is based on the download speeds of at least 50% of customers at peak time (8pm to 10pm). Fibre/cable services at the postcode are subject to availability and may differ between properties within a postcode. Speeds can be affected by a range of technical and environmental factors. The speed at the property may be lower than that listed above. You can check the estimated speed and confirm availability to a property prior to purchasing on the broadband provider's website. Providers may increase charges. The information is provided and maintained by Decision Technologies Limited. **This is indicative only and based on a 2-person household with multiple devices and simultaneous usage. Broadband performance is affected by multiple factors including number of occupants and devices, simultaneous usage, router range etc. For more information speak to your broadband provider.
Map data ©OpenStreetMap contributors.




