
St. Cloud Way, Maidenhead, Berkshire, SL6

- PROPERTY TYPE
Flat
- BEDROOMS
1
- BATHROOMS
1
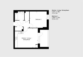
- SIZE
538 sq ft
50 sq m
Description
This spacious apartment features an open-plan kitchen / living / dining room with a door out to your balcony. The kitchen is fitted with an oven, hob and integrated fridge freezer.
The bedroom is a comfortable double with a fitted wardrobe and the bathroom has a modern, white suite.
Specification:
• Luxury vinyl tiles in White Ash to hall, kitchen and bathroom
• Grey carpets to bedroom
• Fitted wardrobe to bedroom
• Ample double power sockets with USB points throughout
• Space and plumbing for washing machine in utility cupboard
• Fitted Symphony kitchen featuring grey soft-close doors and drawers with white units
• Heated chrome towel rail to bathroom
Discover the best of town, enjoy a swim or workout at Braywick Leisure Centre, grab a bite at The Maiden’s Head, or browse shops at Nicholsons Shopping Centre. If you fancy something different, Windsor is just 15 minutes by car for a day of culture and history.
For younger children, Riverside Primary and St Luke’s C of E are within easy reach of our new build flats in Maidenhead. Older students have plenty of nearby options too, including Desborough College and Furze Platt Senior. Buckinghamshire New University is also close by for higher education.
Enjoy effortless travel from these stunning new flats in Maidenhead. A 5-minute walk takes you to the nearest bus stop, while nearby
Maidenhead station and the Elizabeth Line offer trains to London in just 25 minutes. Driving? The M4 is close by, and you can reach Heathrow Airport in a speedy 18 minutes.
Full Market Value: £287,500
50% Share Price: £143,750
Minimum deposit based on 50% share: £7,187.50
Rent on un-owned share £329.43 PCM
Monthly service charge: £122.59
Reservation fee: £500
The Shared Ownership scheme is a Part Buy, Part Rent way of owning your own home for a smaller upfront payment. With Shared Ownership, you buy a share of your home using a mortgage from a bank or building society and pay a subsidised rent on the share you did not purchase. The combined mortgage and rent is usually less than you’d expect to pay if you bought a similar property outright. When you’re ready, you can buy more shares until you staircase to owning 100% of your home.
Please note, as a Shared Ownership purchase there are likely to be additional legal fees during the conveyancing process, your solicitor can advise you of these.
*These photos are for information purposes only and may not represent a true likeness for the units being sold. They may have been digitally furnished to represent how the home could be laid out; the final colours/appearance/specification may differ from the images and are not plot specific.
**Council tax and EPC band: New build properties, band to be determined.
***Service charge is reviewed once a year.
Physical characteristics:
• Traditional build
• Fibre to premises
• Mains gas and electricity
• Mains water and sewerage
- COUNCIL TAXA payment made to your local authority in order to pay for local services like schools, libraries, and refuse collection. The amount you pay depends on the value of the property.Read more about council Tax in our glossary page.
- Band: TBC
- PARKINGDetails of how and where vehicles can be parked, and any associated costs.Read more about parking in our glossary page.
- Ask agent
- GARDENA property has access to an outdoor space, which could be private or shared.
- Ask agent
- ACCESSIBILITYHow a property has been adapted to meet the needs of vulnerable or disabled individuals.Read more about accessibility in our glossary page.
- Ask agent
Energy performance certificate - ask agent
St. Cloud Way, Maidenhead, Berkshire, SL6
Add an important place to see how long it'd take to get there from our property listings.
__mins driving to your place
Get an instant, personalised result:
- Show sellers you’re serious
- Secure viewings faster with agents
- No impact on your credit score
Affordability
Notes
Staying secure when looking for property
Ensure you're up to date with our latest advice on how to avoid fraud or scams when looking for property online.
Visit our security centre to find out moreDisclaimer - Property reference WEA260053. The information displayed about this property comprises a property advertisement. Rightmove.co.uk makes no warranty as to the accuracy or completeness of the advertisement or any linked or associated information, and Rightmove has no control over the content. This property advertisement does not constitute property particulars. The information is provided and maintained by Gascoigne Pees, Maidenhead. Please contact the selling agent or developer directly to obtain any information which may be available under the terms of The Energy Performance of Buildings (Certificates and Inspections) (England and Wales) Regulations 2007 or the Home Report if in relation to a residential property in Scotland.
*This is the average speed from the provider with the fastest broadband package available at this postcode. The average speed displayed is based on the download speeds of at least 50% of customers at peak time (8pm to 10pm). Fibre/cable services at the postcode are subject to availability and may differ between properties within a postcode. Speeds can be affected by a range of technical and environmental factors. The speed at the property may be lower than that listed above. You can check the estimated speed and confirm availability to a property prior to purchasing on the broadband provider's website. Providers may increase charges. The information is provided and maintained by Decision Technologies Limited. **This is indicative only and based on a 2-person household with multiple devices and simultaneous usage. Broadband performance is affected by multiple factors including number of occupants and devices, simultaneous usage, router range etc. For more information speak to your broadband provider.
Map data ©OpenStreetMap contributors.





