
Admaston Road, Plumstead

- PROPERTY TYPE
Terraced
- BEDROOMS
3
- BATHROOMS
2
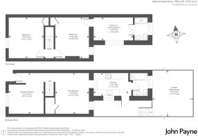
- SIZE
892 sq ft
83 sq m
- TENUREDescribes how you own a property. There are different types of tenure - freehold, leasehold, and commonhold.Read more about tenure in our glossary page.
Freehold
Key features
- Two/Three Bedrooms
- Two Reception Rooms
- Ground Floor Bathroom
- Modern Fitted Kitchen
- First Floor Shower Room
- Beautifully Presented
- Period Home
- Convenient Location
Description
Offered to the market is this stunning two/three bedroom, two bathroom period home located just off Plumstead Common. Convenient for local shops, schools, bus routes and access into Woolwich for the mainline station, DLR and Elizabeth Line.
On entering the property you are welcomed to the front reception room with double glazed sash windows to the front with wood shutters and parquet flooring. To the rear of the property you will find the second reception room with understairs storage cupboard, built in storage, double glazed window to the rear, parquet flooring and access to the kitchen via a square arch. The kitchen is fitted with a range of wall and base units with complimentary work surfaces, integrated oven, hob and filter hood. space for further appliances. There is also a door to the rear garden. The ground floor bathroom is fitted with a white three piece suite comprising a low level WC, wash hand basin and panelled bath.
To the first floor you will find the three bedrooms plus shower room. Bedroom two, at the front, is 12ft x 10ft with stripped and varnished floorboards, double glazed sash windows to the front with wooden shutters and built in storage. Bedroom one, 12ft x 10ft, has stripped and painted floorboards, double glazed window to the rear and provides access to bedroom three/dressing room. This room is 12ft x 7ft, with double glazed window to the side, parquet flooring and a door to an en-suite shower room. Fitted with a three piece suite comprising a low level WC, wash hand basin and walk in shower cubicle.
Externally there is a private low maintenance rear garden.
This stunning home is conveniently located for local shops, schools, bus routes, Parkland and train stations. Internal viewings are highly recommended.
Tenure Freehold
Local Authority Greenwich Tax Band C
Energy Efficiency Rating D
- COUNCIL TAXA payment made to your local authority in order to pay for local services like schools, libraries, and refuse collection. The amount you pay depends on the value of the property.Read more about council Tax in our glossary page.
- Band: C
- PARKINGDetails of how and where vehicles can be parked, and any associated costs.Read more about parking in our glossary page.
- Ask agent
- GARDENA property has access to an outdoor space, which could be private or shared.
- Yes
- ACCESSIBILITYHow a property has been adapted to meet the needs of vulnerable or disabled individuals.Read more about accessibility in our glossary page.
- Ask agent
Admaston Road, Plumstead
Add an important place to see how long it'd take to get there from our property listings.
__mins driving to your place
Get an instant, personalised result:
- Show sellers you’re serious
- Secure viewings faster with agents
- No impact on your credit score
Your mortgage
Notes
Staying secure when looking for property
Ensure you're up to date with our latest advice on how to avoid fraud or scams when looking for property online.
Visit our security centre to find out moreDisclaimer - Property reference PLU250127. The information displayed about this property comprises a property advertisement. Rightmove.co.uk makes no warranty as to the accuracy or completeness of the advertisement or any linked or associated information, and Rightmove has no control over the content. This property advertisement does not constitute property particulars. The information is provided and maintained by John Payne, Plumstead Common. Please contact the selling agent or developer directly to obtain any information which may be available under the terms of The Energy Performance of Buildings (Certificates and Inspections) (England and Wales) Regulations 2007 or the Home Report if in relation to a residential property in Scotland.
*This is the average speed from the provider with the fastest broadband package available at this postcode. The average speed displayed is based on the download speeds of at least 50% of customers at peak time (8pm to 10pm). Fibre/cable services at the postcode are subject to availability and may differ between properties within a postcode. Speeds can be affected by a range of technical and environmental factors. The speed at the property may be lower than that listed above. You can check the estimated speed and confirm availability to a property prior to purchasing on the broadband provider's website. Providers may increase charges. The information is provided and maintained by Decision Technologies Limited. **This is indicative only and based on a 2-person household with multiple devices and simultaneous usage. Broadband performance is affected by multiple factors including number of occupants and devices, simultaneous usage, router range etc. For more information speak to your broadband provider.
Map data ©OpenStreetMap contributors.





