Holywell Drive, Trinity Green, Warrington, WA1

- PROPERTY TYPE
Semi-Detached
- BEDROOMS
4
- BATHROOMS
3
- SIZE
Ask agent
Key features
- No Chain
- Master Bedroom With En-Suite
- Living Room With Juliet Balcony
- Close To Local Amenities
- Driveway
- Quiet & Popular Development
- Downstairs WC
- Back Garden With Decked Area
Description
Belvoir Warrington is delighted to present this well-appointed four-bedroom semi-detached home to the sales market, offered with the added advantage of no onward chain.
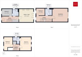
The thoughtfully designed ground floor features a bedroom to the left-hand side, with access to a convenient downstairs shower room. This area can be closed off, making it ideal for guests or multi-generational living. The ground floor also offers a spacious kitchen/diner, perfect for family gatherings and entertaining, with direct access to the rear garden.
On the first floor, the property boasts a generous living area with a Juliet balcony overlooking the bowling green, creating a bright and relaxing space. This level also includes a separate bedroom and a modern four-piece family bathroom suite.
The second floor comprises two well-proportioned double bedrooms, with the master bedroom benefiting from its own en-suite shower room.
Externally, the property enjoys a private rear garden with a decked area—ideal for enjoying a morning coffee or relaxing outdoors. To the front, there is a driveway along with established shrubs providing additional kerb appeal.
Ideally situated in a highly sought-after and quiet residential area, the property benefits from close proximity to Warrington town centre, as well as excellent local amenities and transport links.
This is more than just a house – it’s a place to call home. Early viewing is highly recommended to fully appreciate what this property has to offer.
EPC - ORDERED JUST AWAITING UPDATED VERSION
Council Tax Band D
All room sizes to be used as a guide only.
Hallway
1.95m x 5.20m
Bedroom 3
2.18m x 3.19m
En/Suite / Downstairs Shower Room
5.38m x 3.23m
Kitchen /Diner
4.22m x 4.40m
Landing
1.96m x 4.84m
Lounge
4.23m x 4.73m
Master Bathroom
2.14m x 2.07m
Bedroom 4
2.16m x 2.66m
Landing
1.95m x 2.07m
Bedroom 1
4.24m x 3.52m
En-Suite
1.25m x 2.09m
Bedroom 2
3.16m 2.67m
Tenure: We believe this property to be Freehold.
Belvoir and our partners provide a range of services to buyers, although you are free to use an alternative provider. For more information simply speak to someone in our branch today. We can refer you on to a Mortgage advisor for help with finance. If you require a solicitor to handle your purchase, we can refer you on to "Frodshams" and “Tickle Hall Cross” solicitors.
We may receive commission on referrals.
Disclaimer
Belvoir Sales and Letting Agent Warrington have not tested any apparatus, equipment, fixtures and fittings or services and cannot verify that they are in working order or fit for purpose. A buyer is advised to obtain verification from their solicitor or surveyor. References to the tenure of a property and guarantees are based on information supplied by the seller. Belvoir Sales and Letting Agent Warrington have not had sight of the title documents or guarantees relating to the property advertised. A buyer is advised to obtain verification from their solicitor. Items shown in photographs are NOT included unless specifically mentioned within the sales particulars. They may however be available by separate negotiation.
Tenure: Leasehold, Service charge description: Casserly Estates, Length of lease (remaining): 777 years 9 months,- COUNCIL TAXA payment made to your local authority in order to pay for local services like schools, libraries, and refuse collection. The amount you pay depends on the value of the property.Read more about council Tax in our glossary page.
- Band: D
- PARKINGDetails of how and where vehicles can be parked, and any associated costs.Read more about parking in our glossary page.
- Driveway
- GARDENA property has access to an outdoor space, which could be private or shared.
- Private garden
- ACCESSIBILITYHow a property has been adapted to meet the needs of vulnerable or disabled individuals.Read more about accessibility in our glossary page.
- Ask agent
Energy performance certificate - ask agent
Holywell Drive, Trinity Green, Warrington, WA1
Add an important place to see how long it'd take to get there from our property listings.
__mins driving to your place
Get an instant, personalised result:
- Show sellers you’re serious
- Secure viewings faster with agents
- No impact on your credit score
Your mortgage
Notes
Staying secure when looking for property
Ensure you're up to date with our latest advice on how to avoid fraud or scams when looking for property online.
Visit our security centre to find out moreDisclaimer - Property reference P3286. The information displayed about this property comprises a property advertisement. Rightmove.co.uk makes no warranty as to the accuracy or completeness of the advertisement or any linked or associated information, and Rightmove has no control over the content. This property advertisement does not constitute property particulars. The information is provided and maintained by Belvoir, Warrington. Please contact the selling agent or developer directly to obtain any information which may be available under the terms of The Energy Performance of Buildings (Certificates and Inspections) (England and Wales) Regulations 2007 or the Home Report if in relation to a residential property in Scotland.
*This is the average speed from the provider with the fastest broadband package available at this postcode. The average speed displayed is based on the download speeds of at least 50% of customers at peak time (8pm to 10pm). Fibre/cable services at the postcode are subject to availability and may differ between properties within a postcode. Speeds can be affected by a range of technical and environmental factors. The speed at the property may be lower than that listed above. You can check the estimated speed and confirm availability to a property prior to purchasing on the broadband provider's website. Providers may increase charges. The information is provided and maintained by Decision Technologies Limited. **This is indicative only and based on a 2-person household with multiple devices and simultaneous usage. Broadband performance is affected by multiple factors including number of occupants and devices, simultaneous usage, router range etc. For more information speak to your broadband provider.
Map data ©OpenStreetMap contributors.




