
5 Rattray Street, Monifieth, DD4 4JU

- PROPERTY TYPE
Bungalow
- BEDROOMS
3
- BATHROOMS
1
- SIZE
Ask agent
- TENUREDescribes how you own a property. There are different types of tenure - freehold, leasehold, and commonhold.Read more about tenure in our glossary page.
Freehold
Key features
- Three well proportioned bedrooms
- Ideal single level living
- Private driveway and garage
- Close to beach and amenities
- Sought after Monifieth location
- Excellent modernisation opportunity
Description
Occupying a prominent corner plot in a well-established residential area of Monifieth, 5 Rattray Street is a charming three-bedroom detached bungalow offering generous single-level living and excellent potential to modernise and create a wonderful long-term home. The property is well positioned for everyday convenience, with local amenities close by, highly regarded schooling available within the catchment area, and the beautiful coastline and beach just a short distance away.
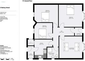
Inside, a spacious central hallway connects the main rooms of the property. The bright living room sits to the front and is filled with natural light thanks to its large bay window, while a traditional fireplace creates a welcoming focal point. A second reception room, also positioned to the front with a bay window, offers excellent flexibility — ideal as an additional lounge, dining room or a particularly spacious principal bedroom depending on individual needs.
The home provides three well-proportioned bedrooms, offering comfortable accommodation for family living, guests, or a home office.
To the rear, the kitchen offers good storage and worktop space and leads through to a practical utility area, helping to keep everyday tasks neatly tucked away from the main living areas. A shower room completes the internal accommodation.
Outside, the property enjoys an attractive wraparound garden bordered by stone walling, with established planting adding colour and privacy. The corner position gives the home a pleasing sense of space and strong kerb appeal within this quiet residential street.
With generous room sizes, characterful bay windows and clear scope for updating, 5 Rattray Street presents an exciting opportunity for buyers to create a home tailored to their own style in a desirable part of Monifieth.
Brochures
Home Report- COUNCIL TAXA payment made to your local authority in order to pay for local services like schools, libraries, and refuse collection. The amount you pay depends on the value of the property.Read more about council Tax in our glossary page.
- Band: D
- PARKINGDetails of how and where vehicles can be parked, and any associated costs.Read more about parking in our glossary page.
- Yes
- GARDENA property has access to an outdoor space, which could be private or shared.
- Private garden
- ACCESSIBILITYHow a property has been adapted to meet the needs of vulnerable or disabled individuals.Read more about accessibility in our glossary page.
- Ask agent
Energy performance certificate - ask agent
5 Rattray Street, Monifieth, DD4 4JU
Add an important place to see how long it'd take to get there from our property listings.
__mins driving to your place
Get an instant, personalised result:
- Show sellers you’re serious
- Secure viewings faster with agents
- No impact on your credit score
Your mortgage
Notes
Staying secure when looking for property
Ensure you're up to date with our latest advice on how to avoid fraud or scams when looking for property online.
Visit our security centre to find out moreDisclaimer - Property reference 9e7c4ba1-2abf-4072-ab65-366a40255aae. The information displayed about this property comprises a property advertisement. Rightmove.co.uk makes no warranty as to the accuracy or completeness of the advertisement or any linked or associated information, and Rightmove has no control over the content. This property advertisement does not constitute property particulars. The information is provided and maintained by Verdala, Dundee. Please contact the selling agent or developer directly to obtain any information which may be available under the terms of The Energy Performance of Buildings (Certificates and Inspections) (England and Wales) Regulations 2007 or the Home Report if in relation to a residential property in Scotland.
*This is the average speed from the provider with the fastest broadband package available at this postcode. The average speed displayed is based on the download speeds of at least 50% of customers at peak time (8pm to 10pm). Fibre/cable services at the postcode are subject to availability and may differ between properties within a postcode. Speeds can be affected by a range of technical and environmental factors. The speed at the property may be lower than that listed above. You can check the estimated speed and confirm availability to a property prior to purchasing on the broadband provider's website. Providers may increase charges. The information is provided and maintained by Decision Technologies Limited. **This is indicative only and based on a 2-person household with multiple devices and simultaneous usage. Broadband performance is affected by multiple factors including number of occupants and devices, simultaneous usage, router range etc. For more information speak to your broadband provider.
Map data ©OpenStreetMap contributors.






