Biggs Avenue, Lidlington, Bedfordshire, MK43

- PROPERTY TYPE
Detached
- BEDROOMS
4
- BATHROOMS
2
- SIZE
Ask agent
- TENUREDescribes how you own a property. There are different types of tenure - freehold, leasehold, and commonhold.Read more about tenure in our glossary page.
Freehold
Key features
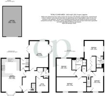
- Over 1,400 sq ft. of living space, including a dedicated ground-floor office.
- High specification kitchen/diner with bay fronted window and stylish shutters.
- South westerly facing private garden with patio
- Detached Garage
- Set within a quiet, sought after development with excellent links to the M1 and thameslink.
- Off the main road on a private side street shared by two properties.
Description
This impeccably presented four-bedroom detached home perfectly balances modern style with village charm. The ground floor boasts a spacious kitchen/dining room ideal for entertaining, a dedicated office for home working, and a light-filled lounge opening onto a private garden. Upstairs, four generous bedrooms including a principal en-suite provide ample space for growing families. Complete with a detached garage and driveway, this property offers a premium lifestyle near Ampthill.
Entrance Hall
Front entrance door, storage cupboard, radiator.
Cloakroom
Double glazed window to side, partly tiled to splashback areas, wash hand basin and low level w/c, radiator.
Lounge
Double glazed window to rear, bay window with shutters to side, two radiators, french doors to garden.
Study
Double glazed window to front with shutters, radiator.
Kitchen/Diner
Double glazed window to rear, bay window with shutters to front, a range of base and wall mounted units with work surfaces over, 1 & 1/2 stainless steel sink and drainer with mixer tap over, gas boiler, integrated fridge/freezer, split level ovens, gas hob and dish washer.
Utility Room
Range of base and wall mounted units with work surfaces over, stainless steel sink and drainer with mixer tap over, space for washing machine and tumble dryer.
Landing
Access to loft, airing cupboard housing hot water tank, radiator.
Bedroom One
Double glazed windows with shutters to side, fitted wardrobes, two radiators.
Ensuite
Double glazed window to side, fully tiled, towel rail, back lit mirror, white suite comprising of wash hand basin, low level w/c and separate cubicle.
Bedroom Two
Two double glazed windows to side, radiator.
Bedroom Three
Double glazed window to rear, radiator.
Bedroom Four
Double glazed window to side, double glazed window to front with shutters, cupboard over stairs, radiator.
Bathroom
Double glazed window to rear, part tiling to splash back areas, towel rail, white suite comprising of panelled bath with telephone shower mixer attachment over, wash hand basin, low level w/c and separate shower cubicle.
Rear Garden
Rear garden mainly laid to lawn with patio seating area.
Front Garden
Hedge-lined front garden mainly laid to lawn with paved path to front door.
Garage
Detached single garage.
Parking
Private driveway in front of garage.
NB
These are preliminary details to be approved by the vendor.
Brochures
Brochure 1- COUNCIL TAXA payment made to your local authority in order to pay for local services like schools, libraries, and refuse collection. The amount you pay depends on the value of the property.Read more about council Tax in our glossary page.
- Ask agent
- PARKINGDetails of how and where vehicles can be parked, and any associated costs.Read more about parking in our glossary page.
- Driveway
- GARDENA property has access to an outdoor space, which could be private or shared.
- Yes
- ACCESSIBILITYHow a property has been adapted to meet the needs of vulnerable or disabled individuals.Read more about accessibility in our glossary page.
- Ask agent
Biggs Avenue, Lidlington, Bedfordshire, MK43
Add an important place to see how long it'd take to get there from our property listings.
__mins driving to your place
Get an instant, personalised result:
- Show sellers you’re serious
- Secure viewings faster with agents
- No impact on your credit score
Affordability
Notes
Staying secure when looking for property
Ensure you're up to date with our latest advice on how to avoid fraud or scams when looking for property online.
Visit our security centre to find out moreDisclaimer - Property reference 30071035. The information displayed about this property comprises a property advertisement. Rightmove.co.uk makes no warranty as to the accuracy or completeness of the advertisement or any linked or associated information, and Rightmove has no control over the content. This property advertisement does not constitute property particulars. The information is provided and maintained by Country Properties, Ampthill. Please contact the selling agent or developer directly to obtain any information which may be available under the terms of The Energy Performance of Buildings (Certificates and Inspections) (England and Wales) Regulations 2007 or the Home Report if in relation to a residential property in Scotland.
*This is the average speed from the provider with the fastest broadband package available at this postcode. The average speed displayed is based on the download speeds of at least 50% of customers at peak time (8pm to 10pm). Fibre/cable services at the postcode are subject to availability and may differ between properties within a postcode. Speeds can be affected by a range of technical and environmental factors. The speed at the property may be lower than that listed above. You can check the estimated speed and confirm availability to a property prior to purchasing on the broadband provider's website. Providers may increase charges. The information is provided and maintained by Decision Technologies Limited. **This is indicative only and based on a 2-person household with multiple devices and simultaneous usage. Broadband performance is affected by multiple factors including number of occupants and devices, simultaneous usage, router range etc. For more information speak to your broadband provider.
Map data ©OpenStreetMap contributors.







