
Minto Mews, Edinburgh

Letting details
- Let available date:
- Now
- Deposit:
- £2,800A deposit provides security for a landlord against damage, or unpaid rent by a tenant.Read more about deposit in our glossary page.
- Min. Tenancy:
- Ask agent How long the landlord offers to let the property for.Read more about tenancy length in our glossary page.
- Let type:
- Long term
- Furnish type:
- Furnished
- Council Tax:
- Ask agent
- PROPERTY TYPE
Apartment
- BEDROOMS
3
- BATHROOMS
3
- SIZE
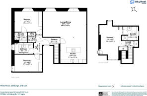
1,453 sq ft
135 sq m
Description
Offering generous accommodation across first and second floor levels, the property has been beautifully decorated and furnished throughout.
Accommodation Comprises:
First floor - Welcoming entrance hall; Spacious open plan lounge/dining room and kitchen, forming an elegant focal point of the home. The kitchen is well laid out with ample worktop and storage space, integrated appliances and a breakfast bar; Two well-proportioned double bedrooms, one with an en-suite shower room; Modern family bathroom; Utility cupboard and hallway storage; Stairs to second floor.
Second floor – Landing; Third bedroom with ensuite shower room, offering a sense of privacy, ideal as a guest suite, principal bedroom, or flexible home office space.
The property further benefits from GCH, one allocated parking space and lovely views to Arthur's Seat.
The property is conveniently located for access to the city centre and a wide variety of local amenities. The nearby Newington and Marchmont areas offer an excellent selection of cafés, restaurants, independent shops, and everyday conveniences.
Cameron Toll Shopping Centre is only a short distance away and provides a range of supermarkets and high-street retailers.
The area is well known for its abundance of green space. Residents can enjoy walks, running routes, and outdoor recreation at The Meadows and Blackford Hill, both located nearby. The surrounding neighbourhood also offers excellent sports facilities, gyms, and golf courses.
The property is also ideally positioned for those connected with University of Edinburgh, with several of its campuses within easy reach.
Frequent bus services run close by, providing direct access to the city centre and surrounding districts. For commuters and longer journeys, Edinburgh Waverley railway station is easily accessible, offering national rail connections across Scotland and the UK. Major road routes to the City Bypass and beyond are also readily accessible.
PLEASE NOTE: THIS PROPERTY DOES NOT HAVE AN HMO LICENSE SO IS NOT SUITABLE FOR THREE OR MORE UNRELATED SHARERS.
Furnished
Deposit: £2,800
Council Tax Band: G
EPC Rating: B
Landlord Registration: 1798367/230/04032
LARN1903047
EPC Rating: B
Council Tax Band: G
- COUNCIL TAXA payment made to your local authority in order to pay for local services like schools, libraries, and refuse collection. The amount you pay depends on the value of the property.Read more about council Tax in our glossary page.
- Band: G
- PARKINGDetails of how and where vehicles can be parked, and any associated costs.Read more about parking in our glossary page.
- Yes
- GARDENA property has access to an outdoor space, which could be private or shared.
- Ask agent
- ACCESSIBILITYHow a property has been adapted to meet the needs of vulnerable or disabled individuals.Read more about accessibility in our glossary page.
- Ask agent
Minto Mews, Edinburgh
Add an important place to see how long it'd take to get there from our property listings.
__mins driving to your place
Notes
Staying secure when looking for property
Ensure you're up to date with our latest advice on how to avoid fraud or scams when looking for property online.
Visit our security centre to find out moreDisclaimer - Property reference EDL260037_L. The information displayed about this property comprises a property advertisement. Rightmove.co.uk makes no warranty as to the accuracy or completeness of the advertisement or any linked or associated information, and Rightmove has no control over the content. This property advertisement does not constitute property particulars. The information is provided and maintained by Rettie, Edinburgh. Please contact the selling agent or developer directly to obtain any information which may be available under the terms of The Energy Performance of Buildings (Certificates and Inspections) (England and Wales) Regulations 2007 or the Home Report if in relation to a residential property in Scotland.
*This is the average speed from the provider with the fastest broadband package available at this postcode. The average speed displayed is based on the download speeds of at least 50% of customers at peak time (8pm to 10pm). Fibre/cable services at the postcode are subject to availability and may differ between properties within a postcode. Speeds can be affected by a range of technical and environmental factors. The speed at the property may be lower than that listed above. You can check the estimated speed and confirm availability to a property prior to purchasing on the broadband provider's website. Providers may increase charges. The information is provided and maintained by Decision Technologies Limited. **This is indicative only and based on a 2-person household with multiple devices and simultaneous usage. Broadband performance is affected by multiple factors including number of occupants and devices, simultaneous usage, router range etc. For more information speak to your broadband provider.
Map data ©OpenStreetMap contributors.








