
Francis Road, Moss, Wrexham

- PROPERTY TYPE
Semi-Detached
- BEDROOMS
3
- BATHROOMS
2
- SIZE
Ask agent
- TENUREDescribes how you own a property. There are different types of tenure - freehold, leasehold, and commonhold.Read more about tenure in our glossary page.
Freehold
Key features
- WELL PRESENTED THREE STOREY FAMILY HOME
- KITCHEN/DINING AREA
- SPACIOUS LOUNGE WITH FRENCH DOORS TO BALCONY
- PRINCIPAL BEDROOM WITH EN-SUITE
- TWO FURTHER DOUBLE BEDROOMS
- ADDITIONAL ROOM / STUDY
- OFF ROAD PARKING AND GARAGE
- STUNNING VIEWS TO REAR
- VIEWINGS HIGHLY RECOMMENDED
- EPC-C
Description
Tucked away in a peaceful location, this property enjoys a wonderful sense of privacy and tranquility, while remaining conveniently close to local amenities, schools, and excellent transport links. The setting provides the perfect balance of countryside charm and commuter convenience, making it ideal for families or those looking for a versatile home in a desirable area.
The Moss is a picturesque village on the outskirts of Wrexham, renowned for its parkland-style countryside and municipal 9-hole golf course. Nearby larger villages provide a range of shopping facilities and amenities, including Primary and Secondary Schools. Excellent road connections via the A483 by-pass allow easy access to Chester, Oswestry, and Wrexham, making daily commuting straightforward. Wrexham Maelor Hospital and Glyndwr University are a short drive away, while Wrexham Town Centre offers a wealth of retail, leisure, and social amenities.
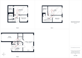
The property offers in brief accommodation comprising; Entrance Hallway, Kitchen/Dining Area, Utility Room, Spacious Lounge with French Doors to Balcony, Principal Bedroom with En Suite, Two Further Double Bedrooms, Additional Room/Study, and Family Bathroom. Externally, the home benefits from Off-Road Parking for approximately two vehicles, a Garage, and a beautiful Rear Garden arranged over tiers, providing patio, mature trees, and stunning views.
First Level -
Entrance Hallway - The property is entered via a wooden double glazed entrance door leading into a welcoming hallway. Featuring wood effect laminate flooring and inset ceiling spotlights, the hallway provides doors to a convenient WC, a useful storage cupboard with shelving and hanging rail, and the kitchen/Diner. Stairs descend to the lower level accommodation.
W.C - A convenient WC with wood effect laminated flooring, wash hand basin with mixer tap over and complementary splashback tiling, low flush WC, inset ceiling spotlights and a double panelled radiator.
Kitchen/ Diner - Well appointed kitchen, fitted with a range of wall, base, and drawer units with complementary worktop surfaces. Integrated appliances include a fridge freezer, oven with four ring gas hob and extractor fan, and a BEKO dishwasher. The room is bright and airy with inset ceiling spotlights, two double-panelled radiators, and double-glazed windows to the rear elevation, offering stunning views. There is space for a dining table or seating area, creating a versatile kitchen/dining or sitting space. Wood effect laminate flooring. A door leads through to the utility room.
Utility Room - A convenient space continuing with wood effect laminate flooring, fitted with base units and worktops. There is plumbing for a washing machine and a wall mounted Worcester boiler. Features include a double panelled radiator, inset ceiling spotlights, loft access, and a door leading through to the garage.
Second Level - Double glazed window to the side elevation. Doors lead off to the lounge, bedroom two, and family bathroom, with a useful storage cupboard housing the water tank. Stairs descend to the lower level.
Lounge - A bright and inviting lounge featuring wood effect laminate flooring and a stone effect gas fire set on a marble hearth with wooden mantel. Additional features include a double panelled radiator, telephone and television points, and inset ceiling spotlights. UPVC double glazed French doors open onto an enclosed balcony area with safety railings, providing fresh air and a pleasant space to enjoy the surrounding views.
Bedroom Two - Double bedroom with carpeted flooring, double-panelled radiator, inset ceiling spotlights, and a double glazed window to the rear elevation.
Bathroom - Modern bathroom with tiled flooring and part-tiled walls. Comprising a bath with tiled surround and mixer tap with handheld shower, wall mounted wash hand basin with mixer tap, low-level flush WC, and heated towel rail. Inset ceiling spotlights.
Third Level - Carpeted flooring with a double panelled radiator and inset ceiling spotlights. Doors lead to the rear gardens, principal bedroom, bedroom three, and a versatile additional room/study.
Bedroom One - A spacious double bedroom with carpeted flooring, double panelled radiator, inset ceiling spotlights, and a television point. Dglazed window to the rear elevation provides natural light and stunning views. Door leads to the en suite.
Ensuite - Beautifully appointed En suite with tiled flooring and walls. Includes a bath with tiled surround and mixer tap, a walk-in shower area with shower attachment, wall-mounted wash hand basin with mixer tap, and low-level flush WC. Features a heated towel rail and inset ceiling spotlights.
Bedroom Three - Double bedroom with carpeted flooring, double -panelled radiator, inset ceiling spotlights, and a rear-facing double-glazed window.
Additional Room / Study - A versatile room that could be used as a home office, dressing room, nursery, or occasional guest space. Features carpeted flooring, double-panelled radiator, inset ceiling spotlights, and a telephone point.
Outside -
To The Rear - The rear garden is presented over multiple tiers, with steps leading to further levels. There are areas suitable for seating and dining, with mature trees, hedging, and fencing. The garden also enjoys scenic views over the Cheshire Plains, offering a tranquil and attractive setting.
To The Front - The property benefits from off road parking for approximately two vehicles and garage. A gated entrance leads to the front door.
Garage - The garage is fitted with lighting and power, accessed via an up and over door.
Viewing Arrangements. - Strictly by prior appointment through Reid & Roberts Estate Agents. Telephone Wrexham . Do you have a house to sell? Ask a member of staff for a FREE VALUATION without obligation.
Mortgage Advice. - Reid & Roberts Estate Agents can offer you a full range of Mortgage Products and save you the time and inconvenience of trying to get the most competitive deal yourself. We deal with all major Banks and Building Societies and can look for the most competitive rates around. For more information call .
To Make An Offer. - Once you are interested in buying this property, contact this office to make an appointment. The appointment is part of our guarantee to the seller and should be made before contacting a Building Society, Bank or Solicitor. Any delay may result in the property being sold to someone else, and survey and legal fees being unnecessarily incurred.
Money Laundering Regulations. - Both vendors and purchasers are asked to produce identification documentation and we would ask for your co-operation in order that there will be no delay in agreeing the sale.
Misrepresentation Act. - These particulars, whilst believed to be accurate, are for guidance only and do not constitute any part of an offer or contract - Intending purchasers or tenants should not rely on them as statements or representations of fact, but must satisfy themselves by inspection or otherwise as to their accuracy. No person in the employment of Reid and Roberts has the authority to make or give any representations or warranty in relation to the property.
Loans. - YOUR HOME IS AT RISK IF YOU DO NOT KEEP UP REPAYMENTS ON A MORTGAGE OR OTHER LOANS SECURED ON IT.
Services. - The agents have not tested the appliances listed in the particulars.
Hours Of Business. - Monday - Friday 9.15am - 5.00pm
Saturday 9.15am - 4.00pm
Tenure - We have been informed the tenure is freehold and the vendor’s solicitors should confirm title.
Disclaimer. - These particulars are provided as a general guide only. While we endeavour to ensure accuracy, they do not constitute or form part of any offer or contract, and no reliance should be placed on them as statements of fact. All descriptions, dimensions, references to condition and necessary permissions for use and occupation, and other details are given in good faith but should be independently verified. Services, systems and appliances have not been tested and no guarantee as to their operability or efficiency is given.
Brochures
Francis Road, Moss, WrexhamBrochure- COUNCIL TAXA payment made to your local authority in order to pay for local services like schools, libraries, and refuse collection. The amount you pay depends on the value of the property.Read more about council Tax in our glossary page.
- Ask agent
- PARKINGDetails of how and where vehicles can be parked, and any associated costs.Read more about parking in our glossary page.
- Yes
- GARDENA property has access to an outdoor space, which could be private or shared.
- Yes
- ACCESSIBILITYHow a property has been adapted to meet the needs of vulnerable or disabled individuals.Read more about accessibility in our glossary page.
- Ask agent
Francis Road, Moss, Wrexham
Add an important place to see how long it'd take to get there from our property listings.
__mins driving to your place
Affordability
Get an instant, personalised result:
- Show sellers you’re serious
- Secure viewings faster with agents
- No impact on your credit score
Notes
Staying secure when looking for property
Ensure you're up to date with our latest advice on how to avoid fraud or scams when looking for property online.
Visit our security centre to find out moreDisclaimer - Property reference 34531027. The information displayed about this property comprises a property advertisement. Rightmove.co.uk makes no warranty as to the accuracy or completeness of the advertisement or any linked or associated information, and Rightmove has no control over the content. This property advertisement does not constitute property particulars. The information is provided and maintained by Reid and Roberts, Wrexham. Please contact the selling agent or developer directly to obtain any information which may be available under the terms of The Energy Performance of Buildings (Certificates and Inspections) (England and Wales) Regulations 2007 or the Home Report if in relation to a residential property in Scotland.
*This is the average speed from the provider with the fastest broadband package available at this postcode. The average speed displayed is based on the download speeds of at least 50% of customers at peak time (8pm to 10pm). Fibre/cable services at the postcode are subject to availability and may differ between properties within a postcode. Speeds can be affected by a range of technical and environmental factors. The speed at the property may be lower than that listed above. You can check the estimated speed and confirm availability to a property prior to purchasing on the broadband provider's website. Providers may increase charges. The information is provided and maintained by Decision Technologies Limited. **This is indicative only and based on a 2-person household with multiple devices and simultaneous usage. Broadband performance is affected by multiple factors including number of occupants and devices, simultaneous usage, router range etc. For more information speak to your broadband provider.
Map data ©OpenStreetMap contributors.







