Fawcett Road, Southsea, Hampshire, PO4

- PROPERTY TYPE
Flat
- BEDROOMS
1
- BATHROOMS
1
- SIZE
Ask agent
Key features
- First floor flat located on Fawcett Road in the heart of Southsea
- Offered with no forward chain and a share of the freehold.
- Bright and welcoming sitting room providing the main living space
- Separate kitchen offering practical preparation and storage space
- Well-proportioned bedroom and conveniently positioned bathroom
- Within walking distance of local shops, cafés, amenities and excellent transport links including Fratton station
Description
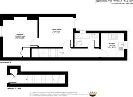
Internally, the accommodation provides a bright and welcoming sitting room which serves as the main living space, ideal for both relaxing and entertaining. The property also features a separate kitchen, offering practical preparation space and storage. The bedroom is well-proportioned and provides comfortable accommodation with space for furnishings, while the bathroom is conveniently positioned within the layout.
The property is ideally placed within easy reach of a wide range of local amenities including independent shops, supermarkets, cafés and everyday conveniences, all within walking distance. Excellent public transport links are also close by, with regular bus routes providing straightforward access across Portsmouth, while nearby Fratton train station offers direct rail connections for those commuting further afield.
This property would make an ideal purchase for first-time buyers, investors, or those seeking a well-located Southsea home.
TENURE
Share of Freehold
Unexpired Years: 125
Annual Ground Rent: Peppercorn
Ground Rent Increase: N/A
Ground Rent Review Period: N/A
Annual Service Charge: N/A
These details are to be confirmed by the vendor's solicitor and must be verified by a buyer's solicitor.
Agents Note: Where this property is subject to estate management, service, and/or ground rent charges, an administrative fee may be payable to the management company to transfer these charges into the buyer’s name upon completion
ADDITIONAL INFORMATION
Materials used in construction: ASK AGENT
For further information on broadband and mobile coverage, please refer to the Ofcom Checker online
Should a purchaser(s) have an offer accepted on a property marketed by Charters Estate Agents, they will need to undertake an identification check. This is done to meet our obligation under Anti Money Laundering Regulations (AML) and is a legal requirement. We use a specialist third party service to verify your identity. The cost of these checks is £60 inc. VAT per purchase, which is paid in advance, when an offer is agreed and prior to a sales memorandum being issued. This charge is non-refundable under any circumstances.
Southsea is one of Portsmouth’s most sought-after coastal locations, renowned for its attractive seafront, vibrant community, and distinctive period architecture. The area offers an excellent lifestyle appeal, combining seaside living with a wide range of independent cafés, restaurants, bars, and boutique shops, particularly around Palmerston Road and Albert Road.
Residents enjoy easy access to Southsea Common and the historic seafront, providing extensive green space, leisure facilities, and scenic coastal walks. The area is also home to well-regarded schools, cultural venues, and a strong sense of community, making it popular with families, professionals, and investors alike.
Southsea benefits from excellent transport links, including rail services to London from nearby Portsmouth & Southsea station, along with convenient road access to the A3(M), M27, and wider motorway network. With its enduring popularity, strong rental demand, and appealing mix of lifestyle and convenience, Southsea remains a highly desirable place to live and invest.
Brochures
Particulars- COUNCIL TAXA payment made to your local authority in order to pay for local services like schools, libraries, and refuse collection. The amount you pay depends on the value of the property.Read more about council Tax in our glossary page.
- Band: A
- PARKINGDetails of how and where vehicles can be parked, and any associated costs.Read more about parking in our glossary page.
- On street
- GARDENA property has access to an outdoor space, which could be private or shared.
- Ask agent
- ACCESSIBILITYHow a property has been adapted to meet the needs of vulnerable or disabled individuals.Read more about accessibility in our glossary page.
- Ask agent
Fawcett Road, Southsea, Hampshire, PO4
Add an important place to see how long it'd take to get there from our property listings.
__mins driving to your place
Get an instant, personalised result:
- Show sellers you’re serious
- Secure viewings faster with agents
- No impact on your credit score
Affordability
Notes
Staying secure when looking for property
Ensure you're up to date with our latest advice on how to avoid fraud or scams when looking for property online.
Visit our security centre to find out moreDisclaimer - Property reference CPS260063. The information displayed about this property comprises a property advertisement. Rightmove.co.uk makes no warranty as to the accuracy or completeness of the advertisement or any linked or associated information, and Rightmove has no control over the content. This property advertisement does not constitute property particulars. The information is provided and maintained by Charters, Southsea. Please contact the selling agent or developer directly to obtain any information which may be available under the terms of The Energy Performance of Buildings (Certificates and Inspections) (England and Wales) Regulations 2007 or the Home Report if in relation to a residential property in Scotland.
*This is the average speed from the provider with the fastest broadband package available at this postcode. The average speed displayed is based on the download speeds of at least 50% of customers at peak time (8pm to 10pm). Fibre/cable services at the postcode are subject to availability and may differ between properties within a postcode. Speeds can be affected by a range of technical and environmental factors. The speed at the property may be lower than that listed above. You can check the estimated speed and confirm availability to a property prior to purchasing on the broadband provider's website. Providers may increase charges. The information is provided and maintained by Decision Technologies Limited. **This is indicative only and based on a 2-person household with multiple devices and simultaneous usage. Broadband performance is affected by multiple factors including number of occupants and devices, simultaneous usage, router range etc. For more information speak to your broadband provider.
Map data ©OpenStreetMap contributors.







