
Camp Hill, Chiddingstone Causeway, Tonbridge

- PROPERTY TYPE
Semi-Detached
- BEDROOMS
3
- BATHROOMS
2
- SIZE
904 sq ft
84 sq m
- TENUREDescribes how you own a property. There are different types of tenure - freehold, leasehold, and commonhold.Read more about tenure in our glossary page.
Freehold
Key features
- CHAIN FREE
- Excellent Energy Rating C
- 5 year NHBC guarantee
- Parking with electric charging
- 3.2 miles to H'boro Train Station
- Modern & well presented
- Integrated appliances
- Secure enclosed rear garden
Description
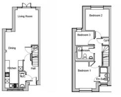
ACCOMMODATION
Ground Floor: Front door into entrance hallway. Downstairs WC. Reception room with lounge and dining areas, understairs cupboard and double doors to garden. Open plan to modern fitted kitchen with wall and base units, integrated oven and hob, washing machine, slimline dishwasher, fridge freezer & extractor fan.
First Floor: Stairs to landing, master double bedroom with built in wardrobes and ensuite shower room. Second double bedroom, third single bedroom. Main bathroom with modern white suite comprising panelled bath with shower over, WC and basin unit.
OUTSIDE
Rear garden mainly laid to lawn, patio and shed. Side access to parking area. Lawn and paved path towards the front. Allocated parking spaces for two vehicles. Electric vehicle charging point.
NHBC: 10 year guarantee issued 25.03.2021
Please note there is a proposed housing development nearby but this has not been approved
UTILITIES & KEY INFORMATION
Mains electricity/water/sewerage
Heating: Calor gas
Local authority: Sevenoaks District Council
Council Tax Band: E
Special Note: A Director of Cavendish has a personal connection to the owner of this property.
Living Room/Kitchen -
Brochures
Camp Hill, Chiddingstone Causeway, Tonbridge- COUNCIL TAXA payment made to your local authority in order to pay for local services like schools, libraries, and refuse collection. The amount you pay depends on the value of the property.Read more about council Tax in our glossary page.
- Band: E
- PARKINGDetails of how and where vehicles can be parked, and any associated costs.Read more about parking in our glossary page.
- Driveway
- GARDENA property has access to an outdoor space, which could be private or shared.
- Yes
- ACCESSIBILITYHow a property has been adapted to meet the needs of vulnerable or disabled individuals.Read more about accessibility in our glossary page.
- Ask agent
Camp Hill, Chiddingstone Causeway, Tonbridge
Add an important place to see how long it'd take to get there from our property listings.
__mins driving to your place
Get an instant, personalised result:
- Show sellers you’re serious
- Secure viewings faster with agents
- No impact on your credit score
Affordability
Notes
Staying secure when looking for property
Ensure you're up to date with our latest advice on how to avoid fraud or scams when looking for property online.
Visit our security centre to find out moreDisclaimer - Property reference 34533368. The information displayed about this property comprises a property advertisement. Rightmove.co.uk makes no warranty as to the accuracy or completeness of the advertisement or any linked or associated information, and Rightmove has no control over the content. This property advertisement does not constitute property particulars. The information is provided and maintained by Cavendish, Sevenoaks. Please contact the selling agent or developer directly to obtain any information which may be available under the terms of The Energy Performance of Buildings (Certificates and Inspections) (England and Wales) Regulations 2007 or the Home Report if in relation to a residential property in Scotland.
*This is the average speed from the provider with the fastest broadband package available at this postcode. The average speed displayed is based on the download speeds of at least 50% of customers at peak time (8pm to 10pm). Fibre/cable services at the postcode are subject to availability and may differ between properties within a postcode. Speeds can be affected by a range of technical and environmental factors. The speed at the property may be lower than that listed above. You can check the estimated speed and confirm availability to a property prior to purchasing on the broadband provider's website. Providers may increase charges. The information is provided and maintained by Decision Technologies Limited. **This is indicative only and based on a 2-person household with multiple devices and simultaneous usage. Broadband performance is affected by multiple factors including number of occupants and devices, simultaneous usage, router range etc. For more information speak to your broadband provider.
Map data ©OpenStreetMap contributors.








