
7 Netherbank View, Liberton, Edinburgh, EH16 6YY

- PROPERTY TYPE
Detached
- BEDROOMS
5
- BATHROOMS
2
- SIZE
2,024 sq ft
188 sq m
- TENUREDescribes how you own a property. There are different types of tenure - freehold, leasehold, and commonhold.Read more about tenure in our glossary page.
Freehold
Description
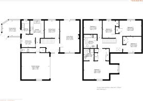
Inside, the property comprises a spacious living area with excellent proportions and a sliding door leading out to the garden, providing ample space for family living and entertaining. The hallway leads you to a large dining room, ready to accommodate everything from family meals to formal dinner parties. The fully equipped kitchen is fitted with an induction hob and double fan oven, and offers a practical layout with excellent scope for modernisation and reconfiguration.
From the kitchen, there are three additional rooms: a dining area, a utility room, and a bright conservatory, providing further flexible living space. A convenient WC completes the ground-floor accommodation.
Upstairs, there are five bedrooms which include an impressive principal bedroom with dual aspect windows, a dressing area, and an en suite shower room with mains shower, along with several further well-proportioned bedrooms, one of which could be utilised as a home office or study, and another benefiting from built-in storage
Completing the first floor is a family bathroom with a four-piece suite.
In addition to this, the property includes a garage and private garden space, making it well-suited to family living. This is a rare opportunity to acquire a substantial home in Liberton with excellent potential to modernise and create a fantastic long-term family property in a desirable location.
Electricity Supply: SP Energy Networks
Water Supply: Scottish Water
Sewerage: Scottish Water
Broadband / Mobile Coverage: Full 4G coverage, limited 3G and 5G.
Brochures
Brochure 1- COUNCIL TAXA payment made to your local authority in order to pay for local services like schools, libraries, and refuse collection. The amount you pay depends on the value of the property.Read more about council Tax in our glossary page.
- Ask agent
- PARKINGDetails of how and where vehicles can be parked, and any associated costs.Read more about parking in our glossary page.
- Yes
- GARDENA property has access to an outdoor space, which could be private or shared.
- Yes
- ACCESSIBILITYHow a property has been adapted to meet the needs of vulnerable or disabled individuals.Read more about accessibility in our glossary page.
- Ask agent
Energy performance certificate - ask agent
7 Netherbank View, Liberton, Edinburgh, EH16 6YY
Add an important place to see how long it'd take to get there from our property listings.
__mins driving to your place
Get an instant, personalised result:
- Show sellers you’re serious
- Secure viewings faster with agents
- No impact on your credit score



Your mortgage
Notes
Staying secure when looking for property
Ensure you're up to date with our latest advice on how to avoid fraud or scams when looking for property online.
Visit our security centre to find out moreDisclaimer - Property reference MFL6255969. The information displayed about this property comprises a property advertisement. Rightmove.co.uk makes no warranty as to the accuracy or completeness of the advertisement or any linked or associated information, and Rightmove has no control over the content. This property advertisement does not constitute property particulars. The information is provided and maintained by McEwan Fraser Legal, Edinburgh. Please contact the selling agent or developer directly to obtain any information which may be available under the terms of The Energy Performance of Buildings (Certificates and Inspections) (England and Wales) Regulations 2007 or the Home Report if in relation to a residential property in Scotland.
*This is the average speed from the provider with the fastest broadband package available at this postcode. The average speed displayed is based on the download speeds of at least 50% of customers at peak time (8pm to 10pm). Fibre/cable services at the postcode are subject to availability and may differ between properties within a postcode. Speeds can be affected by a range of technical and environmental factors. The speed at the property may be lower than that listed above. You can check the estimated speed and confirm availability to a property prior to purchasing on the broadband provider's website. Providers may increase charges. The information is provided and maintained by Decision Technologies Limited. **This is indicative only and based on a 2-person household with multiple devices and simultaneous usage. Broadband performance is affected by multiple factors including number of occupants and devices, simultaneous usage, router range etc. For more information speak to your broadband provider.
Map data ©OpenStreetMap contributors.





