16 Gadeview, Cotterells, Hemel Hempstead

- PROPERTY TYPE
Apartment
- BEDROOMS
1
- BATHROOMS
1
- SIZE
Ask agent
Description
This onebedroom first-floor retirement apartment is positioned just 0.4 miles from the main town centre with its wide range of shops, cafes, and everyday amenities. Designed exclusively for residents aged 60 and over, it provides a comfortable and secure setting for independent living. We understand that the property may also be suitable as a rental investment, provided that any tenants meet the age requirement of 60 years or over.
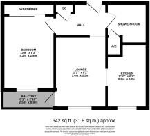
The accommodation comprises a bright living room that opens directly onto a private balcony with elevated views over the park and town, a kitchen with a window overlooking the town, a bedroom including fitted wardrobes, and a modern shower room. There are well-kept communal gardens, communal parking, a lift, two communal library/reading rooms on the first and second floors, which offer perfect space for visitors. Additional benefits include an on-site development manager and a monitored 24-hour emergency cord system.
Tenure:
Leasehold
Accommodation:
Entrance hallway, kitchen, living room that opens directly onto a private balcony, bedroom with fitted wardrobes, and shower room.
Exterior:
Communal garden and communal parking.
Lease:
125 years from 01/01/1990 (88 years remaining)
Ground Rent:
£291 per annum.
Service Charge:
£4,056 per annum.
Viewings:
Please contact us on to arrange a viewing.
** The auction is being held at the Delta Marriott Hotel, Timbold Drive, Milton Keynes MK7 6HL on Wednesday 22nd April 2026 and will start at 12:00; it is a public auction so you can just turn up on the day you do not need to pre-register.
You can also register for telephone/proxy/internet bidding online from the 13th April 2026 by following the link below and clicking on the yellow box Register to Bid: **
Council Tax Band:
C
EPC Rating:
B
VAT:
VAT is not applicable
Seller's Solicitor:
Pictons Solicitors
Ref: Melanie Lawrence
Unit B, Ground Floor Moorgate House, 201 Silbury Boulevard, Milton Keynes, Buckinghamshire, MK9 1JL
melanie.
Local Authority:
Dacorum Borough Council -
Services:
Interested parties are requested to make their own enquiries to the relevant authorities as to the availability of services.
Buyers Premium:
There is no Buyer's Premium payable on this lot.
Disbursements:
Please see the legal pack for any disbursements listed that may become payable by the purchaser on completion.
Administration Charge:
Purchasers will be required to pay an administration fee of £1,500 incl. VAT
Brochures
Particulars- COUNCIL TAXA payment made to your local authority in order to pay for local services like schools, libraries, and refuse collection. The amount you pay depends on the value of the property.Read more about council Tax in our glossary page.
- Band: TBC
- PARKINGDetails of how and where vehicles can be parked, and any associated costs.Read more about parking in our glossary page.
- Yes
- GARDENA property has access to an outdoor space, which could be private or shared.
- Ask agent
- ACCESSIBILITYHow a property has been adapted to meet the needs of vulnerable or disabled individuals.Read more about accessibility in our glossary page.
- Ask agent
Energy performance certificate - ask agent
16 Gadeview, Cotterells, Hemel Hempstead
Add an important place to see how long it'd take to get there from our property listings.
__mins driving to your place
Get an instant, personalised result:
- Show sellers you’re serious
- Secure viewings faster with agents
- No impact on your credit score
Affordability
Notes
Staying secure when looking for property
Ensure you're up to date with our latest advice on how to avoid fraud or scams when looking for property online.
Visit our security centre to find out moreDisclaimer - Property reference BKM260063. The information displayed about this property comprises a property advertisement. Rightmove.co.uk makes no warranty as to the accuracy or completeness of the advertisement or any linked or associated information, and Rightmove has no control over the content. This property advertisement does not constitute property particulars. The information is provided and maintained by Robinson & Hall Auctions, Bedford & Buckingham. Please contact the selling agent or developer directly to obtain any information which may be available under the terms of The Energy Performance of Buildings (Certificates and Inspections) (England and Wales) Regulations 2007 or the Home Report if in relation to a residential property in Scotland.
Auction Fees: The purchase of this property may include associated fees not listed here, as it is to be sold via auction. To find out more about the fees associated with this property please call Robinson & Hall Auctions, Bedford & Buckingham on 01239 803034.
*Guide Price: An indication of a seller's minimum expectation at auction and given as a Guide Price or a range of Guide Prices. This is not necessarily the figure a property will sell for and is subject to change prior to the auction.
Reserve Price: Each auction property will be subject to a Reserve Price below which the property cannot be sold at auction. Normally the Reserve Price will be set within the range of Guide Prices or no more than 10% above a single Guide Price.
*This is the average speed from the provider with the fastest broadband package available at this postcode. The average speed displayed is based on the download speeds of at least 50% of customers at peak time (8pm to 10pm). Fibre/cable services at the postcode are subject to availability and may differ between properties within a postcode. Speeds can be affected by a range of technical and environmental factors. The speed at the property may be lower than that listed above. You can check the estimated speed and confirm availability to a property prior to purchasing on the broadband provider's website. Providers may increase charges. The information is provided and maintained by Decision Technologies Limited. **This is indicative only and based on a 2-person household with multiple devices and simultaneous usage. Broadband performance is affected by multiple factors including number of occupants and devices, simultaneous usage, router range etc. For more information speak to your broadband provider.
Map data ©OpenStreetMap contributors.




