15 Hansted Place, Lucan, Co. Dublin, K78 DK20, Ireland
- PROPERTY TYPE
Duplex
- BEDROOMS
2
- SIZE
Ask agent
Key features
- G.F.C.H.
- BER B3.
- One designated car parking space with plenty of visitor parking.
- Large 2 bed 1st & 2nd floor duplex with roof garden.
- Large living room & Kitchen.
- Easy access to schools
- shops
- & public transport.
- N4
- M50 & Adamstown Train Station within easy reach.
Description
The accommodation is intelligently designed to maximize space and natural light. Upon entering on the first floor, the hallway leads to two large double bedrooms. The main bedroom is a generous and comfortable room, featuring extensive built-in wardrobes and its own ensuite bathroom. The second double bedroom offers excellent proportions, providing flexibility for guests or a dedicated home office.
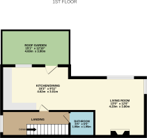
The top floor is the standout feature of the home, offering a stunning dual-aspect layout that floods the living areas with natural light from two different angles, creating a warm and airy atmosphere. This level comprises an open-plan kitchen and dining area alongside an inviting living room. Conveniently located on this upper level is a large, well-appointed family bathroom.
A significant highlight of this property is the access to a large private roof garden. Positioned as an ideal spot for al fresco dining and relaxing in the sun, this elevated outdoor space offers a serene retreat with excellent views.
The property also includes attic storage space, which has been expertly floored and shelved to provide invaluable extra storage.
No. 15 enjoys a tranquil setting, positioned quietly within the Hansted development, while remaining just a short stroll from essential services. A large crèche facility is conveniently located at the development's entrance, and the nearby Adamstown train station provides excellent commuter and mainline links. The historic Lucan Village is also within easy reach, offering a vibrant selection of cafés, restaurants, and scenic walks along the River Liffey. For outdoor enthusiasts, Griffeen Valley Park, local community centres, and various sporting clubs are all nearby.
Viewing is highly recommended
15 Hansted Place, Lucan, Co. Dublin, K78 DK20, Ireland
NEAREST AIRPORTS
Distances are straight line measurements- Dublin(International)10.3 miles
- Waterford(International)84.3 miles
- Belfast(International)92.2 miles
Advice on buying Irish property
Learn everything you need to know to successfully find and buy a property in Ireland.
Notes
This is a property advertisement provided and maintained by Sherry FitzGerald, Co. Dublin (reference 140786_LUC260063) and does not constitute property particulars. Whilst we require advertisers to act with best practice and provide accurate information, we can only publish advertisements in good faith and have not verified any claims or statements or inspected any of the properties, locations or opportunities promoted. Rightmove does not own or control and is not responsible for the properties, opportunities, website content, products or services provided or promoted by third parties and makes no warranties or representations as to the accuracy, completeness, legality, performance or suitability of any of the foregoing. We therefore accept no liability arising from any reliance made by any reader or person to whom this information is made available to. You must perform your own research and seek independent professional advice before making any decision to purchase or invest in overseas property.






