
Chirk, Wrexham, LL14

Letting details
- Let available date:
- Now
- Deposit:
- £3,462A deposit provides security for a landlord against damage, or unpaid rent by a tenant.Read more about deposit in our glossary page.
- Min. Tenancy:
- 12 months How long the landlord offers to let the property for.Read more about tenancy length in our glossary page.
- Let type:
- Long term
- Furnish type:
- Ask agent
- Council Tax:
- Ask agent
- BEDROOMS
6
- BATHROOMS
4
- SIZE
4,736 sq ft
440 sq m
Description
The property recently under went internal renovation which included redecoration of a number of rooms, a new kitchen oven and extractor fan, new laminate flooring in the entrance hall, several new radiators, and new bathroom extractor fans.
You enter the property into a spacious reception hall which provides carpeted stairs to the first floor. There are doors off to two reception rooms which benefit from open fireplaces and floor to ceiling windows, an office and the inner hallway. The inner hallway provides access to the third reception room, a downstairs W/C, and the kitchen which features fitted wall and base units, and a double sink. The kitchen leads to the rear lobby which has a pantry off, secondary stairs to the first floor, and a utility which benefits from fitted wall and base units, a sink, and plumbing for a washing machine.
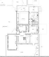
Ground Floor Accommodation (metres):
Entrance Hall: 6.518 x 4.437
Reception Room 1: 4.853 x 9.088
Office: 2.078 x 3.814
Reception Room 2: 5.182 x 4.565
Kitchen: 5.188 x 5.613
Pantry: 3.432 x 1.399
W/C: 1.197 x 3.849
Reception Room 3: 4.152 x 4.791
Utility: 3.935 x 5.279
Garage: 5.583 x 2.932
The first-floor landing provides access to four bedrooms, a bathroom, and leads to the secondary landing. Bedroom 1 is the master suite which is a large double bedroom with a fitted wardrobe, there is a dressing room with a second fitted wardrobe, and an ensuite bathroom with a W/C, sink, and a bath. Bedroom two is a double bedroom with a fitted wardrobe, and an ensuite with a W/C, sink, and a bath – this ensuite can also be accessed off the landing. Bedroom 3 is a double bedroom with a fitted wardrobe. Bedroom 4 is a small double bedroom with a fitted wardrobe. The family bathroom has a W/C, sink, and a bath.
The secondary landing can be accessed through a door off the main landing, or by stairs in ground floor rear lobby, it provides access to two more bedrooms and a bathroom. Bedroom 5 is a single bedroom with a fitted wardrobe. Bedroom 6 is a double bedroom with a fitted wardrobe. There is a bathroom with a W/C, sink, bath, and a shower cubicle. The secondary landing offers a boiler room and small steps to the loft rooms.
The property benefits from oil fired central heating, mains & bore hole water supply, septic tank drainage, two wood-burning stoves & Aga.
Pets considered.
- COUNCIL TAXA payment made to your local authority in order to pay for local services like schools, libraries, and refuse collection. The amount you pay depends on the value of the property.Read more about council Tax in our glossary page.
- Band: H
- PARKINGDetails of how and where vehicles can be parked, and any associated costs.Read more about parking in our glossary page.
- Yes
- GARDENA property has access to an outdoor space, which could be private or shared.
- Yes
- ACCESSIBILITYHow a property has been adapted to meet the needs of vulnerable or disabled individuals.Read more about accessibility in our glossary page.
- Ask agent
Chirk, Wrexham, LL14
Add an important place to see how long it'd take to get there from our property listings.
__mins driving to your place


Notes
Staying secure when looking for property
Ensure you're up to date with our latest advice on how to avoid fraud or scams when looking for property online.
Visit our security centre to find out moreDisclaimer - Property reference SYR240039_L. The information displayed about this property comprises a property advertisement. Rightmove.co.uk makes no warranty as to the accuracy or completeness of the advertisement or any linked or associated information, and Rightmove has no control over the content. This property advertisement does not constitute property particulars. The information is provided and maintained by Carter Jonas Rural, Shrewsbury Lettings. Please contact the selling agent or developer directly to obtain any information which may be available under the terms of The Energy Performance of Buildings (Certificates and Inspections) (England and Wales) Regulations 2007 or the Home Report if in relation to a residential property in Scotland.
*This is the average speed from the provider with the fastest broadband package available at this postcode. The average speed displayed is based on the download speeds of at least 50% of customers at peak time (8pm to 10pm). Fibre/cable services at the postcode are subject to availability and may differ between properties within a postcode. Speeds can be affected by a range of technical and environmental factors. The speed at the property may be lower than that listed above. You can check the estimated speed and confirm availability to a property prior to purchasing on the broadband provider's website. Providers may increase charges. The information is provided and maintained by Decision Technologies Limited. **This is indicative only and based on a 2-person household with multiple devices and simultaneous usage. Broadband performance is affected by multiple factors including number of occupants and devices, simultaneous usage, router range etc. For more information speak to your broadband provider.
Map data ©OpenStreetMap contributors.






