136 Dykes Lane, Wisewood, Sheffield, South Yorkshire S6 4RJ
- SIZE
Ask agent
- SECTOR
3 bedroom mixed use property for sale
Key features
- Leasehold for 800 years from 29th September 1930
- Substantial inner terrace in the heart of this popular district of S6
- Comprises ground floor front retail with spacious residential to the remainder
- Requires a full scheme of refurbishment
- Offers excellent potential
Description
Sold at auction on 28 April 2026 for £125,000.
Offered in partnership with Edmund Winder Watts Ltd
A substantial inner terrace occupying a level position in the heart of this popular residential area, well served by comprehensive facilities in Hillsborough, local schools and open countryside in the Loxley and Rivelin Valleys.
The property comprises a sales shop, currently used for dog grooming, let at £4,420pa from the 31st October 2023, together with spacious residential accommodation to the rear of the ground floor as well as the whole of the first and second floors.
The accommodation is in need of modernisation and offers considerable potential to refurbish for reletting or possible conversion to a single dwelling (subject to any consents).
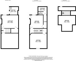
Commercial - ground Floor Sales Shop - 18 .73 Sq.M
Residential - Ground Floor Kitchen,
Living Room,
Understairs Store
Residential - First Floor Landing,
Front Bedroom,
Rear Bedroom with Understairs Closet,
Bathroom,
WC
Residential - Second Floor Large Attic Bedroom
Tenure: Leasehold
EPC Rating: F
Terms:
Auction Details
The sale of this property will take place on the stated date by way of Multi lot timed auction and is being sold under the Unconditional sale type.
Binding contracts will be exchanged at the point of sale.
All sales are subject to our Common Auction Conditions and Bidder Terms. Properties located in Scotland and Northern Ireland will be subject to applicable local laws.
Auction Deposit and Fees
The following deposits and non- refundable auctioneers fees apply:
• 10% deposit (subject to a minimum of £5,000)
• Buyer’s Fee of 1.8% of the purchase price (subject to a minimum of £2,400 inc. VAT)
There may be additional fees listed in the Special Conditions of Sale, which will be available to view within the Legal Pack. You must read the Legal Pack carefully before bidding.
Additional Information
For full details about our auction processes, please refer to the Bidder Terms which can be viewed on our home page.
This explains the types of auction and sale methods we offer, the bidding registration process, your payment obligations, and how to view the Legal Pack (and any applicable home report for residential Scottish properties).
Guide Price & Reserve Price
Each property sold is subject to a Reserve Price. The Reserve Price will be within + or - 10% of the Guide Price. The Guide Price is issued solely as a guide so that a buyer can consider whether or not to pursue their interest. A full definition can be found within the Buyers Terms.
136 Dykes Lane, Wisewood, Sheffield, South Yorkshire S6 4RJ
NEAREST STATIONS
Distances are straight line measurements from the centre of the postcode- Malin Bridge Tram Stop0.3 miles
- Hillsborough Park Tram Stop0.4 miles
- Hillsborough Tram Stop0.5 miles
Notes
Disclaimer - Property reference 202602181626sq_j9pm. The information displayed about this property comprises a property advertisement. Rightmove.co.uk makes no warranty as to the accuracy or completeness of the advertisement or any linked or associated information, and Rightmove has no control over the content. This property advertisement does not constitute property particulars. The information is provided and maintained by BTG Eddisons Property Auctions, Commercial Nationwide. Please contact the selling agent or developer directly to obtain any information which may be available under the terms of The Energy Performance of Buildings (Certificates and Inspections) (England and Wales) Regulations 2007 or the Home Report if in relation to a residential property in Scotland.
Auction Fees: The purchase of this property may include associated fees not listed here, as it is to be sold via auction. To find out more about the fees associated with this property please call BTG Eddisons Property Auctions, Commercial Nationwide on 03456 462288.
*Guide Price: An indication of a seller's minimum expectation at auction and given as a Guide Price or a range of Guide Prices. This is not necessarily the figure a property will sell for and is subject to change prior to the auction.
Reserve Price: Each auction property will be subject to a Reserve Price below which the property cannot be sold at auction. Normally the Reserve Price will be set within the range of Guide Prices or no more than 10% above a single Guide Price.
Map data ©OpenStreetMap contributors.





