
Nottingham Road, Loughborough

- PROPERTY TYPE
House
- BEDROOMS
3
- BATHROOMS
1
- SIZE
1,131 sq ft
105 sq m
- TENUREDescribes how you own a property. There are different types of tenure - freehold, leasehold, and commonhold.Read more about tenure in our glossary page.
Freehold
Key features
- For Sale by Public Auction
- Wednesday 15th April 2026, 6:00pm, Live Auction Event
- Appealing investment opportunity for new and seasoned investors
- Freehold mixed-use property
- Commercial unit with tenant (Dance Studio)
- Self-contained three-bedroom flat
- Fully let, expected to produce £19,200 per annum, subject to minor refurbishments
- Equating to a gross yield of 9.8% (based on the auction guide price)
Description
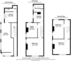
An opportunity to acquire a freehold mixed-use investment property comprising a ground floor commercial unit (No. 81) and a self-contained three-bedroom flat above (No. 81A).
No. 81 is currently let as a dance studio under a 1954 Act commercial tenancy, providing an immediate and established income stream. The commercial unit has a current passing rent of £7,800 per annum. The space offers a entrance space, studio, kitchen, store and WC. There is also access to a courtyard rear garden. The dance studio is sold with a tenant in situ.
No. 81A, previously let on a residential tenancy, is now vacant and would benefit from a scheme of modernisation and redecoration. The accommodation is spread across two floors with the first floor including the lounge/diner, kitchen, bathroom and bedroom. On the second floor, two further bedrooms can be found. Following refurbishments we would expect the property to achieve £900pcm. The apartment is sold with vacant possession.
When fully let, the combined residential and commercial income would generate £19,200 per annum, equating to a gross yield of 9.8% (based on the auction guide price), and offering an appealing investment opportunity for new and seasoned investors alike.
The property occupies a prominent corner position on Nottingham Road and Queens Road, on the eastern side of the vibrant market town of Loughborough. Loughborough offers a wide range of amenities including shops, schools, pubs, churches, and a hospital, together with a strong rental market supported by the university.
Auction Details:
Sheldon Bosley Knight Land and Property Auction
Wednesday 15th April 2026 at 6:00pm
Live Auction Event
Auction Terms - The property will unless previously withdrawn, be sold subject to the Special and General Conditions of Sale, which have been settled by the Vendor’s Solicitor and are contained within the Auction Legal Pack. This pack is available to download to registered bidders. The conditions may also be inspected in the Sale Room at the time of the sale but they will not then be read. The purchaser shall be deemed to bid on those terms whether he shall have inspected the Conditions or not.
The sale of this property will take place on the stated date by way of a live, in-room auction and is being sold as Unconditional with a Fixed Fee. Some sellers may consider a pre-auction offer, and the Lot may be sold or withdrawn before the auction.
Binding contracts of sale will be exchanged at the point of sale.
Auction Deposit And Fees - The following deposits and non-refundable auctioneer’s fee apply. These will need to be paid to the auctioneer on exchange of contracts:
•10% deposit (subject to a minimum of £5,000)
•Buyer’s Premium of £1,500 inc. VAT
•Search pack of £630 inc. VAT
There may be additional costs listed in the Special Conditions of Sale, which will be available to view within the Legal Pack. These additional costs will be payable to the seller’s solicitor on Completion. You must read the Legal Pack carefully before bidding.
Guide Price & Reserve Price - The guide price offers an indication of the price below which the vendor is not willing to sell. It is not necessarily the exact final sale price and is subject to change prior to and up until the day of the auction. Any change in the guide price will reflect a change in the reserve (a figure below which the auctioneer will not be able to sell). The reserve can be expected to be set within the guide range or not more than 10% above a single-figure guide. (RICS Common Auction Conditions 4th Edition).
Plans - Plans shown are for identification purposes only.
Services - The auctioneer understands that mains water, drainage and electricity are connected to the property, though these services have not been tested. Buyers are advised to make their own enquiries to confirm the connected services.
Directions - What threes Words: ///radio.booth.solved
Tenure And Possession - The property and land are freehold. Vacant possession of the flat will be given upon completion, which is normally 20 working days after the auction. Please note that this will not apply to the commercial unit to the ground floor, as this is sold with a tenant in situ. Please refer to the Legal Pack for further details.
Bidder Registration And Auction Legal Pack - If you would like to register to bid, please head to the following link: passport.eigroup.co.uk/bidder-registration/sheldon-bosley-knight/
You can opt to bid in person, online, by telephone or by proxy. You will also be able to download the Auction Legal Pack for the Lot you are interested in here: auctioneertemplates.eigroup.co.uk/guides.aspx?a=1236&c=sbk
The Auction Passport requires you to input the details of your solicitor. If you would like to use our own preferred solicitors, please let us know and I will arrange for a quote to be sent to you.
If this is the first time you have accessed Auction Passport, just press the green button on the left-hand side ‘Click here to sign up for free' to create a new account.
Legal Documents & Additional Costs - It is essential bidders check the legal documents prior to bidding and take professional advice. Special Conditions of Sale can contain additional costs (that is costs over and above the price the lot is ‘knocked down’ at) and bidders are deemed to be aware of any additional costs prior to bidding.
Viewings - All viewings are by appointment only through the Auction Department
Brochures
Nottingham Road, Loughborough- COUNCIL TAXA payment made to your local authority in order to pay for local services like schools, libraries, and refuse collection. The amount you pay depends on the value of the property.Read more about council Tax in our glossary page.
- Band: A
- PARKINGDetails of how and where vehicles can be parked, and any associated costs.Read more about parking in our glossary page.
- On street
- GARDENA property has access to an outdoor space, which could be private or shared.
- Yes
- ACCESSIBILITYHow a property has been adapted to meet the needs of vulnerable or disabled individuals.Read more about accessibility in our glossary page.
- Ask agent
Nottingham Road, Loughborough
Add an important place to see how long it'd take to get there from our property listings.
__mins driving to your place
Get an instant, personalised result:
- Show sellers you’re serious
- Secure viewings faster with agents
- No impact on your credit score
Affordability
Notes
Staying secure when looking for property
Ensure you're up to date with our latest advice on how to avoid fraud or scams when looking for property online.
Visit our security centre to find out moreDisclaimer - Property reference 34541527. The information displayed about this property comprises a property advertisement. Rightmove.co.uk makes no warranty as to the accuracy or completeness of the advertisement or any linked or associated information, and Rightmove has no control over the content. This property advertisement does not constitute property particulars. The information is provided and maintained by Sheldon Bosley Knight, Auction. Please contact the selling agent or developer directly to obtain any information which may be available under the terms of The Energy Performance of Buildings (Certificates and Inspections) (England and Wales) Regulations 2007 or the Home Report if in relation to a residential property in Scotland.
Auction Fees: The purchase of this property may include associated fees not listed here, as it is to be sold via auction. To find out more about the fees associated with this property please call Sheldon Bosley Knight, Auction on 01608 692864.
*Guide Price: An indication of a seller's minimum expectation at auction and given as a Guide Price or a range of Guide Prices. This is not necessarily the figure a property will sell for and is subject to change prior to the auction.
Reserve Price: Each auction property will be subject to a Reserve Price below which the property cannot be sold at auction. Normally the Reserve Price will be set within the range of Guide Prices or no more than 10% above a single Guide Price.
*This is the average speed from the provider with the fastest broadband package available at this postcode. The average speed displayed is based on the download speeds of at least 50% of customers at peak time (8pm to 10pm). Fibre/cable services at the postcode are subject to availability and may differ between properties within a postcode. Speeds can be affected by a range of technical and environmental factors. The speed at the property may be lower than that listed above. You can check the estimated speed and confirm availability to a property prior to purchasing on the broadband provider's website. Providers may increase charges. The information is provided and maintained by Decision Technologies Limited. **This is indicative only and based on a 2-person household with multiple devices and simultaneous usage. Broadband performance is affected by multiple factors including number of occupants and devices, simultaneous usage, router range etc. For more information speak to your broadband provider.
Map data ©OpenStreetMap contributors.





