Lakeview Grove, Glasgow, G33 1FU

- PROPERTY TYPE
Town House
- BEDROOMS
3
- BATHROOMS
3
- SIZE
Ask agent
- TENUREDescribes how you own a property. There are different types of tenure - freehold, leasehold, and commonhold.Read more about tenure in our glossary page.
Freehold
Key features
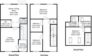
- 3 Bedrooms
- 3 Bathrooms
- No Onward Chain
- Great Motorway Links
- Close to Local Amenities
- Sought After Location
- Close to Hogganfield Loch
- Built in 2022
- Solar Panals
Description
The property boasts generous and well-proportioned bedrooms, ideal for families or professionals seeking flexible living space. The ground floor features a welcoming entrance, a convenient downstairs WC, and contemporary fixtures and fittings throughout, reflecting the home’s modern design and quality finish.
A standout feature is the impressive top-floor principal bedroom suite, complete with a sleek en-suite shower room and a superb fitted wardrobe area, designed in a walk-in style to maximise both storage and functionality.
Perfectly positioned in the ever-popular Hogganfield area, the property enjoys an enviable setting right beside Hogganfield Loch, offering scenic surroundings and pleasant outdoor walks on your doorstep. Directly across the road is the vibrant Golf It! leisure destination, which includes padel courts, family-friendly facilities, and a private nursery, making it ideal for a wide range of buyers.
The property further benefits from excellent transport and motorway links, providing easy access to Glasgow city centre and beyond, while a variety of local amenities are close at hand. Families will appreciate the proximity to schooling, with a local primary school nearby and the property falling within the catchment area for a well-regarded secondary school.
Early viewing is highly recommended to fully appreciate the quality, space, and superb location this exceptional home has to offer.
Brochures
Lakeview Grove, Glasgow, G33 1FUBrochure- COUNCIL TAXA payment made to your local authority in order to pay for local services like schools, libraries, and refuse collection. The amount you pay depends on the value of the property.Read more about council Tax in our glossary page.
- Band: D
- PARKINGDetails of how and where vehicles can be parked, and any associated costs.Read more about parking in our glossary page.
- Communal
- GARDENA property has access to an outdoor space, which could be private or shared.
- Ask agent
- ACCESSIBILITYHow a property has been adapted to meet the needs of vulnerable or disabled individuals.Read more about accessibility in our glossary page.
- Ask agent
Energy performance certificate - ask agent
Lakeview Grove, Glasgow, G33 1FU
Add an important place to see how long it'd take to get there from our property listings.
__mins driving to your place
Get an instant, personalised result:
- Show sellers you’re serious
- Secure viewings faster with agents
- No impact on your credit score
Affordability
Notes
Staying secure when looking for property
Ensure you're up to date with our latest advice on how to avoid fraud or scams when looking for property online.
Visit our security centre to find out moreDisclaimer - Property reference 34542511. The information displayed about this property comprises a property advertisement. Rightmove.co.uk makes no warranty as to the accuracy or completeness of the advertisement or any linked or associated information, and Rightmove has no control over the content. This property advertisement does not constitute property particulars. The information is provided and maintained by Sweet Home - Caroline Morrison, Coatbridge. Please contact the selling agent or developer directly to obtain any information which may be available under the terms of The Energy Performance of Buildings (Certificates and Inspections) (England and Wales) Regulations 2007 or the Home Report if in relation to a residential property in Scotland.
*This is the average speed from the provider with the fastest broadband package available at this postcode. The average speed displayed is based on the download speeds of at least 50% of customers at peak time (8pm to 10pm). Fibre/cable services at the postcode are subject to availability and may differ between properties within a postcode. Speeds can be affected by a range of technical and environmental factors. The speed at the property may be lower than that listed above. You can check the estimated speed and confirm availability to a property prior to purchasing on the broadband provider's website. Providers may increase charges. The information is provided and maintained by Decision Technologies Limited. **This is indicative only and based on a 2-person household with multiple devices and simultaneous usage. Broadband performance is affected by multiple factors including number of occupants and devices, simultaneous usage, router range etc. For more information speak to your broadband provider.
Map data ©OpenStreetMap contributors.




