Loughton Lane, Theydon Bois, Epping
- SIZE AVAILABLE
2,012 sq ft
187 sq m
- SECTOR
Residential development for sale
Key features
- Full planning permission secured for demolition and replacement with two new dwellings
- Opportunity to acquire the plot for a four-bedroom 2,012 sq ft detached chalet bungalow
- Shared demolition costs with existing owner
- Simultaneous construction of both units for build efficiency
- Strong resale or end-user appeal in a proven residential location
- Theydon Bois Village
- Prime Location
- Unconditional Offers Invited
Description
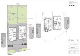
Our client currently owns a single dwelling on the site and has successfully secured planning consent for the demolition of the existing property and the construction of two new residential units. The opportunity being offered is to purchase the portion of the site benefiting from planning permission for one of these approved dwellings, a well-designed detached chalet bungalow.
The proposed unit has been thoughtfully planned to deliver generous, modern living accommodation across approximately 2,012 sq ft, offering a highly desirable layout suited to contemporary family living. The design balances strong kerb appeal with practical internal space, ensuring both market attractiveness and long-term value.
The development strategy presents a compelling advantage: demolition costs of the existing dwelling are to be shared with the current owner, with both approved units constructed simultaneously. This coordinated build programme offers efficiencies in procurement, contractor mobilisation, and overall project delivery, helping to optimise build costs and timescales.
Situated in the charming village of Theydon Bois, this site benefits from a picturesque setting while still offering convenient access to essential amenities.
Theydon Bois, situated on the edge of Epping Forest within the Essex borders, is approximately 20 miles northeast of Liverpool Street station. The village benefits from outstanding transport links, with Theydon Bois tube station providing direct Central Line services into London, making it ideal for commuters. The nearby M11 motorway and M25 motorway offer convenient road connections to London, Stansted Airport, and the wider motorway network. Theydon Bois features a charming high street with a selection of independent shops, cafés, and traditional pubs, while more extensive shopping and leisure facilities can be found in nearby Loughton and Epping. With highly regarded schools, beautiful surrounding countryside, and a welcoming community atmosphere, Theydon Bois remains a highly sought-after village location.
This represents a rare opportunity to secure a fully consented, ready-to-deliver residential development in the highly sought-after village of Theydon Bois. Combining cost-sharing advantages with a clear and coordinated build strategy, the scheme offers an efficient and attractive proposition. Ideally suited to developers, investors, or bespoke home builders looking to deliver a well-positioned project in a prime village setting with strong and enduring market appeal.
Energy Performance Certificates
EE RatingBrochures
Loughton Lane, Theydon Bois, Epping
NEAREST STATIONS
Distances are straight line measurements from the centre of the postcode- Theydon Bois Station0.0 miles
- Epping Station1.8 miles
- Debden Station1.8 miles
Notes
Disclaimer - Property reference 34545475. The information displayed about this property comprises a property advertisement. Rightmove.co.uk makes no warranty as to the accuracy or completeness of the advertisement or any linked or associated information, and Rightmove has no control over the content. This property advertisement does not constitute property particulars. The information is provided and maintained by Butler & Stag Commercial, London & Home Counties. Please contact the selling agent or developer directly to obtain any information which may be available under the terms of The Energy Performance of Buildings (Certificates and Inspections) (England and Wales) Regulations 2007 or the Home Report if in relation to a residential property in Scotland.
Map data ©OpenStreetMap contributors.






