Wigmore, HR6

- PROPERTY TYPE
Semi-Detached
- BEDROOMS
2
- BATHROOMS
2
- SIZE
1,249 sq ft
116 sq m
- TENUREDescribes how you own a property. There are different types of tenure - freehold, leasehold, and commonhold.Read more about tenure in our glossary page.
Freehold
Key features
- Barn-inspired 2 bedroom semi-detached homes within the Pear Tree Farm development in Wigmore
- Two double bedrooms, each with fitted wardrobe area and its own private ensuite
- Central turning staircase with landing window, bringing natural light into the heart of the home
- Crafted by respected local developer Karl Newman, renowned for exceptional build quality and attention to detail
- Character-rich design with exposed oak beams and oak staircase
- Secondary ground floor hallway with external access, cloakroom and dedicated utility / boot room – ideal for rural living
- Open-plan kitchen / dining space with triple window set framing views of the rear garden
- Ideal for early buyers — viewings now available by appointment only
- A rare opportunity to own a brand-new country cottage in a sought-after Herefordshire village
- Generous lounge with picture window to the front and patio doors with flanking windows to the side garden
Description
Taylors Barn, Contemporary Rural Living with Barn Inspired Character
(One of the images is an AI-generated projection of the finished home plot 5 and 6)
Pear Tree Farm, Wigmore, Herefordshire
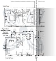
Framed by traditional brickwork and heritage style cladding, Plots 6, Taylors Barn brings a sense of crafted rural architecture to the Pear Tree Farm development. Though designed with the character of a barn conversion, these are entirely new homes, created with modern specification, thoughtful layouts and a quiet confidence that sits naturally within their countryside setting.
A Welcoming Ground Floor Designed for Everyday Living
The front door opens into a central entrance hall where the stairway sits at the heart of the home. Its gently turning rise draws light from the landing window above, creating a calm and inviting first impression.
To one side, a generous lounge provides a comfortable and versatile living space. A picture window frames the front outlook, while glazed patio doors with side windows open to the garden—filling the room with natural light and offering an easy connection to the outdoors.
To the other side of the hall, the kitchen and dining space unfolds across the depth of the home. Following the same specification as Anjou House, it features:
A Bespoke kitchen with Stone worktops
A central island forming the focal point of the space
Fitted high-end appliances, including induction hob and twin ovens
A dining area with a triple window set overlooking the rear garden
From the dining area, a door leads to a practical secondary hallway with external access, a cloakroom and a dedicated utility/boot room—ideal for rural living.
Two Well Proportioned Bedrooms, Each With Its Own Bathroom
The staircase rises and turns to the first floor, where natural light from the landing window sets a calm tone.
Both bedrooms are spacious doubles, each with:
Fitted wardrobe space
Private ensuite facilities
Bedroom One enjoys a striking design feature, a Juliette balcony with central door and windows to either side, plus an additional front window for dual aspect light.
Bedroom Two mirrors the generous proportions of the first and includes an ensuite with both bath and separate shower, creating a flexible, guest friendly layout.
Specification & Craftsmanship
The homes follow the same specification narrative as Anjou House, including premium finishes, quality materials and a carefully curated interior palette that balances contemporary comfort with a rural architectural feel.
A Thoughtfully Designed Addition to Pear Tree Farm
Set within this exclusive collection of five bespoke homes, Plots 6, Taylors Barn offers an appealing combination of countryside character, modern build quality and interior refinement. With the architecture echoing traditional farmstead forms, these homes promise a timeless setting for contemporary rural living.
Early interest also provides an opportunity, subject to the build stage, to personalise interior finishes and create a home tailored to individual style.
Find the property using What3Words:
Anti-Money Laundering Checks (AML)
Regulations require us to conduct identity and AML checks and gather information about every buyer's financial circumstances. These checks are essential in fulfilling our Customer Due Diligence obligations, which must be done before any property can be marked as sold subject to contract. The rules are set by law and enforced by trading standards.
We will start these checks once you have made a provisionally agreeable offer on a property. The cost is £80 (exc. VAT). This fee covers the expense of obtaining relevant data and any necessary manual checks and monitoring. It's paid in advance via our onboarding system, Kotini, and is non-refundable.
Parking - Driveway
- COUNCIL TAXA payment made to your local authority in order to pay for local services like schools, libraries, and refuse collection. The amount you pay depends on the value of the property.Read more about council Tax in our glossary page.
- Ask agent
- PARKINGDetails of how and where vehicles can be parked, and any associated costs.Read more about parking in our glossary page.
- Driveway
- GARDENA property has access to an outdoor space, which could be private or shared.
- Yes
- ACCESSIBILITYHow a property has been adapted to meet the needs of vulnerable or disabled individuals.Read more about accessibility in our glossary page.
- Ask agent
Energy performance certificate - ask agent
Wigmore, HR6
Add an important place to see how long it'd take to get there from our property listings.
__mins driving to your place
Get an instant, personalised result:
- Show sellers you’re serious
- Secure viewings faster with agents
- No impact on your credit score
Affordability
Notes
Staying secure when looking for property
Ensure you're up to date with our latest advice on how to avoid fraud or scams when looking for property online.
Visit our security centre to find out moreDisclaimer - Property reference 04c11ba1-1695-4ff6-b0c4-78d1b3d2f065. The information displayed about this property comprises a property advertisement. Rightmove.co.uk makes no warranty as to the accuracy or completeness of the advertisement or any linked or associated information, and Rightmove has no control over the content. This property advertisement does not constitute property particulars. The information is provided and maintained by Chartwell Noble, Covering Central England. Please contact the selling agent or developer directly to obtain any information which may be available under the terms of The Energy Performance of Buildings (Certificates and Inspections) (England and Wales) Regulations 2007 or the Home Report if in relation to a residential property in Scotland.
*This is the average speed from the provider with the fastest broadband package available at this postcode. The average speed displayed is based on the download speeds of at least 50% of customers at peak time (8pm to 10pm). Fibre/cable services at the postcode are subject to availability and may differ between properties within a postcode. Speeds can be affected by a range of technical and environmental factors. The speed at the property may be lower than that listed above. You can check the estimated speed and confirm availability to a property prior to purchasing on the broadband provider's website. Providers may increase charges. The information is provided and maintained by Decision Technologies Limited. **This is indicative only and based on a 2-person household with multiple devices and simultaneous usage. Broadband performance is affected by multiple factors including number of occupants and devices, simultaneous usage, router range etc. For more information speak to your broadband provider.
Map data ©OpenStreetMap contributors.




