12 Old Jewry, City of London, London, EC2R
- SIZE AVAILABLE
10,260 sq ft
953 sq m
- SECTOR
Office to lease
Lease details
- Lease available date:
- Ask agent
Key features
- 10,260 sq ft over two floors
- Self-contained, fitted office accommodation
- Prime Bank / Old Jewry location
- Mix of open-plan and meeting rooms
- Ready-to-occupy, minimal upfront costs
Description
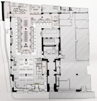
A substantial self-contained office (B1) arranged over ground and lower ground floors, providing well-presented fitted accommodation extending to approximately 10,260 sq ft.
The space is configured to provide a main reception, mix of open-plan workspace, meeting rooms, staff room, kitchen, client and staff WC, private offices and a prominent reception / client-facing area, offering an efficient and professional working environment. The existing fit-out is well maintained and provides a ready-to-occupy solution, enabling an incoming occupier to minimise upfront costs and lead-in time.
Opportunities to secure self-contained, fitted office accommodation of this scale in the immediate Bank / Old Jewry location are limited. The property offers a straightforward occupational solution for businesses seeking a central London base.
Accommodation
Approx. 10,260 sq ft (953 sq m) arranged over:
Ground Floor - approx. 5,500 sq ft
Lower Ground Floor - approx. 4,760 sq ft
Brochures
12 Old Jewry, City of London, London, EC2R
NEAREST STATIONS
Distances are straight line measurements from the centre of the postcode- Bank Station0.1 miles
- Cannon Street Station0.2 miles
- Mansion House Station0.2 miles
Notes
Disclaimer - Property reference LON000A0F. The information displayed about this property comprises a property advertisement. Rightmove.co.uk makes no warranty as to the accuracy or completeness of the advertisement or any linked or associated information, and Rightmove has no control over the content. This property advertisement does not constitute property particulars. The information is provided and maintained by Whozoo, London. Please contact the selling agent or developer directly to obtain any information which may be available under the terms of The Energy Performance of Buildings (Certificates and Inspections) (England and Wales) Regulations 2007 or the Home Report if in relation to a residential property in Scotland.
Map data ©OpenStreetMap contributors.






