Downend Park Road, Bristol

- PROPERTY TYPE
Maisonette
- BEDROOMS
1
- BATHROOMS
1
- SIZE
Ask agent
Key features
- Private Garden
- Period Features
Description
Property Reference number : 780562
A rare opportunity to purchase a beautifully maintained one-bedroom maisonette with share of freehold, set on a quiet one-way street in a highly sought-after area.Private garden
Share of freehold
No service charge or ground rent
Long lease (remainder of 999 years)
EPC rating C
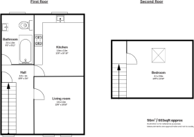
First and second floor maisonette with:
Bright south-facing kitchen-diner overlooking rear gardens
Separate living room with attractive period features
Spacious 13.5 ft (4.1 m) double bedroom on the second floor
Bathroom with shower over bath
Ample built-in storage in kitchen and hallway/stairwell
Gas central heating throughout
Private garden with secure shed and bike storage (access via Fern Road)
Well maintained throughout:
Owner-occupied and carefully looked after for the past 10 years
Worcester combi boiler (under warranty)
New double-glazed windows installed in 2018
Modern kitchen fitted in 2022
New front door
Location
Free on-street parking
Short ride to the Bristol & Bath cycle path
3-minute walk to a direct bus route into the city centre
Approximately 10 minutes on foot to shops, cafés and amenities in Staple Hill and Downend
Additional Information
The property is marketed directly by the owner, allowing for flexible evening and weekend viewings and a smooth, transparent sales process.
For further details or to arrange a viewing, please use the contact options provided.
Council Tax: A
Current Length Of Lease Remaining: 978 Years
WARNING: Never transfer funds to a property owner before viewing the property in person. If in doubt contact the marketing agent or the Citizens Advice Bureau.
GDPR: Submitting a viewing request for the above property means you are giving us permission to pass your contact details to the vendor or landlord for further communication related to viewing arrangement, or more information related to the above property. If you disagree, please write to us within the message field so we do not forward your details to the vendor or landlord or their managing company.
VIEWING DISCLAIMER: Quicklister endeavour to ensure the sales particulars of properties advertised are fair, accurate and reliable, however they are not exhaustive and viewing in person is highly recommended. If there is any point which is of particular importance to you, please contact Quicklister and we will be pleased to check the position for you, especially if you are contemplating traveling some distance to view the property.
Property Reference number : 780562
- COUNCIL TAXA payment made to your local authority in order to pay for local services like schools, libraries, and refuse collection. The amount you pay depends on the value of the property.Read more about council Tax in our glossary page.
- Band: A
- PARKINGDetails of how and where vehicles can be parked, and any associated costs.Read more about parking in our glossary page.
- Ask agent
- GARDENA property has access to an outdoor space, which could be private or shared.
- Yes
- ACCESSIBILITYHow a property has been adapted to meet the needs of vulnerable or disabled individuals.Read more about accessibility in our glossary page.
- Ask agent
Downend Park Road, Bristol
Add an important place to see how long it'd take to get there from our property listings.
__mins driving to your place
Get an instant, personalised result:
- Show sellers you’re serious
- Secure viewings faster with agents
- No impact on your credit score
Affordability
Notes
Staying secure when looking for property
Ensure you're up to date with our latest advice on how to avoid fraud or scams when looking for property online.
Visit our security centre to find out moreDisclaimer - Property reference 5604. The information displayed about this property comprises a property advertisement. Rightmove.co.uk makes no warranty as to the accuracy or completeness of the advertisement or any linked or associated information, and Rightmove has no control over the content. This property advertisement does not constitute property particulars. The information is provided and maintained by Quicklister, Nationwide. Please contact the selling agent or developer directly to obtain any information which may be available under the terms of The Energy Performance of Buildings (Certificates and Inspections) (England and Wales) Regulations 2007 or the Home Report if in relation to a residential property in Scotland.
*This is the average speed from the provider with the fastest broadband package available at this postcode. The average speed displayed is based on the download speeds of at least 50% of customers at peak time (8pm to 10pm). Fibre/cable services at the postcode are subject to availability and may differ between properties within a postcode. Speeds can be affected by a range of technical and environmental factors. The speed at the property may be lower than that listed above. You can check the estimated speed and confirm availability to a property prior to purchasing on the broadband provider's website. Providers may increase charges. The information is provided and maintained by Decision Technologies Limited. **This is indicative only and based on a 2-person household with multiple devices and simultaneous usage. Broadband performance is affected by multiple factors including number of occupants and devices, simultaneous usage, router range etc. For more information speak to your broadband provider.
Map data ©OpenStreetMap contributors.




