Church Road, Fleet, Hampshire, GU51

Letting details
- Let available date:
- 08/06/2026
- Deposit:
- £1,361A deposit provides security for a landlord against damage, or unpaid rent by a tenant.Read more about deposit in our glossary page.
- Min. Tenancy:
- 12 months How long the landlord offers to let the property for.Read more about tenancy length in our glossary page.
- Let type:
- Long term
- Furnish type:
- Ask agent
- Council Tax:
- Ask agent
- PROPERTY TYPE
Flat
- BEDROOMS
1
- BATHROOMS
1
- SIZE
Ask agent
Key features
- Top-floor position
- Spacious hallway
- Open-plan living/dining area
- Generous double bedroom
- Modern shower room
- Allocated parking bay
Description
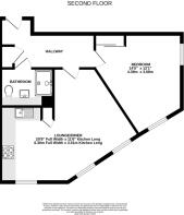
Positioned on the top floor of this building, on entering the apartment itself there is a large hallway, perhaps large enough for an office area for those working from home.
The well designed kitchen, with a full range of integrated appliances, sits to one side of the spacious living/dining area. There is a large double bedroom with built in storage. Both of these rooms are dual aspect, with lovely views above the town and towards Farnborough.
There in a large shower room with walk in enclosure, basin, storage and wc.
The communal areas are particularly elegant, with glass balustrade, and attractive entrance foyer. In the foyer, there is access to an internal secure storeroom with cycle racking. At the rear of the building there is parking for one vehicle in a numbered bay and visitor parking.
This prestigious apartment will appeal to a single/professional couple looking for a smart and secure home in a town centre location. With easy access to Fleet mainline station it would also suit those needing to commute.
Security Deposit: £1,361.53 (based on advertised rental price)
Holding Deposit: £272.30 (based on advertised rental price)
Minimum Tenancy Term: 12 months
Council Tax Band B
ADDITIONAL INFORMATION
Materials used in construction: Brick walls and tile roof
For further information on broadband and mobile coverage, please refer to the Ofcom Checker online
- COUNCIL TAXA payment made to your local authority in order to pay for local services like schools, libraries, and refuse collection. The amount you pay depends on the value of the property.Read more about council Tax in our glossary page.
- Band: B
- PARKINGDetails of how and where vehicles can be parked, and any associated costs.Read more about parking in our glossary page.
- Allocated
- GARDENA property has access to an outdoor space, which could be private or shared.
- Ask agent
- ACCESSIBILITYHow a property has been adapted to meet the needs of vulnerable or disabled individuals.Read more about accessibility in our glossary page.
- Ask agent
Church Road, Fleet, Hampshire, GU51
Add an important place to see how long it'd take to get there from our property listings.
__mins driving to your place
Notes
Staying secure when looking for property
Ensure you're up to date with our latest advice on how to avoid fraud or scams when looking for property online.
Visit our security centre to find out moreDisclaimer - Property reference FLE240138_L. The information displayed about this property comprises a property advertisement. Rightmove.co.uk makes no warranty as to the accuracy or completeness of the advertisement or any linked or associated information, and Rightmove has no control over the content. This property advertisement does not constitute property particulars. The information is provided and maintained by Charters, Fleet. Please contact the selling agent or developer directly to obtain any information which may be available under the terms of The Energy Performance of Buildings (Certificates and Inspections) (England and Wales) Regulations 2007 or the Home Report if in relation to a residential property in Scotland.
*This is the average speed from the provider with the fastest broadband package available at this postcode. The average speed displayed is based on the download speeds of at least 50% of customers at peak time (8pm to 10pm). Fibre/cable services at the postcode are subject to availability and may differ between properties within a postcode. Speeds can be affected by a range of technical and environmental factors. The speed at the property may be lower than that listed above. You can check the estimated speed and confirm availability to a property prior to purchasing on the broadband provider's website. Providers may increase charges. The information is provided and maintained by Decision Technologies Limited. **This is indicative only and based on a 2-person household with multiple devices and simultaneous usage. Broadband performance is affected by multiple factors including number of occupants and devices, simultaneous usage, router range etc. For more information speak to your broadband provider.
Map data ©OpenStreetMap contributors.




