21, Ashton Crescent, Barleyfields, Ashchurch, Tewkesbury

- PROPERTY TYPE
House
- BEDROOMS
3
- BATHROOMS
1
- SIZE
Ask agent
Key features
- Local connection to Tewkesbury District Required
- 2 Allocated parking Spaces
- Private garden
- Floorcoverings included
- 10 year New Build Warranty
- Kitchen includes fitted oven, hob and hood
- Larger Shares available
- Shower over bath
Description
•Good range of amenities locally including supermarkets, pubs, restaurants and takeaways
•Excellent commuting links with M5 nearby to reach Cheltenham (10 miles) or Gloucester (14.5 miles), Bristol (45 miles) & Bath (60 miles)
•Within reach of many Ofsted ‘Good’ rated schools
•For days out with the family, you will find yourself on the doorstep of the Cotswolds Area of Outstanding Natural beauty with endless opportunity to enjoy attractions, history, and nature alike.
Shared Ownership Information - Shared ownership is a part buy part rent property from a registered landlord
You purchase a share with the help of a mortgage based on your affordability.
OMV - £280,000
40% Share - £112,.000
Rent on remaining share - £385.14pcm (Rent Increase in April - £404.38
Management Fee - £42.76 pcm
Buildings Insurance - £17.31pcm
The more you buy the lower your rent will be. These costs will increase each year with inflation.
How Does Shared Ownership Work? - Shared Ownership is a government scheme that offers you the chance to buy a share of a property from a housing association, a non-profit-making body that provides homes. Because you only own a part of the property, you can buy it with a smaller deposit and mortgage.
A smaller mortgage means smaller repayments but you’ll also need to pay:
- Rent on the share of the property you do not yet own
- Monthly service charges
Shared Ownership homes can be new builds, existing properties, houses or flats. All Shared Ownership properties are leasehold, even houses.
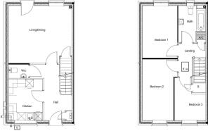
Ground Floor -
Entrance Hall - Door leading to Kitchen lounge and stairs to First floor
Kitchen - 2.548 x 3.095 (8'4" x 10'1") - Fitted kitchen with range of wall and base units, stainless steel sink with mixer tap, space for washing machine, dishwasher and fridge/freezer. Electric oven with gas hob with hood over. Window to front elevation
Lounge/ Diner - 4.774 x 4.316 (15'7" x 14'1") - Window to Rear with Single door to enclosed back garden along with large cupboard space under stairs.
Wc - 1.042 x 1.494 (3'5" x 4'10") - Low level WC and wash hand basin
First Floor - Landing with doors to 3 bedrooms and bathroom
Bathroom - 2.064 x 2.755 (6'9" x 9'0") - White bathroom suite with shower over bath, low level WC and wash hand basin. Window to rear elevation.
Bedroom 1 - 3.936 x 2.612 (12'10" x 8'6") - Window to rear elevation
Bedroom 2 - 2.612 x 4.614 (8'6" x 15'1") - Window to Front elevation
Bedroom 3 - 2.352 x 3.213 (7'8" x 10'6") - Window to front elevation with a storage cupboard
External - Allocated parking spaces for 2 cars with visitors spaces alongside. Enclosed rear garden with side access
Artists Impressions - All images are used for illustrative purposes only and are representative only. They may not be the same as the actual home you purchase and the specification may differ. Images may be of a slightly different model of home and may include optional upgrades and extras which involve additional cost. Individual features such as windows, brick, carpets, paint and other material colours may vary and also the specification of fittings may vary. Any furnishings and furniture are not included in any sale.
Disclaimer - All measurements are approximate. We have not checked the serviceability of any appliances, fixtures or utilities (i.e. water, electricity, gas) which may be included in the sale. We cannot guarantee building regulations or planning permission has been approved and all prospective purchasers should satisfy themselves on these points prior to entering into a contract. Consumer Protection from Unfair Trading Regulations 2008. The Agent has not tested any apparatus, equipment, fixtures and fittings or services and so cannot verify that they are in working order or fit for the purpose. A Buyer is advised to obtain verification from their Solicitor or Surveyor. References to the Tenure of a Property are based on information supplied by the Seller. The Agent has not had sight of the title documents. A Buyer is advised to obtain verification from their Solicitor. Items shown in photographs are NOT included unless specifically mentioned within the sales particulars. They may however be available by separate negotiation. Buyers must check the availability of any property and make an appointment to view before embarking on any journey to see a property.
Two Rivers Housing - TwoCan estate agents are advertising this property on behalf of Two Rivers Housing. Two Rivers Housing are the owners of Twocan
Brochures
21, Ashton Crescent, Barleyfields, Ashchurch, TewkBrochure- COUNCIL TAXA payment made to your local authority in order to pay for local services like schools, libraries, and refuse collection. The amount you pay depends on the value of the property.Read more about council Tax in our glossary page.
- Band: C
- PARKINGDetails of how and where vehicles can be parked, and any associated costs.Read more about parking in our glossary page.
- Yes
- GARDENA property has access to an outdoor space, which could be private or shared.
- Yes
- ACCESSIBILITYHow a property has been adapted to meet the needs of vulnerable or disabled individuals.Read more about accessibility in our glossary page.
- Ask agent
21, Ashton Crescent, Barleyfields, Ashchurch, Tewkesbury
Add an important place to see how long it'd take to get there from our property listings.
__mins driving to your place
Get an instant, personalised result:
- Show sellers you’re serious
- Secure viewings faster with agents
- No impact on your credit score

Affordability
Notes
Staying secure when looking for property
Ensure you're up to date with our latest advice on how to avoid fraud or scams when looking for property online.
Visit our security centre to find out moreDisclaimer - Property reference 34553330. The information displayed about this property comprises a property advertisement. Rightmove.co.uk makes no warranty as to the accuracy or completeness of the advertisement or any linked or associated information, and Rightmove has no control over the content. This property advertisement does not constitute property particulars. The information is provided and maintained by Twocan Estate Agents, Newent. Please contact the selling agent or developer directly to obtain any information which may be available under the terms of The Energy Performance of Buildings (Certificates and Inspections) (England and Wales) Regulations 2007 or the Home Report if in relation to a residential property in Scotland.
*This is the average speed from the provider with the fastest broadband package available at this postcode. The average speed displayed is based on the download speeds of at least 50% of customers at peak time (8pm to 10pm). Fibre/cable services at the postcode are subject to availability and may differ between properties within a postcode. Speeds can be affected by a range of technical and environmental factors. The speed at the property may be lower than that listed above. You can check the estimated speed and confirm availability to a property prior to purchasing on the broadband provider's website. Providers may increase charges. The information is provided and maintained by Decision Technologies Limited. **This is indicative only and based on a 2-person household with multiple devices and simultaneous usage. Broadband performance is affected by multiple factors including number of occupants and devices, simultaneous usage, router range etc. For more information speak to your broadband provider.
Map data ©OpenStreetMap contributors.




